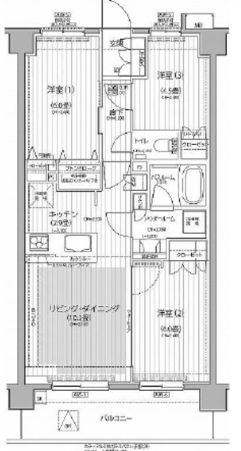
Nステージ東小金井2LDK/2階/203(東京都小金井市 / 新小金井駅)の賃貸
1/27
1/27
23.8万円
初期費用を知りたい管理費25,000円
- 敷金
- 23.8万円
- 保証金
- なし
- 礼金
- 無料
- 広さ
- 62.13㎡
- 階数
- 2階 / 7階建
- 間取り
- 2LDK
- 建物
- マンション (鉄筋コンクリート)
- 築年数
- 築7年
- 向き
- 西
- 交通
- 西武多摩川線 / 新小金井駅徒歩5分
- 中央線 / 東小金井駅徒歩11分
- 中央線 / 武蔵小金井駅徒歩22分
- 住所
- 東京都小金井市東町4丁目13-6
nonowa東小金井 783m
いなげや小金井東町店 93m
セブン-イレブン 小金井連雀通り店 345m
ウェルパーク小金井東町店 164m
ケーヨーデイツー 小金井店 777m
CoCo壱番屋 JR東小金井駅南口店 780m
無料で10秒! カンタンお問い合わせ

Nステージ東小金井
敷
23.8万円礼
無料特徴
バス・トイレ別
2階以上
エアコン付き
ペット相談可
駐車場あり
室内洗濯機置場
オートロック
洗面所独立
- 入居条件
- 二人入居相談、子供可、事務所不可、ペット相談、礼金不要、即入居可最新の空室状況が知りたい
- バス・トイレ
- シャワー、給湯、洗面台、バストイレ別、浴室乾燥機、温水洗浄便座、洗面所独立
- キッチン
- IHクッキングヒーター、3口以上コンロ、食器洗乾燥機、システムキッチン
- セキュリティ
- 防犯カメラ、オートロック
- 室内設備
- CS、インターネット対応、BS、エアコン、室内洗濯置お部屋の詳しい情報を知りたい
- 部屋の特徴
- 二階以上、バルコニー写真を送ってほしい
- 共用部
- 宅配ボックス、エレベーター、バイク置場、駐輪場
- その他の特徴
- 駐車場あり、都市ガス、公営水道、下水、デザイナーズ、外壁タイル張り
無料で10秒! カンタンお問い合わせ

Nステージ東小金井
敷
23.8万円礼
無料不動産会社からのコメント
1年未満の解約で賃料2ヶ月分2年未満の解約で賃料1ヶ月分/ペット飼育ペット飼育時 1匹につき敷金1ヶ月追加(償却)犬猫いずれか2匹(小型犬50cm以下10kg以下)/エアコン洗浄13200円1基につき/バイク置場代借主負担(使用時)/室内清掃費用借主負担/駐輪場(利用時):利用料等借主負担
その他
- 駐車/駐輪
- 近隣 費用: 18,900円(税込) 距離: 167m / あり駐車可能な車種や台数を知りたい
- 入居時期
- 損保
- 住宅保険: 要
- 保証人代行
- 保証人代行: 必須 保証人代行会社: その他 初回:賃料等の40%
- その他費用
初期費用を知りたい鍵交換費:26,400円
エアコン内部洗浄費:13,200円
- 情報
情報登録日:2025/11/21
情報更新日:2026/4/13
次回更新予定日:2026/4/30
- 備考
- 契約期間: 2年
取扱い会社
- 取扱い会社
- アエラス三鷹店 (株式会社アエラス.PR)条件が近い物件も紹介してほしい
- 免許番号
- 国土交通大臣(1)第10782号
- 取引態様
- 仲介
- 所在地
- 東京都武蔵野市中町1丁目13-2 村越ビル 4階
- 電話番号
- 0422-50-0693
- 営業時間
- 10:00~19:00
- 定休日
- 年中無休(年末年始などを除く)
- 所属団体名
- 全日本不動産協会


























