TheSiesta唐木田Terravene3LDK/1階/B(東京都多摩市 / 唐木田駅)の賃貸
1/24
1/24
16.5万円
初期費用を知りたい管理費5,000円
家賃割引サービス適用で最大2年間4.8万円割引
- 敷金
- 無料
- 保証金
- なし
- 礼金
- 無料
- 広さ
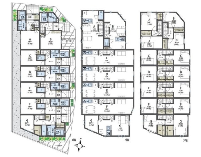
- 62.33㎡
- 階数
- 1階 / 3階建
- 間取り
- 3LDK
- 建物
- アパート (木造)
- 築年数
- 新築
- 向き
- 西
- 交通
- 小田急多摩線 / 唐木田駅徒歩3分
- 多摩都市モノレール / 多摩センター駅徒歩20分
- 住所
- 東京都多摩市鶴牧6丁目11
コンビニエンスストア 1090m
ドラッグストア 2730m
多摩市立鶴牧中学校 180m
無料で10秒! カンタンお問い合わせ
TheSiesta唐木田Terravene
敷
無料礼
無料特徴
バス・トイレ別
2階以上
エアコン付き
ペット相談可
駐車場あり
室内洗濯機置場
オートロック
洗面所独立
- 入居条件
- 保証人不要、初期費用カード決済可最新の空室状況が知りたい
- バス・トイレ
- 給湯、専用バス、追焚機能浴室、浴室乾燥機、専用トイレ、温水洗浄便座、バストイレ別、シャワー付洗面化粧台
- キッチン
- ガスコンロ対応、3口以上コンロ、システムキッチン
- 室内設備
- CATV、BS、CS、インターネット対応、エアコン、シューズボックス、室内洗濯置お部屋の詳しい情報を知りたい
- 部屋の特徴
- メゾネット写真を送ってほしい
- 共用部
- 宅配ボックス
- その他の特徴
- 公営水道、都市ガス、デザイナーズ
無料で10秒! カンタンお問い合わせ
TheSiesta唐木田Terravene
敷
無料礼
無料不動産会社からのコメント
★いい部屋見つかる!お部屋探しはタウンハウジングまで♪★
★いい部屋見つかる!お部屋探しはタウンハウジングまで♪★
その他
- 駐車/駐輪
- 要確認 / なし駐車可能な車種や台数を知りたい
- 入居時期
- 2026年1月中旬最新の空室状況が知りたい
- 損保
- 住宅保険: 要
- 保証人代行
- 加入要 会社名: その他 費用: 初回保証料:総賃料の50%(更新:10,000円/1年)
- その他費用
初期費用を知りたい24時間緊急サポート:1,320円
サポートサービス/月:1,320円
室内清掃費用:77,000円
エアコン1基につき(退去時):11,000円
- 情報
情報登録日:2025/10/8
情報更新日:2025/12/2
次回更新予定日:2025/12/14
- 備考
- 現況: 未完成 状態: 未入居 更新料: 新賃料の1.0ヶ月分 契約期間: 2年 総戸数: 7戸
取扱い会社
- 取扱い会社
- 株式会社タウンハウジング 橋本店条件が近い物件も紹介してほしい
- 免許番号
- 国土交通大臣(1)第9928号
- 取引態様
- 仲介
- 所在地
- 神奈川県相模原市緑区橋本6丁目 19-12 グランツェン1F
- 電話番号
- 042-775-6400
- 営業時間
- 10:00~19:00
- 定休日
- 水曜日(水曜日)
- 所属団体名
- 東京都宅地建物取引業協会
おすすめ物件 (1件)
賃貸アパート
TheSiesta唐木田Terravene

小田急多摩線 / 唐木田駅 徒歩3分
新築 / 3階建
東京都多摩市鶴牧6丁目11-1

16.5万円 / 管理費5,000円
敷
無料礼
無料3LDK / 65.56㎡ / 1階
賃貸アパート
TheSiesta唐木田Terravene

小田急多摩線 / 唐木田駅 徒歩3分
新築 / 3階建
東京都多摩市鶴牧6丁目11-1

16.5万円 / 管理費5,000円
敷
無料礼
無料3LDK / 65.56㎡ / 1階
