ミリアレジデンス上池袋Ⅱ1LDK/8階/803(東京都豊島区 / 北池袋駅)の賃貸
1/27
1/27
16.4万円
初期費用を知りたい管理費15,000円
- 敷金
- 無料
- 保証金
- なし
- 礼金
- 無料
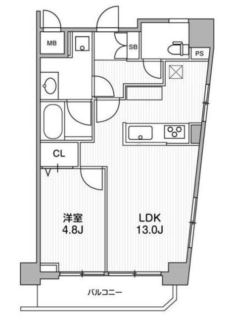
- 広さ
- 42.75㎡
- 階数
- 8階 / 地上12階地下1階建
- 間取り
- 1LDK
- 建物
- マンション (鉄骨鉄筋)
- 築年数
- 築37年
- 向き
- 交通
- 東武東上線 / 北池袋駅徒歩8分
- 都電荒川線 / 巣鴨新田駅徒歩12分
- 都電荒川線 / 庚申塚駅徒歩15分
- 住所
- 東京都豊島区上池袋3丁目1-29
業務スーパー上池袋店 167m
ファミリーマート上池袋三丁目店 74m
ココカラファイン 上池袋店 37m
キッチンオリジン 上池袋店 109m
帝京平成大学 池袋キャンパス 630m
豊島区立池袋中学校 889m
無料で10秒! カンタンお問い合わせ

ミリアレジデンス上池袋Ⅱ
敷
無料礼
無料特徴
バス・トイレ別
2階以上
エアコン付き
ペット相談可
駐車場あり
室内洗濯機置場
オートロック
洗面所独立
- 入居条件
- 二人入居相談、子供可、ルームシェア不可、敷金不要、礼金不要最新の空室状況が知りたい
- バス・トイレ
- シャワー、給湯、洗面台、バストイレ別、浴室乾燥機、脱衣所、温水洗浄便座、洗面所独立
- キッチン
- ガスコンロ対応、2口コンロ、グリル付、システムキッチン
- セキュリティ
- 防犯カメラ、オートロック
- 室内設備
- インターネット対応、エアコン、室内洗濯置、フローリングお部屋の詳しい情報を知りたい
- 部屋の特徴
- 二階以上、バルコニー写真を送ってほしい
- 共用部
- 宅配ボックス、エレベーター
- その他の特徴
- 駐車場あり、都市ガス、公営水道、下水、火災警報器等設置済み、外壁タイル張り
無料で10秒! カンタンお問い合わせ

ミリアレジデンス上池袋Ⅱ
敷
無料礼
無料同じ建物で掲載中の物件 (1件)
不動産会社からのコメント
室内清掃費用借主負担(退去時)/住宅総合保険(フレックス)28000円
その他
- 駐車/駐輪
- 近隣 費用: 28,000円(税込) 距離: 387m / なし駐車可能な車種や台数を知りたい
- 入居時期
- 2026年4月中旬最新の空室状況が知りたい
- 損保
- 住宅保険: 要
- 保証人代行
- -
- その他費用
初期費用を知りたい鍵交換費:24,200円
その他費用(その他費用:1.65万円/他):19,800円
- 情報
情報登録日:2026/3/20
情報更新日:2026/3/17
次回更新予定日:2026/3/30
- 備考
- 契約期間: 2年
取扱い会社
- 取扱い会社
- アエラス十条店 (株式会社アエラス)条件が近い物件も紹介してほしい
- 免許番号
- 国土交通大臣(3)第8522号
- 取引態様
- 仲介
- 所在地
- 東京都北区上十条2丁目30-2 協栄堂ビル 2階・4階・5階
- 電話番号
- 03-5963-5444
- 営業時間
- 10:00~19:00
- 定休日
- 年中無休(年末年始などを除く)
- 所属団体名
- 全日本不動産協会
おすすめ物件 (9件)
賃貸マンション
豊島区 22階建 2009年築

東武東上線 / 北池袋駅 徒歩11分
築17年 / 22階建
東京都豊島区上池袋1丁目37-22

16.8万円 / 管理費20,000円
敷
16.8万円礼
無料1DK / 37.56㎡ / 5階
賃貸マンション
豊島区池袋本町2丁目 4階建 2023年築

東武東上線 / 北池袋駅 徒歩10分
築3年 / 4階建
東京都豊島区池袋本町2丁目

15.5万円 / 管理費20,000円
敷
無料礼
無料1LDK / 35.02㎡ / 4階
賃貸マンション
TRADIS池袋本町

東武東上線 / 北池袋駅 徒歩11分
築2年 / 地上5階地下1階建
東京都豊島区池袋本町2丁目35-12

15.3万円 / 管理費10,000円
敷
無料礼
無料1LDK / 33.8㎡ / 2階
賃貸マンション
Grande Ikebukuro honcho

東武東上線 / 北池袋駅 徒歩8分
築1年 / 4階建
東京都豊島区池袋本町3丁目2-3

16.7万円 / 管理費12,000円
敷
無料礼
無料1SLDK / 34.77㎡ / 4階
賃貸マンション
豊島区西巣鴨2丁目 4階建 2024年築

都電荒川線 / 巣鴨新田駅 徒歩4分
築2年 / 4階建
東京都豊島区西巣鴨2丁目

16.9万円 / 管理費15,000円
敷
16.9万円礼
無料1LDK / 33.98㎡ / 3階
賃貸マンション
CLASSY COURT KITAOTUKA

東武東上線 / 北池袋駅 徒歩27分
築12年 / 6階建
東京都豊島区北大塚1丁目22-8

16.8万円 / 管理費10,000円
敷
16.8万円礼
無料1LDK / 37.31㎡ / 6階
賃貸マンション
ミリアレジデンス上池袋Ⅱ

東武東上線 / 北池袋駅 徒歩8分
築37年 / 地上12階地下1階建
東京都豊島区上池袋3丁目1-29

16.5万円 / 管理費15,000円
敷
無料礼
無料1LDK / 44.02㎡ / 6階
賃貸マンション
プレディアコート板橋

東武東上線 / 北池袋駅 徒歩14分
新築 / 9階建
東京都板橋区板橋2丁目2-12

16.2万円 / 管理費12,000円
敷
16.2万円礼
無料1LDK / 34.25㎡ / 2階
賃貸マンション
池袋ウエストガーデン
東武東上線 / 北池袋駅 徒歩16分
築6年 / 7階建
東京都豊島区池袋3丁目60-2
16万円 / 管理費10,000円
敷
16万円礼
16万円1LDK / 41.56㎡ / 2階
賃貸マンション
豊島区 22階建 2009年築

東武東上線 / 北池袋駅 徒歩11分
築17年 / 22階建
東京都豊島区上池袋1丁目37-22

16.8万円 / 管理費20,000円
敷
16.8万円礼
無料1DK / 37.56㎡ / 5階
賃貸マンション
豊島区池袋本町2丁目 4階建 2023年築

東武東上線 / 北池袋駅 徒歩10分
築3年 / 4階建
東京都豊島区池袋本町2丁目

15.5万円 / 管理費20,000円
敷
無料礼
無料1LDK / 35.02㎡ / 4階
賃貸マンション
TRADIS池袋本町

東武東上線 / 北池袋駅 徒歩11分
築2年 / 地上5階地下1階建
東京都豊島区池袋本町2丁目35-12

15.3万円 / 管理費10,000円
敷
無料礼
無料1LDK / 33.8㎡ / 2階
賃貸マンション
Grande Ikebukuro honcho

東武東上線 / 北池袋駅 徒歩8分
築1年 / 4階建
東京都豊島区池袋本町3丁目2-3

16.7万円 / 管理費12,000円
敷
無料礼
無料1SLDK / 34.77㎡ / 4階
賃貸マンション
豊島区西巣鴨2丁目 4階建 2024年築

都電荒川線 / 巣鴨新田駅 徒歩4分
築2年 / 4階建
東京都豊島区西巣鴨2丁目

16.9万円 / 管理費15,000円
敷
16.9万円礼
無料1LDK / 33.98㎡ / 3階
賃貸マンション
CLASSY COURT KITAOTUKA

東武東上線 / 北池袋駅 徒歩27分
築12年 / 6階建
東京都豊島区北大塚1丁目22-8

16.8万円 / 管理費10,000円
敷
16.8万円礼
無料1LDK / 37.31㎡ / 6階
賃貸マンション
ミリアレジデンス上池袋Ⅱ

東武東上線 / 北池袋駅 徒歩8分
築37年 / 地上12階地下1階建
東京都豊島区上池袋3丁目1-29

16.5万円 / 管理費15,000円
敷
無料礼
無料1LDK / 44.02㎡ / 6階
賃貸マンション
プレディアコート板橋

東武東上線 / 北池袋駅 徒歩14分
新築 / 9階建
東京都板橋区板橋2丁目2-12

16.2万円 / 管理費12,000円
敷
16.2万円礼
無料1LDK / 34.25㎡ / 2階
賃貸マンション
池袋ウエストガーデン
東武東上線 / 北池袋駅 徒歩16分
築6年 / 7階建
東京都豊島区池袋3丁目60-2
16万円 / 管理費10,000円
敷
16万円礼
16万円1LDK / 41.56㎡ / 2階


























