アーバンコア原宿1DK/12階/1201(東京都渋谷区 / 北参道駅)の賃貸
1/20
1/20
20.8万円
初期費用を知りたい管理費10,000円
- 敷金
- 20.8万円
- 保証金
- なし
- 礼金
- 10.4万円
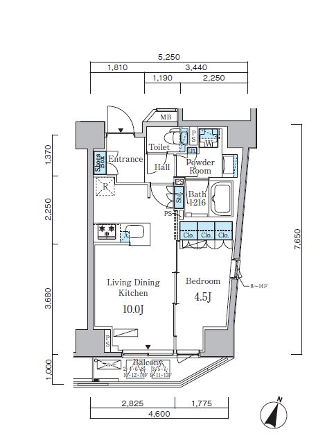
- 広さ
- 29.95㎡
- 階数
- 12階 / 14階建
- 間取り
- 1DK
- 建物
- マンション (鉄筋コンクリート)
- 築年数
- 築4年
- 向き
- 南西
- 交通
- 東京メトロ副都心線 / 北参道駅徒歩3分
- 山手線 / 原宿駅徒歩9分
- 住所
- 東京都渋谷区千駄ヶ谷3丁目3-4
無料で10秒! カンタンお問い合わせ

アーバンコア原宿
敷
20.8万円礼
10.4万円特徴
バス・トイレ別
2階以上
エアコン付き
ペット相談可
駐車場あり
室内洗濯機置場
オートロック
洗面所独立
- 入居条件
- ルームシェア不可、楽器不可、事務所(SOHO)不可、二人入居可、ペット可最新の空室状況が知りたい
- バス・トイレ
- 専用バス、専用トイレ、バストイレ別、シャワー、給湯、温水洗浄便座、浴室乾燥機、洗面所独立
- キッチン
- ガスコンロ対応、2口コンロ、システムキッチン
- セキュリティ
- オートロック
- 室内設備
- エアコン、室内洗濯置、フローリング、インターネット対応、ネット使用料不要、クロゼット、シューズボックスお部屋の詳しい情報を知りたい
- 部屋の特徴
- バルコニー、角住戸、二階以上写真を送ってほしい
- 共用部
- エレベーター、宅配ボックス、駐輪場、バイク置場
- その他の特徴
- 公営水道、都市ガス、下水
無料で10秒! カンタンお問い合わせ

アーバンコア原宿
敷
20.8万円礼
10.4万円不動産会社からのコメント
セキュリティ面は、TVインターホン・オートロックなどを設置しているので安全面でも優れております。お
共用部には宅配ボックスが付いているため、好きなタイミングで荷物を受け取ることができます。セキュリティ面は、TVインターホン・オートロックなど充実しているので、防犯対策もばっちりです。収納はシューズボックス・クロゼットなどが備え付けられているので、衣類や日用品の収納に重宝します。住まい探しの際には、実際に住んでみた時のことを想像しながら進めていくことが大事です。より良い住まいをご提供致します。
その他
- 駐車/駐輪
- 無 / あり駐車可能な車種や台数を知りたい
- 入居時期
- 2026年2月下旬最新の空室状況が知りたい
- 損保
- 住宅保険: 要
- 保証人代行
- 加入要 会社名: エポスカード 費用: 【B】賃料総額40%/月額800円【GTN】賃料総額50%/月額2,000円 詳細:個人・法人 利用可能 / 最低保証料:15,000円 / 月額800円 【B1】※ベーシックプラン 【GP80】※外
- その他費用
初期費用を知りたい鍵交換費用:36,300円
- 情報
情報登録日:2026/1/31
情報更新日:2026/1/30
次回更新予定日:2026/2/13
- 備考
- 現況: 居住中 更新料: 新賃料の1.0ヶ月分 契約期間: 2年 管理人: 日勤 自社管理番号: 894811
取扱い会社
- 取扱い会社
- 株式会社ルッソリアルティ LUSSO不動産条件が近い物件も紹介してほしい
- 免許番号
- 東京都知事(1)第111974号
- 取引態様
- 仲介
- 所在地
- 東京都渋谷区道玄坂2-15-1 ノア道玄坂811
- 電話番号
- 03-6416-3672
- 営業時間
- 10:00~19:00
- 定休日
- 年中無休
- 所属団体名
- 東京都宅地建物取引業協会
おすすめ物件 (4件)
賃貸マンション
キャッツ原宿(CATS原宿 )
山手線 / 原宿駅 徒歩5分
築19年 / 地上11階地下1階建
東京都渋谷区神宮前1丁目2-12
19.2万円 / 管理費10,000円
敷
19.2万円礼
無料ワンルーム / 30.97㎡ / 7階
賃貸マンション
渋谷区神宮前1丁目 地上11階地下1階建 2007年築

山手線 / 原宿駅 徒歩5分
築19年 / 11階建
東京都渋谷区神宮前1丁目

19.2万円 / 管理費10,000円
敷
19.2万円礼
無料ワンルーム / 30.97㎡ / 7階
賃貸マンション
渋谷区千駄ヶ谷3丁目 12階建 2022年築

東京メトロ副都心線 / 北参道駅 徒歩3分
築4年 / 12階建
東京都渋谷区千駄ヶ谷3丁目2-7

19.8万円 / 管理費9,000円
敷
19.8万円礼
19.8万円1LDK / 33.63㎡ / 8階
賃貸マンション
ル・シヤージュ神宮前

山手線 / 原宿駅 徒歩12分
築22年 / 地上5階地下1階建
東京都渋谷区神宮前3丁目

家賃カード決済可
20.3万円 / 管理費15,000円
敷
20.3万円礼
20.3万円1LDK / 39.03㎡ / 2階
賃貸マンション
キャッツ原宿(CATS原宿 )
山手線 / 原宿駅 徒歩5分
築19年 / 地上11階地下1階建
東京都渋谷区神宮前1丁目2-12
19.2万円 / 管理費10,000円
敷
19.2万円礼
無料ワンルーム / 30.97㎡ / 7階
賃貸マンション
渋谷区神宮前1丁目 地上11階地下1階建 2007年築

山手線 / 原宿駅 徒歩5分
築19年 / 11階建
東京都渋谷区神宮前1丁目

19.2万円 / 管理費10,000円
敷
19.2万円礼
無料ワンルーム / 30.97㎡ / 7階
賃貸マンション
渋谷区千駄ヶ谷3丁目 12階建 2022年築

東京メトロ副都心線 / 北参道駅 徒歩3分
築4年 / 12階建
東京都渋谷区千駄ヶ谷3丁目2-7

19.8万円 / 管理費9,000円
敷
19.8万円礼
19.8万円1LDK / 33.63㎡ / 8階
賃貸マンション
ル・シヤージュ神宮前

山手線 / 原宿駅 徒歩12分
築22年 / 地上5階地下1階建
東京都渋谷区神宮前3丁目

家賃カード決済可
20.3万円 / 管理費15,000円
敷
20.3万円礼
20.3万円1LDK / 39.03㎡ / 2階
同じ最寄り駅 × 同じ特徴 で探す
同じ市区町村 × 同じ特徴 で探す




















