福岡市中央区大濠2丁目 7階建 2008年築3LDK/3階(福岡県福岡市中央区 / 唐人町駅)の賃貸
1/26
1/26
36.9万円
初期費用を知りたい管理費10,000円
- 敷金
- 無料
- 保証金
- なし
- 礼金
- 73.8万円
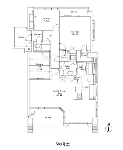
- 広さ
- 115.02㎡
- 階数
- 3階 / 7階建
- 間取り
- 3LDK
- 建物
- マンション (鉄筋コンクリート)
- 築年数
- 築18年
- 向き
- 南
- 交通
- 地下鉄空港線 / 唐人町駅徒歩4分
- 地下鉄空港線 / 大濠公園駅徒歩11分
- 住所
- 福岡県福岡市中央区大濠2丁目
コンビニエンスストア 232m
スーパーマーケット 222m
セブンイレブン 福岡唐人町駅前店 288m
無料で10秒! カンタンお問い合わせ

福岡市中央区大濠2丁目 7階建 2008年築
敷
無料礼
73.8万円特徴
バス・トイレ別
2階以上
エアコン付き
ペット相談可
駐車場あり
室内洗濯機置場
オートロック
洗面所独立
- 入居条件
- 初期費用カード決済可、二人入居可、ペット相談、保証人要最新の空室状況が知りたい
- バス・トイレ
- 専用バス、専用トイレ、バストイレ別、シャワー、給湯、追焚機能浴室、温水洗浄便座、浴室乾燥機、洗面所独立
- キッチン
- ガスコンロ対応、3口以上コンロ、システムキッチン、食器洗乾燥機
- セキュリティ
- オートロック、防犯カメラ
- 室内設備
- エアコン、室内洗濯置、CATV、フローリング、インターネット対応、クロゼット、シューズボックスお部屋の詳しい情報を知りたい
- 部屋の特徴
- バルコニー、角住戸、二階以上写真を送ってほしい
- 共用部
- エレベーター、宅配ボックス、駐輪場、敷地内駐車場
- その他の特徴
- 公営水道、都市ガス、下水、駐車場あり
無料で10秒! カンタンお問い合わせ

福岡市中央区大濠2丁目 7階建 2008年築
敷
無料礼
73.8万円不動産会社からのコメント
当社イチオシの物件の「テングッドグラン大濠」。ぜひ一度ご覧ください。こちらの物件はローソン 福岡今
「テングッドグラン大濠」のここがイチオシ。近くにはローソン 福岡今川一丁目店(徒歩3分)がありちょっとした買い物に便利です。納得できる住まい選びを行っていきませんか。住まい環境はより良いものにしていきましょう。まずはこちらからご覧ください。
その他
- 駐車/駐輪
- 空有 費用: 33,000円 / あり駐車可能な車種や台数を知りたい
- 入居時期
- 損保
- 住宅保険: 要
- 保証人代行
- 加入要 費用: 初回月額50% 更新料1万円/年
- その他費用
初期費用を知りたい鍵交換費用:33,000円
室内清掃費用:77,000円
- 情報
情報登録日:2026/4/11
情報更新日:2026/4/27
次回更新予定日:2026/5/8
- 備考
- 現況: 空家 契約期間: 2年 管理人: 日勤 自社管理番号: 2486483
取扱い会社
- 取扱い会社
- 株式会社プラン・ドゥ・シー SumoSumo岡本店条件が近い物件も紹介してほしい
- 免許番号
- 国土交通大臣(2)第9550号
- 取引態様
- 仲介
- 所在地
- 兵庫県神戸市東灘区岡本1-9-9 甲南グランメール岡本1F
- 電話番号
- 078-600-0540
- 定休日
- 年末年始
- 所属団体名
- 社団法人全日本不動産協会
おすすめ物件 (1件)
賃貸マンション
福岡市中央区大濠2丁目 7階建 2008年築

地下鉄空港線 / 唐人町駅 徒歩4分
築18年 / 7階建
福岡県福岡市中央区大濠2丁目

36.9万円 / 管理費10,000円
敷
無料礼
73.8万円3LDK / 115.02㎡ / 3階
賃貸マンション
福岡市中央区大濠2丁目 7階建 2008年築

地下鉄空港線 / 唐人町駅 徒歩4分
築18年 / 7階建
福岡県福岡市中央区大濠2丁目

36.9万円 / 管理費10,000円
敷
無料礼
73.8万円3LDK / 115.02㎡ / 3階


























