レジディアタワー乃木坂1R/18階/1804(東京都港区 / 乃木坂駅)の賃貸
1/25
1/25
27.8万円
初期費用を知りたい管理費20,000円
- 敷金
- 27.8万円
- 保証金
- なし
- 礼金
- 27.8万円
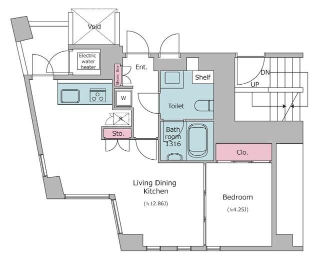
- 広さ
- 41.45㎡
- 階数
- 18階 / 19階建
- 間取り
- 1R
- 建物
- マンション (鉄筋コンクリート)
- 築年数
- 築22年
- 向き
- 北東
- 交通
- 東京メトロ千代田線 / 乃木坂駅徒歩3分
- 東京メトロ日比谷線 / 六本木駅徒歩12分
- 住所
- 東京都港区赤坂9丁目6-39
コンビニエンスストア 131m
スーパーマーケット 649m
総合病院 301m
公園 419m
ドラッグストア 860m
銀行 407m
ポニークリーニング乃木坂店 151m
無料で10秒! カンタンお問い合わせ

レジディアタワー乃木坂
敷
27.8万円礼
27.8万円特徴
バス・トイレ別
2階以上
エアコン付き
ペット相談可
駐車場あり
室内洗濯機置場
オートロック
洗面所独立
- 入居条件
- ペット相談、ペット可、事務所(SOHO)不可、保証人不要、初期費用カード決済可、即入居可最新の空室状況が知りたい
- バス・トイレ
- バストイレ別、温水洗浄便座、追焚機能浴室、浴室乾燥機、専用バス、専用トイレ
- キッチン
- システムキッチン、IHクッキングヒーター、3口以上コンロ
- セキュリティ
- オートロック、防犯カメラ
- 室内設備
- 室内洗濯置、フローリング、インターネット対応、BS、CS、エアコン、クロゼット、シューズボックス、オール電化お部屋の詳しい情報を知りたい
- 部屋の特徴
- バルコニー、角住戸、二階以上写真を送ってほしい
- 共用部
- エレベーター、宅配ボックス
- その他の特徴
- 家賃保証付き、公営水道、下水
無料で10秒! カンタンお問い合わせ

レジディアタワー乃木坂
敷
27.8万円礼
27.8万円同じ建物で掲載中の物件 (9件)
不動産会社からのコメント
当物件はオンラインまたはお近くの店舗でご相談お申込を承ります
当物件はオンラインまたはお近くの店舗でご相談お申込を承ります。リライフは首都圏23店舗のネットワークで豊富な物件情報をご提供いたします。当物件に類似した未公開物件のご提案も可能です。お気軽にお問い合わせください。違約金有:1年未満解約時賃料1ヶ月分
その他
- 駐車/駐輪
- 無 / なし駐車可能な車種や台数を知りたい
- 入居時期
- 損保
- 住宅保険: 要
- 保証人代行
- 加入要 費用: 初回保証料:賃料等の40%~
- その他費用
初期費用を知りたいインターネット使用料(月額):1,650円
入居者限定会員サービス(初回のみ):11,000円
鍵交換費用:22,000円
- 情報
情報登録日:2026/1/9
情報更新日:2026/5/28
次回更新予定日:2026/6/4
- 備考
- 現況: 空家 更新料: 新賃料の1.0ヶ月分 契約期間: 2年 自社管理番号: B35418R461722
取扱い会社
- 取扱い会社
- 株式会社 リライフ 四谷店条件が近い物件も紹介してほしい
- 免許番号
- 国土交通大臣(1)第10792号
- 取引態様
- 仲介
- 所在地
- 東京都新宿区四谷1-3-23 小倉ビル2階
- 電話番号
- 03-4296-8023
- 営業時間
- 10:00~19:00
- 定休日
- 水曜日
- 所属団体名
- 公益社団法⼈東京都宅地建物取引業協会、公益社団法⼈全国宅地建物取引業保証協会
おすすめ物件 (1件)
賃貸マンション
レジディアタワー乃木坂

東京メトロ千代田線 / 乃木坂駅 徒歩3分
築22年 / 19階建
東京都港区赤坂9丁目6-39

28万円 / 管理費20,000円
敷
28万円礼
無料1LDK / 41.45㎡ / 5階
賃貸マンション
レジディアタワー乃木坂

東京メトロ千代田線 / 乃木坂駅 徒歩3分
築22年 / 19階建
東京都港区赤坂9丁目6-39

28万円 / 管理費20,000円
敷
28万円礼
無料1LDK / 41.45㎡ / 5階
同じ最寄り駅 × 同じ特徴 で探す
同じ市区町村 × 同じ特徴 で探す






























