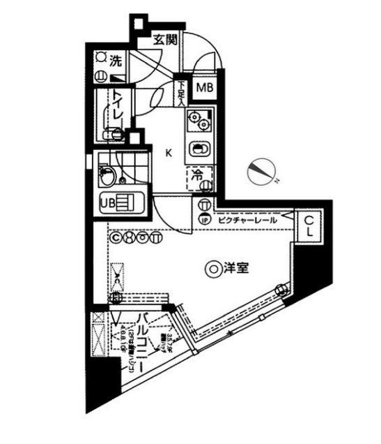
クライムヒルズⅡ1R/2階/202(東京都文京区 / 千石駅)の賃貸
1/30
1/30
7.5万円
初期費用を知りたい管理費5,000円
- 敷金
- 無料
- 保証金
- なし
- 礼金
- 7.5万円
- 広さ
- 12.43㎡
- 階数
- 2階 / 2階建
- 間取り
- 1R
- 建物
- アパート (木造)
- 築年数
- 築10年
- 向き
- 交通
- 都営三田線 / 千石駅徒歩10分
- 東京メトロ丸ノ内線 / 新大塚駅徒歩12分
- 住所
- 東京都文京区千石3丁目
コンビニエンスストア 306m
スーパーマーケット 252m
総合病院 1449m
ドラッグストア 2098m
商店街 1982m
ミニストップ 新大塚店 1229m
無料で10秒! カンタンお問い合わせ

クライムヒルズⅡ
敷
無料礼
7.5万円特徴
バス・トイレ別
2階以上
エアコン付き
ペット相談可
駐車場あり
室内洗濯機置場
オートロック
洗面所独立
- 入居条件
- 家賃・初期費用カード決済可、保証人不要、即入居可最新の空室状況が知りたい
- バス・トイレ
- 専用バス、専用トイレ、バストイレ別、シャワー、温水洗浄便座
- キッチン
- ガスコンロ対応、1口コンロ
- 室内設備
- エアコン、室内洗濯置、フローリング、光ファイバー、シューズボックス、照明付お部屋の詳しい情報を知りたい
- 部屋の特徴
- ロフト、角住戸、二階以上、最上階写真を送ってほしい
- 共用部
- 駐輪場
- その他の特徴
- 公営水道、下水、デザイナーズ
無料で10秒! カンタンお問い合わせ

クライムヒルズⅡ
敷
無料礼
7.5万円同じ建物で掲載中の物件 (1件)
不動産会社からのコメント
セブンイレブン 豊島南大塚1丁目南店まで徒歩4分と近場にコンビニがあるのもポイント。室内設備はエアコ
「クライムヒルズ」のここがイチオシ。セブンイレブン 豊島南大塚1丁目南店まで徒歩4分と近場にコンビニがあるのもポイント。付近に駅が2駅あり、行き先に応じて使い分けができます。Home Agent新宿本店へのお問い合わせは03-6258-5721へご連絡お願いします。当社スタッフがお客様の住まい探しをサポート致します。
その他
- 駐車/駐輪
- 要確認 / あり駐車可能な車種や台数を知りたい
- 入居時期
- 損保
- 住宅保険: 要
- 保証人代行
- 加入要 会社名: エポスカード 費用: 【初回】賃料+管理費の総額の50%【月額】賃料+管理費の総額の1.2%
- その他費用
初期費用を知りたいクリーニング費用(退去時):58,300円
鍵交換費用:33,000円
24時間サポート:16,500円
- 情報
情報登録日:2026/4/1
情報更新日:2026/4/13
次回更新予定日:2026/4/21
- 備考
- 現況: 空家 更新料: 新賃料の1.0ヶ月分 契約期間: 2年 自社管理番号: 373189
取扱い会社
- 取扱い会社
- 株式会社ジャパンリアルエステート Home Agent新宿本店条件が近い物件も紹介してほしい
- 免許番号
- 東京都知事(1)第106820号
- 取引態様
- 仲介
- 所在地
- 東京都新宿区西新宿1-14-15-803
- 電話番号
- 03-6258-5721
- 営業時間
- 10:00~18:00
- 定休日
- なし(年末年始)
- 所属団体名
- 公益社団法人 全日本不動産協会
おすすめ物件 (11件)
賃貸マンション
ステージファースト本駒込Ⅱ

都営三田線 / 千石駅 徒歩4分
築21年 / 9階建
東京都文京区本駒込2丁目8-2

9.3万円 / 管理費7,000円
敷
9.3万円礼
9.3万円1K / 21.09㎡ / 4階
賃貸マンション
REV REFAYS-MANA

東京メトロ丸ノ内線 / 新大塚駅 徒歩7分
築19年 / 10階建
東京都豊島区南大塚2丁目32-10

8.8万円 / 管理費10,000円
敷
無料礼
8.8万円1K / 20.43㎡ / 3階
賃貸マンション
パレステュディオ文京千石パークサイド

都営三田線 / 千石駅 徒歩10分
築23年 / 6階建
東京都文京区千石4丁目24-2

9.5万円 / 管理費5,000円
敷
無料礼
9.5万円1K / 20.88㎡ / 6階
賃貸マンション
文京区大塚5丁目 11階建 2007年築

東京メトロ丸ノ内線 / 新大塚駅 徒歩5分
築19年 / 11階建
東京都文京区大塚5丁目

9万円 / 管理費8,000円
敷
9万円礼
9万円1K / 20.04㎡ / 10階
賃貸マンション
グランヴァン東池袋Ⅱ

東京メトロ丸ノ内線 / 新大塚駅 徒歩6分
築21年 / 11階建
東京都豊島区東池袋5丁目40-7

8.8万円 / 管理費10,000円
敷
無料礼
8.8万円1K / 22.02㎡ / 7階
賃貸マンション
プレール・ドゥーク文京本駒込

都営三田線 / 千石駅 徒歩10分
築22年 / 地上11階地下1階建
東京都文京区本駒込1丁目28-17

8.8万円 / 管理費10,000円
敷
8.8万円礼
無料1K / 21.3㎡ / 6階
賃貸マンション
REV REFAYSーMANA
)
東京メトロ丸ノ内線 / 新大塚駅 徒歩6分
築19年 / 10階建
東京都豊島区南大塚2丁目32-10
)
8.8万円 / 管理費10,000円
敷
無料礼
8.8万円1K / 20.43㎡ / 3階
賃貸マンション
ステージファースト本駒込Ⅱ

都営三田線 / 千石駅 徒歩4分
築21年 / 9階建
東京都文京区本駒込2丁目8-2

9.3万円 / 管理費7,000円
敷
9.3万円礼
9.3万円1K / 21.09㎡ / 4階
賃貸マンション
REV REFAYS-MANA

東京メトロ丸ノ内線 / 新大塚駅 徒歩7分
築19年 / 10階建
東京都豊島区南大塚2丁目32-10

8.8万円 / 管理費10,000円
敷
無料礼
8.8万円1K / 20.43㎡ / 3階
賃貸マンション
パレステュディオ文京千石パークサイド

都営三田線 / 千石駅 徒歩10分
築23年 / 6階建
東京都文京区千石4丁目24-2

9.5万円 / 管理費5,000円
敷
無料礼
9.5万円1K / 20.88㎡ / 6階
賃貸マンション
文京区大塚5丁目 11階建 2007年築

東京メトロ丸ノ内線 / 新大塚駅 徒歩5分
築19年 / 11階建
東京都文京区大塚5丁目

9万円 / 管理費8,000円
敷
9万円礼
9万円1K / 20.04㎡ / 10階
賃貸マンション
グランヴァン東池袋Ⅱ

東京メトロ丸ノ内線 / 新大塚駅 徒歩6分
築21年 / 11階建
東京都豊島区東池袋5丁目40-7

8.8万円 / 管理費10,000円
敷
無料礼
8.8万円1K / 22.02㎡ / 7階
賃貸マンション
プレール・ドゥーク文京本駒込

都営三田線 / 千石駅 徒歩10分
築22年 / 地上11階地下1階建
東京都文京区本駒込1丁目28-17

8.8万円 / 管理費10,000円
敷
8.8万円礼
無料1K / 21.3㎡ / 6階
賃貸マンション
REV REFAYSーMANA
)
東京メトロ丸ノ内線 / 新大塚駅 徒歩6分
築19年 / 10階建
東京都豊島区南大塚2丁目32-10
)
8.8万円 / 管理費10,000円
敷
無料礼
8.8万円1K / 20.43㎡ / 3階
同じ最寄り駅 × 同じ特徴 で探す
同じ市区町村 × 同じ特徴 で探す


































