COURT TAKETOKU Ⅳ1K/5階/502(東京都墨田区 / 菊川駅)の賃貸
1/30
1/30
9.3万円
初期費用を知りたい管理費8,000円
- 敷金
- 無料
- 保証金
- なし
- 礼金
- 9.3万円
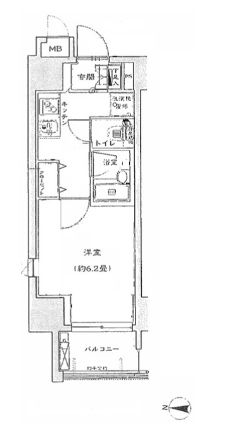
- 広さ
- 25.73㎡
- 階数
- 5階 / 6階建
- 間取り
- 1K
- 建物
- マンション (鉄筋コンクリート)
- 築年数
- 築16年
- 向き
- 南
- 交通
- 都営新宿線 / 菊川駅徒歩7分
- 都営大江戸線 / 森下駅徒歩9分
- 住所
- 東京都墨田区立川3丁目18-15
コンビニエンスストア 94m
スーパーマーケット 303m
ドラッグストア 471m
銀行 722m
商店街 503m
ほっともっと 森下店 606m
無料で10秒! カンタンお問い合わせ

COURT TAKETOKU Ⅳ
敷
無料礼
9.3万円特徴
バス・トイレ別
2階以上
エアコン付き
ペット相談可
駐車場あり
室内洗濯機置場
オートロック
洗面所独立
- 入居条件
- 初期費用カード決済可、保証人不要、即入居可最新の空室状況が知りたい
- バス・トイレ
- 専用バス、専用トイレ、バストイレ別、シャワー、給湯、温水洗浄便座、浴室乾燥機
- キッチン
- ガスコンロ対応、2口コンロ、システムキッチン
- セキュリティ
- オートロック、防犯カメラ
- 室内設備
- エアコン、室内洗濯置、フローリング、光ファイバー、クロゼット、シューズボックスお部屋の詳しい情報を知りたい
- 部屋の特徴
- バルコニー、二階以上写真を送ってほしい
- 共用部
- エレベーター、宅配ボックス
- その他の特徴
- 公営水道、都市ガス、下水、外壁タイル張り
無料で10秒! カンタンお問い合わせ

COURT TAKETOKU Ⅳ
敷
無料礼
9.3万円同じ建物で掲載中の物件 (1件)
不動産会社からのコメント
ファミリーマート 本所立川三丁目店まで徒歩4分と近場にコンビニがあるのもポイント。新生活を失敗せず、
安心サポート24 770円(月額) 退去時室内クリーニング費は借主様負担となります。 共用部分の付随設備の詳細(空き状況・料金等)は要確認 ご入居される方のご内容によって保証会社等の契約条件に変動あり
その他
- 駐車/駐輪
- 要確認 / なし駐車可能な車種や台数を知りたい
- 入居時期
- 損保
- 住宅保険: 要
- 保証人代行
- 加入要 費用: 初回保証料:月額総賃料の1ヶ月 月額保証料:月額総賃料の1.5%
- その他費用
初期費用を知りたい鍵交換費用:24,200円
- 情報
情報登録日:2026/2/3
情報更新日:2026/2/2
次回更新予定日:2026/2/9
- 備考
- 現況: 空家 更新料: 新賃料の1.0ヶ月分 契約期間: 2年 自社管理番号: 458971
取扱い会社
- 取扱い会社
- 株式会社部屋市場 上野本店条件が近い物件も紹介してほしい
- 免許番号
- 東京都知事 (4) 第88642号
- 取引態様
- 仲介
- 所在地
- 東京都台東区上野6丁目5-1
- 電話番号
- 03-5818-8387
- 営業時間
- 10:00~21:00(年末年始)
- 定休日
- 年中無休
- 所属団体名
- 公益社団法人全日本不動産協会
おすすめ物件 (20件)
賃貸マンション
グランドコンシェルジュ錦糸町アジールコート

都営新宿線 / 菊川駅 徒歩9分
築17年 / 10階建
東京都墨田区緑3丁目

9.7万円 / 管理費5,000円
敷
9.7万円礼
9.7万円1K / 20.89㎡ / 2階
賃貸マンション
PRINCE54

都営新宿線 / 菊川駅 徒歩5分
築13年 / 9階建
東京都江東区森下5丁目15-6

10.5万円 / 管理費9,000円
敷
無料礼
15.75万円1K / 25.14㎡ / 7階
賃貸マンション
エクスクルーシブアイディ両国

都営新宿線 / 森下駅 徒歩9分
築18年 / 7階建
東京都墨田区両国2丁目1-6

7.8万円 / 管理費12,000円
敷
7.8万円礼
7.8万円1K / 20.08㎡ / 3階
賃貸マンション
HY’s crecer 清澄白河

都営新宿線 / 菊川駅 徒歩12分
築9年 / 8階建
東京都江東区三好4丁目

11.25万円 / 管理費8,000円
敷
11.25万円礼
11.25万円1K / 25.67㎡ / 3階
賃貸マンション
ステージファースト両国南アジールコート

都営新宿線 / 森下駅 徒歩5分
築19年 / 7階建
東京都墨田区立川1丁目

11.3万円 / 管理費5,000円
敷
11.3万円礼
11.3万円1K / 25.05㎡ / 2階
賃貸マンション
メゾン・ド・クロシェット

都営新宿線 / 菊川駅 徒歩6分
築9年 / 7階建
東京都墨田区立川3丁目16-11

11.2万円 / 管理費8,000円
敷
11.2万円礼
11.2万円1K / 26.74㎡ / 6階
賃貸マンション
グランドコンシェルジュ両国東アジールコート

都営新宿線 / 菊川駅 徒歩6分
築18年 / 7階建
東京都墨田区立川2丁目

10.8万円 / 管理費5,000円
敷
10.8万円礼
10.8万円1K / 25.31㎡ / 5階
賃貸マンション
ステージグランデ菊川

都営新宿線 / 菊川駅 徒歩8分
築10年 / 10階建
東京都墨田区緑3丁目

11.3万円 / 管理費5,000円
敷
11.3万円礼
11.3万円1K / 25.55㎡ / 4階
賃貸マンション
スカイコート両国参番館

都営大江戸線 / 森下駅 徒歩9分
築16年 / 10階建
東京都江東区新大橋2丁目

家賃カード決済可
10.8万円 / 管理費10,000円
敷
無料礼
10.8万円1K / 25.04㎡ / 6階
賃貸マンション
グランドコンシェルジュ錦糸町アジールコート

都営新宿線 / 菊川駅 徒歩9分
築17年 / 10階建
東京都墨田区緑3丁目

9.7万円 / 管理費5,000円
敷
9.7万円礼
9.7万円1K / 20.89㎡ / 2階
賃貸マンション
PRINCE54

都営新宿線 / 菊川駅 徒歩5分
築13年 / 9階建
東京都江東区森下5丁目15-6

10.5万円 / 管理費9,000円
敷
無料礼
15.75万円1K / 25.14㎡ / 7階
賃貸マンション
エクスクルーシブアイディ両国

都営新宿線 / 森下駅 徒歩9分
築18年 / 7階建
東京都墨田区両国2丁目1-6

7.8万円 / 管理費12,000円
敷
7.8万円礼
7.8万円1K / 20.08㎡ / 3階
賃貸マンション
HY’s crecer 清澄白河

都営新宿線 / 菊川駅 徒歩12分
築9年 / 8階建
東京都江東区三好4丁目

11.25万円 / 管理費8,000円
敷
11.25万円礼
11.25万円1K / 25.67㎡ / 3階
賃貸マンション
ステージファースト両国南アジールコート

都営新宿線 / 森下駅 徒歩5分
築19年 / 7階建
東京都墨田区立川1丁目

11.3万円 / 管理費5,000円
敷
11.3万円礼
11.3万円1K / 25.05㎡ / 2階
賃貸マンション
メゾン・ド・クロシェット

都営新宿線 / 菊川駅 徒歩6分
築9年 / 7階建
東京都墨田区立川3丁目16-11

11.2万円 / 管理費8,000円
敷
11.2万円礼
11.2万円1K / 26.74㎡ / 6階
賃貸マンション
グランドコンシェルジュ両国東アジールコート

都営新宿線 / 菊川駅 徒歩6分
築18年 / 7階建
東京都墨田区立川2丁目

10.8万円 / 管理費5,000円
敷
10.8万円礼
10.8万円1K / 25.31㎡ / 5階
賃貸マンション
ステージグランデ菊川

都営新宿線 / 菊川駅 徒歩8分
築10年 / 10階建
東京都墨田区緑3丁目

11.3万円 / 管理費5,000円
敷
11.3万円礼
11.3万円1K / 25.55㎡ / 4階
賃貸マンション
スカイコート両国参番館

都営大江戸線 / 森下駅 徒歩9分
築16年 / 10階建
東京都江東区新大橋2丁目

家賃カード決済可
10.8万円 / 管理費10,000円
敷
無料礼
10.8万円1K / 25.04㎡ / 6階
同じ最寄り駅 × 同じ特徴 で探す
同じ市区町村 × 同じ特徴 で探す





























)




















