メゾンS1K/2階/201(東京都目黒区 / 西小山駅)の賃貸
1/12
1/12
8.3万円
初期費用を知りたい管理費なし
家賃割引サービス適用で最大2年間4.8万円割引
- 敷金
- 8.3万円
- 保証金
- なし
- 礼金
- 8.3万円
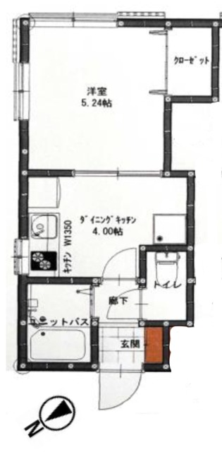
- 広さ
- 23.19㎡
- 階数
- 2階 / 2階建
- 間取り
- 1K
- 建物
- アパート (木造)
- 築年数
- 築64年
- 向き
- 交通
- 東急目黒線 / 西小山駅徒歩5分
- 東急目黒線 / 洗足駅徒歩9分
- 住所
- 東京都目黒区洗足1丁目5-12
スーパーマーケット 250m
無料で10秒! カンタンお問い合わせ
メゾンS
敷
8.3万円礼
8.3万円特徴
バス・トイレ別
2階以上
エアコン付き
ペット相談可
駐車場あり
室内洗濯機置場
オートロック
洗面所独立
- 入居条件
- 初期費用カード決済可最新の空室状況が知りたい
- バス・トイレ
- 給湯、専用バス、シャワー、専用トイレ、バストイレ別
- キッチン
- ガスコンロ対応、1口コンロ、2口コンロ
- 室内設備
- エアコン、室内洗濯置、フローリングお部屋の詳しい情報を知りたい
- 部屋の特徴
- 角住戸、二階以上、最上階写真を送ってほしい
- その他の特徴
- 公営水道、都市ガス
無料で10秒! カンタンお問い合わせ
メゾンS
敷
8.3万円礼
8.3万円同じ建物で掲載中の物件 (1件)
不動産会社からのコメント
★安心・納得・満足なお部屋探しは、タウンハウジングへ★
創業46周年、直営135店舗以上のネットワークで最適なマンション・アパートをお探しします!お部屋探しからご契約までオンラインで簡単にご対応できます!タウンハウジングは2024年賃貸仲介件数全国第4位!
その他
- 駐車/駐輪
- 近隣 費用: 35,000円 税: 税込み 距離: 300m / なし駐車可能な車種や台数を知りたい
- 入居時期
- 2025年12月上旬最新の空室状況が知りたい
- 損保
- 住宅保険: 要
- 保証人代行
- -
- その他費用
- 情報
情報登録日:2025/10/22
情報更新日:2025/12/6
次回更新予定日:2025/12/16
- 備考
- 現況: 空家 更新料: 新賃料の1.0ヶ月分 契約期間: 2年 総戸数: 4戸
取扱い会社
- 取扱い会社
- 株式会社タウンハウジング 桜新町店条件が近い物件も紹介してほしい
- 免許番号
- 国土交通大臣(1)9926号
- 取引態様
- 仲介
- 所在地
- 東京都世田谷区桜新町2丁目 8-4 ヨクレール55 1B
- 電話番号
- 03-5426-2271
- 所属団体名
- 東京都宅地建物取引業協会
おすすめ物件 (16件)
賃貸マンション
プレール・ドゥーク品川旗の台

東急目黒線 / 西小山駅 徒歩13分
築2年 / 9階建
東京都品川区西中延1丁目

9.4万円 / 管理費12,000円
敷
無料礼
9.4万円1K / 20.49㎡ / 5階
賃貸マンション
クレイシア旗の台

東急目黒線 / 洗足駅 徒歩10分
築14年 / 12階建
東京都品川区旗の台6丁目

7.85万円 / 管理費12,000円
敷
7.85万円礼
7.85万円1K / 20.68㎡ / 3階
賃貸アパート
コンフィア目黒本町

東急目黒線 / 西小山駅 徒歩10分
築7年 / 3階建
東京都目黒区目黒本町6丁目

9.4万円 / 管理費3,000円
敷
9.4万円礼
9.4万円1K / 19.21㎡ / 3階
賃貸マンション
大田区北千束1丁目 8階建 2000年築

東急目黒線 / 洗足駅 徒歩5分
築25年 / 8階建
東京都大田区北千束1丁目

8.4万円 / 管理費5,000円
敷
8.4万円礼
8.4万円1K / 20.16㎡ / 2階
賃貸マンション
スパシエヴァロル品川荏原

東急目黒線 / 西小山駅 徒歩12分
築9年 / 14階建
東京都品川区荏原6丁目

9.9万円 / 管理費20,000円
敷
9.9万円礼
14.85万円1K / 22.05㎡ / 6階
賃貸マンション
品川区 7階建 2021年築
東急目黒線 / 西小山駅 徒歩8分
築4年 / 7階建
東京都品川区荏原5丁目12-2
10万円 / 管理費10,000円
敷
10万円礼
10万円1K / 20.23㎡ / 5階
賃貸マンション
THE KAHALA 武蔵小山

東急目黒線 / 西小山駅 徒歩9分
築6年 / 5階建
東京都品川区小山4丁目

9.5万円 / 管理費10,000円
敷
9.5万円礼
9.5万円1K / 21.78㎡ / 3階
賃貸アパート
KUハウス西小山

東急目黒線 / 西小山駅 徒歩10分
築60年 / 2階建
東京都品川区荏原7丁目10-7

7.2万円 / 管理費1,000円
敷
7.2万円礼
7.2万円ワンルーム / 18.3㎡ / 2階
賃貸アパート
品川区荏原7丁目 3階建 2021年築

東急目黒線 / 西小山駅 徒歩8分
築4年 / 3階建
東京都品川区荏原7丁目

8.8万円 / 管理費5,000円
敷
無料礼
無料1K / 18.54㎡ / 2階
賃貸マンション
プレール・ドゥーク品川旗の台

東急目黒線 / 西小山駅 徒歩13分
築2年 / 9階建
東京都品川区西中延1丁目

9.4万円 / 管理費12,000円
敷
無料礼
9.4万円1K / 20.49㎡ / 5階
賃貸マンション
クレイシア旗の台

東急目黒線 / 洗足駅 徒歩10分
築14年 / 12階建
東京都品川区旗の台6丁目

7.85万円 / 管理費12,000円
敷
7.85万円礼
7.85万円1K / 20.68㎡ / 3階
賃貸アパート
コンフィア目黒本町

東急目黒線 / 西小山駅 徒歩10分
築7年 / 3階建
東京都目黒区目黒本町6丁目

9.4万円 / 管理費3,000円
敷
9.4万円礼
9.4万円1K / 19.21㎡ / 3階
賃貸マンション
大田区北千束1丁目 8階建 2000年築

東急目黒線 / 洗足駅 徒歩5分
築25年 / 8階建
東京都大田区北千束1丁目

8.4万円 / 管理費5,000円
敷
8.4万円礼
8.4万円1K / 20.16㎡ / 2階
賃貸マンション
スパシエヴァロル品川荏原

東急目黒線 / 西小山駅 徒歩12分
築9年 / 14階建
東京都品川区荏原6丁目

9.9万円 / 管理費20,000円
敷
9.9万円礼
14.85万円1K / 22.05㎡ / 6階
賃貸マンション
品川区 7階建 2021年築
東急目黒線 / 西小山駅 徒歩8分
築4年 / 7階建
東京都品川区荏原5丁目12-2
10万円 / 管理費10,000円
敷
10万円礼
10万円1K / 20.23㎡ / 5階
賃貸マンション
THE KAHALA 武蔵小山

東急目黒線 / 西小山駅 徒歩9分
築6年 / 5階建
東京都品川区小山4丁目

9.5万円 / 管理費10,000円
敷
9.5万円礼
9.5万円1K / 21.78㎡ / 3階
賃貸アパート
KUハウス西小山

東急目黒線 / 西小山駅 徒歩10分
築60年 / 2階建
東京都品川区荏原7丁目10-7

7.2万円 / 管理費1,000円
敷
7.2万円礼
7.2万円ワンルーム / 18.3㎡ / 2階
賃貸アパート
品川区荏原7丁目 3階建 2021年築

東急目黒線 / 西小山駅 徒歩8分
築4年 / 3階建
東京都品川区荏原7丁目

8.8万円 / 管理費5,000円
敷
無料礼
無料1K / 18.54㎡ / 2階
同じ最寄り駅 × 同じ特徴 で探す
同じ市区町村 × 同じ特徴 で探す















