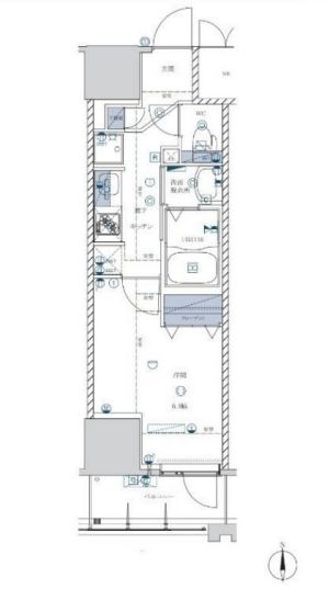
江東区北砂 3階建 1980年築2K/1階/101(東京都江東区 / 大島駅)の賃貸
1/24
1/24
7.5万円
初期費用を知りたい管理費5,000円
- 敷金
- 7.5万円
- 保証金
- なし
- 礼金
- 7.5万円
- 広さ
- 35㎡
- 階数
- 1階 / 3階建
- 間取り
- 2K
- 建物
- マンション (鉄骨)
- 築年数
- 築46年
- 向き
- 西
- 交通
- 都営新宿線 / 大島駅徒歩11分
- 東京メトロ東西線 / 南砂町駅徒歩19分
- 都営新宿線 / 西大島駅徒歩20分
- 住所
- 東京都江東区北砂5丁目
オーケー 尾高橋店 1014m
ファミリーマート 1308m
セブン-イレブン江東南砂2丁目店 1640m
薬 マツモトキヨシ 東陽町店 1753m
くすりの福太郎南砂2丁目店 1698m
セブンイレブン 1454m
まいばすけっと 江東扇橋3丁目店 1500m
西友東陽町店 1737m
砂町小学校 203m
第四砂町中学校 763m
コンビニ 279m
スーパー 265m
無料で10秒! カンタンお問い合わせ
)
江東区北砂 3階建 1980年築
敷
7.5万円礼
7.5万円特徴
バス・トイレ別
2階以上
エアコン付き
ペット相談可
駐車場あり
室内洗濯機置場
オートロック
洗面所独立
- 入居条件
- 事務所可、高齢者向け最新の空室状況が知りたい
- バス・トイレ
- シャワー、バストイレ別
- キッチン
- ガスコンロ対応
- 室内設備
- インターホン、インターネット対応、押入、照明付お部屋の詳しい情報を知りたい
- 部屋の特徴
- 角住戸、バルコニー写真を送ってほしい
- 共用部
- 駐輪場、バイク置場
- その他の特徴
- 地デジ対応、プロパンガス
無料で10秒! カンタンお問い合わせ
)
江東区北砂 3階建 1980年築
敷
7.5万円礼
7.5万円同じ建物で掲載中の物件 (1件)
その他
- 駐車/駐輪
- 無し / あり駐車可能な車種や台数を知りたい
- 入居時期
- 損保
- 住宅保険: 要 22000円
- 保証人代行
- 保証人: 要
- その他費用
- 情報
情報登録日:2025/10/1
情報更新日:2026/4/26
次回更新予定日:2026/5/13
- 備考
- 更新料: 75000円 退去時費用備考: 退去時費用は借主負担 その他: 保証会社利用必須 初回:総賃料の60%~ その他初期費用 159500円 業者管理CD: 111004615
取扱い会社
- 取扱い会社
- アパマンショップ目黒西口店 株式会社 アップル条件が近い物件も紹介してほしい
- 免許番号
- 国土交通大臣(5)6971
- 取引態様
- 一般媒介
- 所在地
- 東京都品川区上大崎2丁目
- 電話番号
- 03-6867-1010
- 所属団体名
- (公社)東京都宅地建物取引協会,(公社) 首都圏不動産公正取引協議会加盟
おすすめ物件 (19件)
賃貸マンション
メインステージ南砂町

東京メトロ東西線 / 南砂町駅 徒歩19分
築2年 / 10階建
東京都江東区南砂1丁目

9.45万円 / 管理費10,000円
敷
9.45万円礼
9.45万円2K / 25.41㎡ / 3階
賃貸マンション
ライジングプレイス亀戸

都営新宿線 / 大島駅 徒歩10分
築11年 / 18階建
東京都江東区亀戸7丁目10-18

8.25万円 / 管理費15,000円
敷
無料礼
8.25万円1K / 26.1㎡ / 5階
賃貸マンション
アルマドーラ亀戸
都営新宿線 / 大島駅 徒歩9分
築12年 / 10階建
東京都江東区亀戸7丁目4-12
8.9万円 / 管理費15,000円
敷
8.9万円礼
8.9万円1K / 25.7㎡ / 4階
賃貸マンション
東武鉄道亀戸線 亀戸水神駅徒歩9分 11階建て 築5年
都営新宿線 / 大島駅 徒歩20分
築5年 / 11階建
東京都江東区亀戸7丁目37-1
8.8万円 / 管理費10,000円
敷
無料礼
8.8万円1K / 25.71㎡ / 2階
賃貸マンション
サンイースト

東京メトロ東西線 / 南砂町駅 徒歩21分
築23年 / 6階建
東京都江東区東陽4丁目7-14

9.5万円 / 管理費なし
敷
9.5万円礼
9.5万円1K / 25.53㎡ / 3階
賃貸マンション
ヴィータローザ南砂町

東京メトロ東西線 / 南砂町駅 徒歩11分
築20年 / 9階建
東京都江東区北砂4丁目33-16

8.8万円 / 管理費10,000円
敷
8.8万円礼
8.8万円1K / 25.08㎡ / 8階
賃貸マンション
スプレスター東陽町アリビエ

東京メトロ東西線 / 南砂町駅 徒歩17分
築12年 / 8階建
東京都江東区南砂2丁目28-22

9万円 / 管理費15,000円
敷
無料礼
18万円ワンルーム / 25.48㎡ / 2階
賃貸マンション
江東区北砂 4階建 2013年築
)
都営新宿線 / 大島駅 徒歩10分
築13年 / 4階建
東京都江東区北砂5丁目18-10
)
9万円 / 管理費4,000円
敷
9万円礼
9万円1K / 26.96㎡ / 2階
賃貸マンション
グランヴァン亀戸Re
都営新宿線 / 大島駅 徒歩11分
築19年 / 8階建
東京都江東区亀戸6丁目39-7
8.5万円 / 管理費15,000円
敷
無料礼
8.5万円ワンルーム / 26.02㎡ / 3階
賃貸マンション
グランド・ガーラ東大島
都営新宿線 / 大島駅 徒歩25分
築5年 / 14階建
東京都江東区東砂3丁目
9.5万円 / 管理費9,000円
敷
9.5万円礼
19万円2K / 25.51㎡ / 8階
賃貸マンション
FLAT SUNAMACHI ーフラット 砂町ー
)
東京メトロ東西線 / 南砂町駅 徒歩14分
築13年 / 9階建
東京都江東区北砂7丁目
)
8.2万円 / 管理費8,000円
敷
8.2万円礼
無料1K / 25.64㎡ / 2階
賃貸マンション
GLANZ COURT ーグランツコートー
)
東京メトロ東西線 / 南砂町駅 徒歩15分
築8年 / 4階建
東京都江東区東砂7丁目
)
9.2万円 / 管理費5,000円
敷
9.2万円礼
9.2万円1K / 26.45㎡ / 4階
賃貸マンション
江東区北砂 9階建 2022年築
)
東京メトロ東西線 / 南砂町駅 徒歩14分
築4年 / 9階建
東京都江東区北砂7丁目1-21
)
9.4万円 / 管理費10,000円
敷
9.4万円礼
9.4万円1K / 26.97㎡ / 7階
賃貸マンション
メインステージ南砂町

東京メトロ東西線 / 南砂町駅 徒歩19分
築2年 / 10階建
東京都江東区南砂1丁目

9.45万円 / 管理費10,000円
敷
9.45万円礼
9.45万円2K / 25.41㎡ / 3階
賃貸マンション
ライジングプレイス亀戸

都営新宿線 / 大島駅 徒歩10分
築11年 / 18階建
東京都江東区亀戸7丁目10-18

8.25万円 / 管理費15,000円
敷
無料礼
8.25万円1K / 26.1㎡ / 5階
賃貸マンション
アルマドーラ亀戸
都営新宿線 / 大島駅 徒歩9分
築12年 / 10階建
東京都江東区亀戸7丁目4-12
8.9万円 / 管理費15,000円
敷
8.9万円礼
8.9万円1K / 25.7㎡ / 4階
賃貸マンション
東武鉄道亀戸線 亀戸水神駅徒歩9分 11階建て 築5年
都営新宿線 / 大島駅 徒歩20分
築5年 / 11階建
東京都江東区亀戸7丁目37-1
8.8万円 / 管理費10,000円
敷
無料礼
8.8万円1K / 25.71㎡ / 2階
賃貸マンション
サンイースト

東京メトロ東西線 / 南砂町駅 徒歩21分
築23年 / 6階建
東京都江東区東陽4丁目7-14

9.5万円 / 管理費なし
敷
9.5万円礼
9.5万円1K / 25.53㎡ / 3階
賃貸マンション
ヴィータローザ南砂町

東京メトロ東西線 / 南砂町駅 徒歩11分
築20年 / 9階建
東京都江東区北砂4丁目33-16

8.8万円 / 管理費10,000円
敷
8.8万円礼
8.8万円1K / 25.08㎡ / 8階
賃貸マンション
スプレスター東陽町アリビエ

東京メトロ東西線 / 南砂町駅 徒歩17分
築12年 / 8階建
東京都江東区南砂2丁目28-22

9万円 / 管理費15,000円
敷
無料礼
18万円ワンルーム / 25.48㎡ / 2階
賃貸マンション
江東区北砂 4階建 2013年築
)
都営新宿線 / 大島駅 徒歩10分
築13年 / 4階建
東京都江東区北砂5丁目18-10
)
9万円 / 管理費4,000円
敷
9万円礼
9万円1K / 26.96㎡ / 2階
賃貸マンション
グランヴァン亀戸Re
都営新宿線 / 大島駅 徒歩11分
築19年 / 8階建
東京都江東区亀戸6丁目39-7
8.5万円 / 管理費15,000円
敷
無料礼
8.5万円ワンルーム / 26.02㎡ / 3階
賃貸マンション
グランド・ガーラ東大島
都営新宿線 / 大島駅 徒歩25分
築5年 / 14階建
東京都江東区東砂3丁目
9.5万円 / 管理費9,000円
敷
9.5万円礼
19万円2K / 25.51㎡ / 8階
賃貸マンション
FLAT SUNAMACHI ーフラット 砂町ー
)
東京メトロ東西線 / 南砂町駅 徒歩14分
築13年 / 9階建
東京都江東区北砂7丁目
)
8.2万円 / 管理費8,000円
敷
8.2万円礼
無料1K / 25.64㎡ / 2階
賃貸マンション
GLANZ COURT ーグランツコートー
)
東京メトロ東西線 / 南砂町駅 徒歩15分
築8年 / 4階建
東京都江東区東砂7丁目
)
9.2万円 / 管理費5,000円
敷
9.2万円礼
9.2万円1K / 26.45㎡ / 4階
賃貸マンション
江東区北砂 9階建 2022年築
)
東京メトロ東西線 / 南砂町駅 徒歩14分
築4年 / 9階建
東京都江東区北砂7丁目1-21
)
9.4万円 / 管理費10,000円
敷
9.4万円礼
9.4万円1K / 26.97㎡ / 7階
)
)
)
)
)
)
)
)
)
)
)
)
)
)
)
)
)
)
)
)
)
)
)







)
)
)
)
)
)