maison chrolo2LDK/5階(東京都板橋区 / ときわ台駅)の賃貸
1/10
1/10
23.4万円
初期費用を知りたい管理費15,000円
- 敷金
- 23.4万円
- 保証金
- なし
- 礼金
- 23.4万円
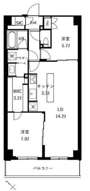
- 広さ
- 61.21㎡
- 階数
- 5階 / 10階建
- 間取り
- 2LDK
- 建物
- マンション (鉄筋コンクリート)
- 築年数
- 新築
- 向き
- 南東
- 交通
- 東武東上線 / ときわ台駅徒歩8分
- 東武東上線 / 中板橋駅徒歩11分
- 住所
- 東京都板橋区南常盤台1丁目13-2
コンビニエンスストア 552m
スーパーマーケット 876m
無料で10秒! カンタンお問い合わせ

maison chrolo
敷
23.4万円礼
23.4万円特徴
バス・トイレ別
2階以上
エアコン付き
ペット相談可
駐車場あり
室内洗濯機置場
オートロック
洗面所独立
- 入居条件
- 二人入居可、保証人不要最新の空室状況が知りたい
- バス・トイレ
- 専用バス、専用トイレ、バストイレ別、シャワー、給湯、追焚機能浴室、シャワー付洗面化粧台、温水洗浄便座、浴室乾燥機、洗面所独立
- キッチン
- ガスコンロ対応、3口以上コンロ、システムキッチン、カウンターキッチン
- セキュリティ
- オートロック、防犯カメラ
- 室内設備
- エアコン、室内洗濯置、CS、BS、フローリング、インターネット対応、ネット使用料不要、全居室収納、クロゼット、シューズボックス、シューズインクロゼットお部屋の詳しい情報を知りたい
- 部屋の特徴
- バルコニー、角住戸、二階以上写真を送ってほしい
- 共用部
- エレベーター、宅配ボックス、駐輪場、バイク置場
- その他の特徴
- 公営水道、都市ガス、下水
無料で10秒! カンタンお問い合わせ

maison chrolo
敷
23.4万円礼
23.4万円不動産会社からのコメント
収納はクロゼット・シューズボックスなどが備え付けられているので、衣類や日用品の収納に重宝します。
退去時ハウスクリーニング:86100円 引越業者指定あり バイク置き場:有料
その他
- 駐車/駐輪
- 要確認 / あり駐車可能な車種や台数を知りたい
- 入居時期
- 2026年4月上旬最新の空室状況が知りたい
- 損保
- 住宅保険: 要
- 保証人代行
- 加入要 費用: 初回保証料:月額支払額の40% 月額保証料:月額支払額の1%
- その他費用
- 情報
情報登録日:2026/2/5
情報更新日:2026/2/13
次回更新予定日:2026/2/28
- 備考
- 現況: 未完成 状態: 未入居 更新料: 新賃料の1.0ヶ月分 契約期間: 2年 総戸数: 30戸 自社管理番号: HC2-5368554-501-0135
取扱い会社
- 取扱い会社
- ハウスコム東東京株式会社 練馬店条件が近い物件も紹介してほしい
- 免許番号
- 東京都知事(1)第108283号
- 取引態様
- 仲介
- 所在地
- 東京都練馬区 練馬1丁目2−9 K&Iビル 1階
- 電話番号
- 03-3991-8456
- 定休日
- フルオープン
- 所属団体名
- 公益社団法人首都圏不動産公正取引協議会、公益財団法人日本賃貸住宅管理協会
おすすめ物件 (7件)
賃貸マンション
メゾン クロロ

東武東上線 / ときわ台駅 徒歩8分
新築 / 10階建
東京都板橋区南常盤台1丁目

24.5万円 / 管理費15,000円
敷
24.5万円礼
24.5万円2LDK / 63.01㎡ / 8階
賃貸マンション
プライマル板橋本町

東武東上線 / 中板橋駅 徒歩15分
築8年 / 5階建
東京都板橋区大和町

23.3万円 / 管理費12,000円
敷
23.3万円礼
23.3万円2LDK / 58.29㎡ / 3階
賃貸マンション
ザ・ケンジントン・レジデンスときわ台

東武東上線 / ときわ台駅 徒歩10分
新築 / 5階建
東京都板橋区前野町2丁目35-4

21.9万円 / 管理費15,000円
敷
無料礼
無料2LDK / 69㎡ / 2階
賃貸マンション
プライムガーデン若木

東武東上線 / ときわ台駅 徒歩31分
築2年 / 5階建
東京都板橋区若木1丁目27-38

21.5万円 / 管理費20,000円
敷
無料礼
無料2LDK / 70.5㎡ / 2階
賃貸マンション
パークアクシス板橋本町ステーションゲート

東武東上線 / 中板橋駅 徒歩19分
築2年 / 地上12階地下1階建
東京都板橋区清水町

22.8万円 / 管理費20,000円
敷
22.8万円礼
無料2LDK / 55.9㎡ / 6階
賃貸マンション
クラリティア板橋本町

東武東上線 / 中板橋駅 徒歩21分
築1年 / 7階建
東京都板橋区清水町

22.9万円 / 管理費20,000円
敷
22.9万円礼
無料2LDK / 51.78㎡ / 5階
賃貸マンション
maison chrolo

東武東上線 / ときわ台駅 徒歩8分
新築 / 10階建
東京都板橋区南常盤台1丁目13-2

23万円 / 管理費15,000円
敷
23万円礼
23万円2LDK / 58.93㎡ / 8階
賃貸マンション
メゾン クロロ

東武東上線 / ときわ台駅 徒歩8分
新築 / 10階建
東京都板橋区南常盤台1丁目

24.5万円 / 管理費15,000円
敷
24.5万円礼
24.5万円2LDK / 63.01㎡ / 8階
賃貸マンション
プライマル板橋本町

東武東上線 / 中板橋駅 徒歩15分
築8年 / 5階建
東京都板橋区大和町

23.3万円 / 管理費12,000円
敷
23.3万円礼
23.3万円2LDK / 58.29㎡ / 3階
賃貸マンション
ザ・ケンジントン・レジデンスときわ台

東武東上線 / ときわ台駅 徒歩10分
新築 / 5階建
東京都板橋区前野町2丁目35-4

21.9万円 / 管理費15,000円
敷
無料礼
無料2LDK / 69㎡ / 2階
賃貸マンション
プライムガーデン若木

東武東上線 / ときわ台駅 徒歩31分
築2年 / 5階建
東京都板橋区若木1丁目27-38

21.5万円 / 管理費20,000円
敷
無料礼
無料2LDK / 70.5㎡ / 2階
賃貸マンション
パークアクシス板橋本町ステーションゲート

東武東上線 / 中板橋駅 徒歩19分
築2年 / 地上12階地下1階建
東京都板橋区清水町

22.8万円 / 管理費20,000円
敷
22.8万円礼
無料2LDK / 55.9㎡ / 6階
賃貸マンション
クラリティア板橋本町

東武東上線 / 中板橋駅 徒歩21分
築1年 / 7階建
東京都板橋区清水町

22.9万円 / 管理費20,000円
敷
22.9万円礼
無料2LDK / 51.78㎡ / 5階
賃貸マンション
maison chrolo

東武東上線 / ときわ台駅 徒歩8分
新築 / 10階建
東京都板橋区南常盤台1丁目13-2

23万円 / 管理費15,000円
敷
23万円礼
23万円2LDK / 58.93㎡ / 8階












