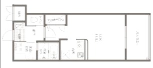
東福荘2DK/2階/202(福岡県福岡市博多区 / 東比恵駅)の賃貸
1/10
1/10
4.5万円
初期費用を知りたい管理費なし
- 敷金
- 無料
- 保証金
- なし
- 礼金
- 9万円
- 広さ
- 40㎡
- 階数
- 2階 / 2階建
- 間取り
- 2DK
- 建物
- アパート (木造)
- 築年数
- 築49年
- 向き
- 交通
- 地下鉄空港線 / 東比恵駅徒歩13分
- 山陽新幹線 / 博多駅徒歩14分
- 鹿児島本線 / 吉塚駅徒歩16分
- 住所
- 福岡県福岡市博多区吉塚3丁目22-7
ファミリーマート博多堅粕3丁目店 817m
サニー東比恵店 1166m
東比恵駅 1221m
博多駅筑紫口 1175m
中比恵公園 1357m
博多駅博多口 1312m
(株)JR博多シティ/アミュプラザ博多インフォメーション 1312m
JR吉塚駅 1363m
吉塚小学校 527m
東光中学校 442m
コンビニ 68m
スーパー 196m
無料で10秒! カンタンお問い合わせ
)
東福荘
敷
無料礼
9万円特徴
バス・トイレ別
2階以上
エアコン付き
ペット相談可
駐車場あり
室内洗濯機置場
オートロック
洗面所独立
- 入居条件
- 二人入居可最新の空室状況が知りたい
- バス・トイレ
- 給湯、シャワー、バストイレ別、温水洗浄便座
- キッチン
- ガスキッチン、コンロ2口以上
- 室内設備
- エアコン、冷房、CATV、インターホン、インターネット対応、ネット使用料不要、フローリング、室内洗濯置、クロゼット、押入、シューズボックスお部屋の詳しい情報を知りたい
- 部屋の特徴
- 二階以上、最上階写真を送ってほしい
- 共用部
- 敷地内ごみ置き場
- その他の特徴
- プロパンガス
無料で10秒! カンタンお問い合わせ
)
東福荘
敷
無料礼
9万円同じ建物で掲載中の物件 (1件)
その他
- 駐車/駐輪
- 無し / なし駐車可能な車種や台数を知りたい
- 入居時期
- 損保
- -
- 保証人代行
- 保証人: 要
- その他費用
- 情報
情報登録日:2026/3/16
情報更新日:2026/4/14
次回更新予定日:2026/5/1
- 備考
- 退去時費用備考: 退去費用実費精算 その他: 更新事務手数料 11000円(更新時)、[あんしんサービス会費] 火災保険・24時間365日駆け付け・生活サポートのサービスです。、[初回保証委託料]全保連 選択式(50% or 100%) 保証会社利用必須 【初回のみプラン】初回:月額合計賃料の80%(※学生の場合、月額合計賃料の30%または1万円)【毎年プラン】初回:月額合計賃料の30%、更新料:1万円/年 その他初期費用 22000円 その他月額費用 1980円 業者管理CD: 1003285303
取扱い会社
- 取扱い会社
- アパマンショップ吉塚店 Apaman Leasing 株式会社条件が近い物件も紹介してほしい
- 免許番号
- 国土交通大臣(1)10927
- 取引態様
- 一般媒介
- 所在地
- 福岡県福岡市東区馬出1丁目
- 電話番号
- 092-645-2200
- 所属団体名
- (公社)福岡県宅地建物取引業協会,(一社) 九州不動産公正取引協議会加盟
おすすめ物件 (9件)
賃貸マンション
ウィステアリア博多東
鹿児島本線 / 吉塚駅 徒歩12分
築21年 / 8階建
福岡県福岡市博多区吉塚4
6.2万円 / 管理費3,000円
敷
6.2万円礼
6.2万円1LDK / 32.4㎡ / 4階
賃貸マンション
福岡市博多区山王1丁目 13階建 2016年築

地下鉄空港線 / 東比恵駅 徒歩16分
築10年 / 13階建
福岡県福岡市博多区山王1丁目

6.4万円 / 管理費5,000円
敷
無料礼
無料ワンルーム / 30.01㎡ / 2階
賃貸マンション
第5よしみビル
)
地下鉄空港線 / 東比恵駅 徒歩23分
築45年 / 6階建
福岡県福岡市博多区博多駅南6丁目15-21
)
6.3万円 / 管理費4,000円
敷
無料礼
無料1K / 36.86㎡ / 4階
賃貸アパート
AMBIENTE アンビエンテ
)
鹿児島本線 / 吉塚駅 徒歩11分
築13年 / 2階建
福岡県福岡市博多区吉塚1丁目45-23
)
6.4万円 / 管理費3,000円
敷
無料礼
4万円1LDK / 30.51㎡ / 2階
賃貸マンション
JR鹿児島本線 博多駅 7階建 築38年
地下鉄七隈線 / 博多駅 徒歩15分
築37年 / 7階建
福岡県福岡市博多区博多駅南2
6.4万円 / 管理費5,000円
敷
無料礼
6.4万円ワンルーム / 31㎡ / 5階
賃貸マンション
ジェンティーレ美野島2

鹿児島本線 / 博多駅 徒歩20分
築11年 / 4階建
福岡県福岡市博多区美野島1丁目10番2号

6.5万円 / 管理費5,000円
敷
無料礼
無料1LDK / 34.61㎡ / 2階
賃貸アパート
JR鹿児島本線 吉塚駅 2階建 築14年
鹿児島本線 / 吉塚駅 徒歩10分
築13年 / 2階建
福岡県福岡市博多区吉塚1
6.4万円 / 管理費3,000円
敷
無料礼
4万円1LDK / 30.51㎡ / 2階
賃貸物件
Casa JR箱崎2

鹿児島本線 / 吉塚駅 徒歩8分
築20年 / 2階建
福岡県福岡市東区馬出6丁目19番23号

6.5万円 / 管理費2,500円
敷
無料礼
13万円1DK / 42.65㎡ / 2階
賃貸マンション
ウィステアリア博多東
鹿児島本線 / 吉塚駅 徒歩12分
築21年 / 8階建
福岡県福岡市博多区吉塚4
6.2万円 / 管理費3,000円
敷
6.2万円礼
6.2万円1LDK / 32.4㎡ / 4階
賃貸マンション
福岡市博多区山王1丁目 13階建 2016年築

地下鉄空港線 / 東比恵駅 徒歩16分
築10年 / 13階建
福岡県福岡市博多区山王1丁目

6.4万円 / 管理費5,000円
敷
無料礼
無料ワンルーム / 30.01㎡ / 2階
賃貸マンション
第5よしみビル
)
地下鉄空港線 / 東比恵駅 徒歩23分
築45年 / 6階建
福岡県福岡市博多区博多駅南6丁目15-21
)
6.3万円 / 管理費4,000円
敷
無料礼
無料1K / 36.86㎡ / 4階
賃貸アパート
AMBIENTE アンビエンテ
)
鹿児島本線 / 吉塚駅 徒歩11分
築13年 / 2階建
福岡県福岡市博多区吉塚1丁目45-23
)
6.4万円 / 管理費3,000円
敷
無料礼
4万円1LDK / 30.51㎡ / 2階
賃貸マンション
JR鹿児島本線 博多駅 7階建 築38年
地下鉄七隈線 / 博多駅 徒歩15分
築37年 / 7階建
福岡県福岡市博多区博多駅南2
6.4万円 / 管理費5,000円
敷
無料礼
6.4万円ワンルーム / 31㎡ / 5階
賃貸マンション
ジェンティーレ美野島2

鹿児島本線 / 博多駅 徒歩20分
築11年 / 4階建
福岡県福岡市博多区美野島1丁目10番2号

6.5万円 / 管理費5,000円
敷
無料礼
無料1LDK / 34.61㎡ / 2階
賃貸アパート
JR鹿児島本線 吉塚駅 2階建 築14年
鹿児島本線 / 吉塚駅 徒歩10分
築13年 / 2階建
福岡県福岡市博多区吉塚1
6.4万円 / 管理費3,000円
敷
無料礼
4万円1LDK / 30.51㎡ / 2階
賃貸物件
Casa JR箱崎2

鹿児島本線 / 吉塚駅 徒歩8分
築20年 / 2階建
福岡県福岡市東区馬出6丁目19番23号

6.5万円 / 管理費2,500円
敷
無料礼
13万円1DK / 42.65㎡ / 2階
)
)
)
)
)
)
)
)
)
)

)