メインステージ神田須田町1K/8階(東京都千代田区 / 神田駅)の賃貸
1/23
1/23
14.7万円
初期費用を知りたい管理費20,000円
- 敷金
- 無料
- 保証金
- なし
- 礼金
- 無料
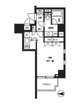
- 広さ
- 25.61㎡
- 階数
- 8階 / 14階建
- 間取り
- 1K
- 建物
- マンション (鉄筋コンクリート)
- 築年数
- 築9年
- 向き
- 南東
- 交通
- 山手線 / 神田駅徒歩1分
- 総武線 / 秋葉原駅徒歩7分
- 住所
- 東京都千代田区神田須田町1丁目
コンビニエンスストア 221m
スーパーマーケット 338m
総合病院 450m
銀行 179m
神田駅前郵便局 319m
無料で10秒! カンタンお問い合わせ
メインステージ神田須田町
敷
無料礼
無料特徴
バス・トイレ別
2階以上
エアコン付き
ペット相談可
駐車場あり
室内洗濯機置場
オートロック
洗面所独立
- 入居条件
- 保証人不要、ペット相談、家賃・初期費用カード決済可、即入居可最新の空室状況が知りたい
- バス・トイレ
- 給湯、専用バス、浴室乾燥機、シャワー、専用トイレ、温水洗浄便座、バストイレ別、洗面所独立
- キッチン
- ガスコンロ対応、2口コンロ、システムキッチン
- セキュリティ
- オートロック、防犯カメラ、24時間セキュリティ
- 室内設備
- BS、CS、インターネット対応、光ファイバー、エアコン、クロゼット、全居室収納、シューズボックス、室内洗濯置、フローリング、ネット使用料不要お部屋の詳しい情報を知りたい
- 部屋の特徴
- バルコニー、二階以上写真を送ってほしい
- 共用部
- エレベーター、宅配ボックス、駐輪場
- その他の特徴
- 都市ガス、外壁タイル張り、デザイナーズ、分譲賃貸
無料で10秒! カンタンお問い合わせ
メインステージ神田須田町
敷
無料礼
無料その他
- 駐車/駐輪
- 無 / あり駐車可能な車種や台数を知りたい
- 入居時期
- 損保
- 住宅保険: 要
- 保証人代行
- 加入要 会社名: その他 費用: 詳細はお問い合わせください。
- その他費用
初期費用を知りたい鍵交換費用:29,700円
- 情報
情報登録日:2025/12/3
情報更新日:2025/12/2
次回更新予定日:2025/12/12
- 備考
- 現況: 空家 更新料: 新賃料の1.5ヶ月分 契約期間: 2年 管理人: 巡回
取扱い会社
- 取扱い会社
- スーペリアス株式会社 スーペリアホーム条件が近い物件も紹介してほしい
- 免許番号
- 東京都知事(2)第99564号
- 取引態様
- 一般媒介
- 所在地
- 東京都文京区本郷3丁目2-2リベール御茶ノ水ビル1階
- 電話番号
- 03-6801-5861
- 営業時間
- 10:00~19:00(年末年始)
- 定休日
- 水曜日
- 所属団体名
- 全国宅地建物取引業協会
おすすめ物件 (20件)
賃貸マンション
EAST AKIHABARA

東京メトロ日比谷線 / 秋葉原駅 徒歩7分
築17年 / 13階建
東京都台東区浅草橋4丁目14-9

12.9万円 / 管理費6,000円
敷
12.9万円礼
12.9万円ワンルーム / 27.75㎡ / 13階
賃貸マンション
千代田区 地上15階地下1階建 2005年築

東京メトロ銀座線 / 神田駅 徒歩4分
築20年 / 地上15階地下1階建
東京都千代田区神田須田町2丁目2-1

16.1万円 / 管理費10,000円
敷
16.1万円礼
16.1万円1K / 31.51㎡ / 13階
賃貸マンション
パークハビオ秋葉原エスト

山手線 / 秋葉原駅 徒歩11分
築10年 / 13階建
東京都台東区浅草橋5丁目9-1

13.3万円 / 管理費13,000円
敷
13.3万円礼
13.3万円1K / 25.15㎡ / 7階
賃貸マンション
パークアクシス小伝馬町

山手線 / 神田駅 徒歩10分
築9年 / 14階建
東京都千代田区岩本町1丁目7-8

16.5万円 / 管理費15,000円
敷
16.5万円礼
無料ワンルーム / 31.28㎡ / 13階
賃貸マンション
ルフォンプログレ神田プレミア

東京メトロ銀座線 / 神田駅 徒歩2分
築2年 / 12階建
東京都千代田区神田須田町1丁目20-1

15.4万円 / 管理費15,000円
敷
15.4万円礼
15.4万円1DK / 24.54㎡ / 3階
賃貸マンション
エスティメゾン神田

山手線 / 神田駅 徒歩4分
築21年 / 12階建
東京都千代田区神田多町2丁目3-4

16.5万円 / 管理費10,000円
敷
16.5万円礼
16.5万円1DK / 30.28㎡ / 4階
賃貸マンション
千代田区 地上14階地下1階建 2014年築

山手線 / 神田駅 徒歩6分
築11年 / 14階建
東京都千代田区岩本町2丁目1-7

12.7万円 / 管理費15,000円
敷
無料礼
無料1K / 25.07㎡ / 8階
賃貸マンション
パークアクシス御茶ノ水ステージ
つくばエクスプレス / 秋葉原駅 徒歩13分
築19年 / 地上13階地下2階建
東京都文京区湯島3丁目2-14
12.9万円 / 管理費8,000円
敷
12.9万円礼
12.9万円ワンルーム / 22.79㎡ / 5階
賃貸マンション
ズーム秋葉原(ZOOM秋葉原)
東京メトロ日比谷線 / 秋葉原駅 徒歩3分
築6年 / 12階建
東京都千代田区神田佐久間町3丁目33-2
15.1万円 / 管理費10,000円
敷
15.1万円礼
無料1K / 25.59㎡ / 11階
賃貸マンション
千代田区神田佐久間町4丁目 11階建 2015年築

山手線 / 秋葉原駅 徒歩8分
築10年 / 11階建
東京都千代田区神田佐久間町4丁目

13.5万円 / 管理費15,000円
敷
13.5万円礼
13.5万円1K / 25.99㎡ / 9階
賃貸マンション
千代田区神田西福田町 12階建 2018年築

山手線 / 神田駅 徒歩5分
築7年 / 12階建
東京都千代田区神田西福田町

14.2万円 / 管理費10,000円
敷
14.2万円礼
14.2万円ワンルーム / 28.69㎡ / 6階
賃貸マンション
La Douceur東神田
東京メトロ日比谷線 / 秋葉原駅 徒歩9分
築5年 / 12階建
東京都千代田区東神田2丁目
家賃カード決済可
15.8万円 / 管理費15,000円
敷
無料礼
15.8万円1DK / 31.03㎡ / 9階
賃貸マンション
千代田区神田佐久間町4丁目 16階建 2022年築

山手線 / 秋葉原駅 徒歩6分
築3年 / 16階建
東京都千代田区神田佐久間町4丁目

14万円 / 管理費15,000円
敷
無料礼
7万円1K / 30.25㎡ / 2階
賃貸マンション
台東区浅草橋4丁目 13階建 2020年築

東京メトロ日比谷線 / 秋葉原駅 徒歩7分
築5年 / 13階建
東京都台東区浅草橋4丁目16-7

12.8万円 / 管理費10,000円
敷
12.8万円礼
12.8万円1K / 26.02㎡ / 3階
賃貸マンション
メインステージ神田須田町
山手線 / 神田駅 徒歩1分
築9年 / 14階建
東京都千代田区神田須田町1丁目
家賃カード決済可
14.9万円 / 管理費20,000円
敷
無料礼
無料1K / 30.81㎡ / 5階
賃貸マンション
CREATIF秋葉原
東京メトロ日比谷線 / 秋葉原駅 徒歩10分
築2年 / 15階建
東京都台東区浅草橋5丁目
家賃カード決済可
15万円 / 管理費15,000円
敷
無料礼
無料1DK / 25.56㎡ / 2階
賃貸マンション
東神田テラスレジデンス
東京メトロ日比谷線 / 秋葉原駅 徒歩9分
築7年 / 13階建
東京都千代田区東神田1丁目
家賃カード決済可
15.3万円 / 管理費10,000円
敷
無料礼
無料1K / 27.42㎡ / 9階
賃貸マンション
パークアクシス秋葉原イースト
山手線 / 秋葉原駅 徒歩9分
築13年 / 14階建
東京都台東区浅草橋5
13.3万円 / 管理費8,000円
敷
13.3万円礼
13.3万円ワンルーム / 26.03㎡ / 14階
賃貸マンション
GENOVIA 東神田 green veil

山手線 / 秋葉原駅 徒歩10分
築5年 / 12階建
東京都千代田区東神田2丁目10-15

家賃カード決済可
13.6万円 / 管理費10,000円
敷
無料礼
無料1K / 25.83㎡ / 6階
賃貸マンション
EAST AKIHABARA

東京メトロ日比谷線 / 秋葉原駅 徒歩7分
築17年 / 13階建
東京都台東区浅草橋4丁目14-9

12.9万円 / 管理費6,000円
敷
12.9万円礼
12.9万円ワンルーム / 27.75㎡ / 13階
賃貸マンション
千代田区 地上15階地下1階建 2005年築

東京メトロ銀座線 / 神田駅 徒歩4分
築20年 / 地上15階地下1階建
東京都千代田区神田須田町2丁目2-1

16.1万円 / 管理費10,000円
敷
16.1万円礼
16.1万円1K / 31.51㎡ / 13階
賃貸マンション
パークハビオ秋葉原エスト

山手線 / 秋葉原駅 徒歩11分
築10年 / 13階建
東京都台東区浅草橋5丁目9-1

13.3万円 / 管理費13,000円
敷
13.3万円礼
13.3万円1K / 25.15㎡ / 7階
賃貸マンション
パークアクシス小伝馬町

山手線 / 神田駅 徒歩10分
築9年 / 14階建
東京都千代田区岩本町1丁目7-8

16.5万円 / 管理費15,000円
敷
16.5万円礼
無料ワンルーム / 31.28㎡ / 13階
賃貸マンション
ルフォンプログレ神田プレミア

東京メトロ銀座線 / 神田駅 徒歩2分
築2年 / 12階建
東京都千代田区神田須田町1丁目20-1

15.4万円 / 管理費15,000円
敷
15.4万円礼
15.4万円1DK / 24.54㎡ / 3階
賃貸マンション
エスティメゾン神田

山手線 / 神田駅 徒歩4分
築21年 / 12階建
東京都千代田区神田多町2丁目3-4

16.5万円 / 管理費10,000円
敷
16.5万円礼
16.5万円1DK / 30.28㎡ / 4階
賃貸マンション
千代田区 地上14階地下1階建 2014年築

山手線 / 神田駅 徒歩6分
築11年 / 14階建
東京都千代田区岩本町2丁目1-7

12.7万円 / 管理費15,000円
敷
無料礼
無料1K / 25.07㎡ / 8階
賃貸マンション
パークアクシス御茶ノ水ステージ
つくばエクスプレス / 秋葉原駅 徒歩13分
築19年 / 地上13階地下2階建
東京都文京区湯島3丁目2-14
12.9万円 / 管理費8,000円
敷
12.9万円礼
12.9万円ワンルーム / 22.79㎡ / 5階
賃貸マンション
ズーム秋葉原(ZOOM秋葉原)
東京メトロ日比谷線 / 秋葉原駅 徒歩3分
築6年 / 12階建
東京都千代田区神田佐久間町3丁目33-2
15.1万円 / 管理費10,000円
敷
15.1万円礼
無料1K / 25.59㎡ / 11階
賃貸マンション
千代田区神田佐久間町4丁目 11階建 2015年築

山手線 / 秋葉原駅 徒歩8分
築10年 / 11階建
東京都千代田区神田佐久間町4丁目

13.5万円 / 管理費15,000円
敷
13.5万円礼
13.5万円1K / 25.99㎡ / 9階
賃貸マンション
千代田区神田西福田町 12階建 2018年築

山手線 / 神田駅 徒歩5分
築7年 / 12階建
東京都千代田区神田西福田町

14.2万円 / 管理費10,000円
敷
14.2万円礼
14.2万円ワンルーム / 28.69㎡ / 6階
賃貸マンション
La Douceur東神田
東京メトロ日比谷線 / 秋葉原駅 徒歩9分
築5年 / 12階建
東京都千代田区東神田2丁目
家賃カード決済可
15.8万円 / 管理費15,000円
敷
無料礼
15.8万円1DK / 31.03㎡ / 9階
賃貸マンション
千代田区神田佐久間町4丁目 16階建 2022年築

山手線 / 秋葉原駅 徒歩6分
築3年 / 16階建
東京都千代田区神田佐久間町4丁目

14万円 / 管理費15,000円
敷
無料礼
7万円1K / 30.25㎡ / 2階
賃貸マンション
台東区浅草橋4丁目 13階建 2020年築

東京メトロ日比谷線 / 秋葉原駅 徒歩7分
築5年 / 13階建
東京都台東区浅草橋4丁目16-7

12.8万円 / 管理費10,000円
敷
12.8万円礼
12.8万円1K / 26.02㎡ / 3階
賃貸マンション
メインステージ神田須田町
山手線 / 神田駅 徒歩1分
築9年 / 14階建
東京都千代田区神田須田町1丁目
家賃カード決済可
14.9万円 / 管理費20,000円
敷
無料礼
無料1K / 30.81㎡ / 5階
賃貸マンション
CREATIF秋葉原
東京メトロ日比谷線 / 秋葉原駅 徒歩10分
築2年 / 15階建
東京都台東区浅草橋5丁目
家賃カード決済可
15万円 / 管理費15,000円
敷
無料礼
無料1DK / 25.56㎡ / 2階
賃貸マンション
東神田テラスレジデンス
東京メトロ日比谷線 / 秋葉原駅 徒歩9分
築7年 / 13階建
東京都千代田区東神田1丁目
家賃カード決済可
15.3万円 / 管理費10,000円
敷
無料礼
無料1K / 27.42㎡ / 9階
賃貸マンション
パークアクシス秋葉原イースト
山手線 / 秋葉原駅 徒歩9分
築13年 / 14階建
東京都台東区浅草橋5
13.3万円 / 管理費8,000円
敷
13.3万円礼
13.3万円ワンルーム / 26.03㎡ / 14階
賃貸マンション
GENOVIA 東神田 green veil

山手線 / 秋葉原駅 徒歩10分
築5年 / 12階建
東京都千代田区東神田2丁目10-15

家賃カード決済可
13.6万円 / 管理費10,000円
敷
無料礼
無料1K / 25.83㎡ / 6階
同じ最寄り駅 × 同じ特徴 で探す
同じ市区町村 × 同じ特徴 で探す
)
