グラシアプレイス大森町1K/4階/402(東京都大田区 / 大森町駅)の賃貸
1/29
1/29
10万円
初期費用を知りたい管理費15,000円
家賃割引サービス適用で最大2年間4.8万円割引
- 敷金
- 無料
- 保証金
- なし
- 礼金
- 無料
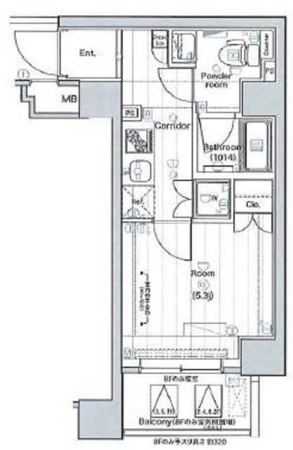
- 広さ
- 25.01㎡
- 階数
- 4階 / 11階建
- 間取り
- 1K
- 建物
- マンション (鉄筋コンクリート)
- 築年数
- 築5年
- 向き
- 北
- 交通
- 京急本線 / 大森町駅徒歩2分
- 京急本線 / 平和島駅徒歩9分
- 住所
- 東京都大田区大森西3丁目26-7
コンビニエンスストア 170m
スーパーマーケット 250m
ドラッグストア 310m
無料で10秒! カンタンお問い合わせ
グラシアプレイス大森町
敷
無料礼
無料特徴
バス・トイレ別
2階以上
エアコン付き
ペット相談可
駐車場あり
室内洗濯機置場
オートロック
洗面所独立
- 入居条件
- 楽器相談、ルームシェア不可、保証人不要、事務所(SOHO)不可、ペット相談、猫可、猫相談、二人入居可、初期費用カード決済可、即入居可最新の空室状況が知りたい
- バス・トイレ
- 給湯、専用バス、浴室乾燥機、シャワー、専用トイレ、温水洗浄便座、バストイレ別、シャワー付洗面化粧台、洗面所独立
- キッチン
- ガスコンロ対応、2口コンロ、システムキッチン
- セキュリティ
- オートロック、防犯カメラ
- 室内設備
- CATV、BS、CS、インターネット対応、光ファイバー、エアコン、冷房、照明付、クロゼット、全居室収納、シューズボックス、室内洗濯置、フローリング、ネット使用料不要お部屋の詳しい情報を知りたい
- 部屋の特徴
- バルコニー、二階以上写真を送ってほしい
- 共用部
- エレベーター、宅配ボックス
- その他の特徴
- 下水、公営水道、都市ガス、外壁タイル張り
無料で10秒! カンタンお問い合わせ
グラシアプレイス大森町
敷
無料礼
無料不動産会社からのコメント
★クレジット/分割決済可能★オンライン見学受付中★その他専任物件多数ございます★
東京を中心に人気エリアの賃貸マンション・アパート情報が豊富!創業45年 直営140店舗以上の独自のネットワークで最適なマンション・アパートをお探し!お部屋探しからご契約までオンラインでご対応できます!
その他
- 駐車/駐輪
- 要確認 / なし駐車可能な車種や台数を知りたい
- 入居時期
- 損保
- 住宅保険: 要
- 保証人代行
- -
- その他費用
初期費用を知りたい鍵交換費用:24,200円
Goodプレミアムα登録料:2,200円
Goodプレミアムα(24Hサポートのみ):12,100円
- 情報
情報登録日:2026/1/5
情報更新日:2026/1/4
次回更新予定日:2026/1/13
- 備考
- 現況: 空家 更新料: 100,000円 契約期間: 2年
取扱い会社
- 取扱い会社
- 株式会社タウンハウジング 目黒店条件が近い物件も紹介してほしい
- 免許番号
- 国土交通大臣(1)9926号
- 取引態様
- 仲介
- 所在地
- 東京都品川区上大崎2-15-18 目黒東豊ビル2F
- 電話番号
- 03-5791-0061
- 所属団体名
- 東京都宅地建物取引業協会
おすすめ物件 (15件)
賃貸マンション
コンフォリア大森トロワ
京急本線 / 平和島駅 徒歩7分
築14年 / 6階建
東京都大田区大森北3丁目36-7
10.2万円 / 管理費8,000円
敷
10.2万円礼
無料ワンルーム / 22.5㎡ / 2階
賃貸マンション
AXAS大森西アジールコート

京急本線 / 大森町駅 徒歩10分
築11年 / 6階建
東京都大田区大森西4丁目

9.7万円 / 管理費8,000円
敷
9.7万円礼
9.7万円1K / 25.52㎡ / 5階
賃貸マンション
ハーモニーレジデンス大森WEST

京急本線 / 大森町駅 徒歩5分
築13年 / 11階建
東京都大田区大森西5丁目

8.45万円 / 管理費15,000円
敷
無料礼
4.22万円1K / 21.56㎡ / 2階
賃貸マンション
ハーモニーレジデンス大森ウエスト

京急本線 / 大森町駅 徒歩6分
築13年 / 8階建
東京都大田区大森西5丁目27-9

11.7万円 / 管理費11,000円
敷
無料礼
11.7万円1K / 21.12㎡ / 5階
賃貸マンション
PREMIUM CUBE 大森DEUX

京急本線 / 平和島駅 徒歩19分
築15年 / 8階建
東京都品川区南大井3丁目27-12

8.7万円 / 管理費15,000円
敷
8.7万円礼
8.7万円1K / 21.26㎡ / 5階
賃貸マンション
クレヴィスタ大森西

京急本線 / 大森町駅 徒歩8分
築11年 / 7階建
東京都大田区大森西4丁目12-7

8.9万円 / 管理費15,000円
敷
無料礼
4.45万円1K / 25.62㎡ / 2階
賃貸マンション
プラウドフラット大森Ⅲ

京急本線 / 平和島駅 徒歩23分
築12年 / 8階建
東京都品川区南大井6丁目5-14

11.3万円 / 管理費8,000円
敷
11.3万円礼
11.3万円1K / 22.69㎡ / 2階
賃貸マンション
ラグゼナ平和島
京急本線 / 平和島駅 徒歩4分
築4年 / 12階建
東京都大田区大森東1丁目1-18
11.4万円 / 管理費10,000円
敷
無料礼
11.4万円1K / 25.19㎡ / 10階
賃貸マンション
大田区 4階建 2025年築
京急本線 / 大森町駅 徒歩6分
新築 / 4階建
東京都大田区大森西5丁目17-7
11.5万円 / 管理費15,000円
敷
無料礼
無料1DK / 25㎡ / 3階
賃貸マンション
メイクスデザイン大森II
京急本線 / 平和島駅 徒歩14分
築7年 / 8階建
東京都大田区大森北5丁目15-23
10.5万円 / 管理費15,000円
敷
無料礼
無料1K / 29.2㎡ / 2階
賃貸マンション
メインステージ平和島II
京急本線 / 平和島駅 徒歩4分
築13年 / 13階建
東京都大田区大森北6丁目32-5
9.9万円 / 管理費15,000円
敷
無料礼
9.9万円1K / 21.2㎡ / 5階
賃貸マンション
ブライズ大森東DUE
京急本線 / 大森町駅 徒歩9分
築17年 / 11階建
東京都大田区大森東4丁目19-29
8.1万円 / 管理費5,000円
敷
無料礼
8.1万円1K / 20.9㎡ / 8階
賃貸マンション
コンフォリア大森トロワ
京急本線 / 平和島駅 徒歩7分
築14年 / 6階建
東京都大田区大森北3丁目36-7
10.2万円 / 管理費8,000円
敷
10.2万円礼
無料ワンルーム / 22.5㎡ / 2階
賃貸マンション
AXAS大森西アジールコート

京急本線 / 大森町駅 徒歩10分
築11年 / 6階建
東京都大田区大森西4丁目

9.7万円 / 管理費8,000円
敷
9.7万円礼
9.7万円1K / 25.52㎡ / 5階
賃貸マンション
ハーモニーレジデンス大森WEST

京急本線 / 大森町駅 徒歩5分
築13年 / 11階建
東京都大田区大森西5丁目

8.45万円 / 管理費15,000円
敷
無料礼
4.22万円1K / 21.56㎡ / 2階
賃貸マンション
ハーモニーレジデンス大森ウエスト

京急本線 / 大森町駅 徒歩6分
築13年 / 8階建
東京都大田区大森西5丁目27-9

11.7万円 / 管理費11,000円
敷
無料礼
11.7万円1K / 21.12㎡ / 5階
賃貸マンション
PREMIUM CUBE 大森DEUX

京急本線 / 平和島駅 徒歩19分
築15年 / 8階建
東京都品川区南大井3丁目27-12

8.7万円 / 管理費15,000円
敷
8.7万円礼
8.7万円1K / 21.26㎡ / 5階
賃貸マンション
クレヴィスタ大森西

京急本線 / 大森町駅 徒歩8分
築11年 / 7階建
東京都大田区大森西4丁目12-7

8.9万円 / 管理費15,000円
敷
無料礼
4.45万円1K / 25.62㎡ / 2階
賃貸マンション
プラウドフラット大森Ⅲ

京急本線 / 平和島駅 徒歩23分
築12年 / 8階建
東京都品川区南大井6丁目5-14

11.3万円 / 管理費8,000円
敷
11.3万円礼
11.3万円1K / 22.69㎡ / 2階
賃貸マンション
ラグゼナ平和島
京急本線 / 平和島駅 徒歩4分
築4年 / 12階建
東京都大田区大森東1丁目1-18
11.4万円 / 管理費10,000円
敷
無料礼
11.4万円1K / 25.19㎡ / 10階
賃貸マンション
大田区 4階建 2025年築
京急本線 / 大森町駅 徒歩6分
新築 / 4階建
東京都大田区大森西5丁目17-7
11.5万円 / 管理費15,000円
敷
無料礼
無料1DK / 25㎡ / 3階
賃貸マンション
メイクスデザイン大森II
京急本線 / 平和島駅 徒歩14分
築7年 / 8階建
東京都大田区大森北5丁目15-23
10.5万円 / 管理費15,000円
敷
無料礼
無料1K / 29.2㎡ / 2階
賃貸マンション
メインステージ平和島II
京急本線 / 平和島駅 徒歩4分
築13年 / 13階建
東京都大田区大森北6丁目32-5
9.9万円 / 管理費15,000円
敷
無料礼
9.9万円1K / 21.2㎡ / 5階
賃貸マンション
ブライズ大森東DUE
京急本線 / 大森町駅 徒歩9分
築17年 / 11階建
東京都大田区大森東4丁目19-29
8.1万円 / 管理費5,000円
敷
無料礼
8.1万円1K / 20.9㎡ / 8階
同じ最寄り駅 × 同じ特徴 で探す
同じ市区町村 × 同じ特徴 で探す







