都営三田線 水道橋駅 9階建 築28年2LDK/6階(東京都文京区 / 水道橋駅)の賃貸
1/13
1/13
33.9万円
初期費用を知りたい管理費20,000円
適用で最大2年間4.8万円割引
本物件のヘヤワリ適用可否については、不動産会社へご確認ください。
- 敷金
- 33.9万円
- 保証金
- なし
- 礼金
- 無料
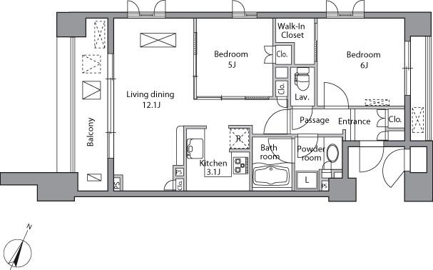
- 広さ
- 60㎡
- 階数
- 6階 / 9階建
- 間取り
- 2LDK
- 建物
- マンション (鉄骨鉄筋)
- 築年数
- 築28年
- 向き
- 南
- 交通
- 都営三田線 / 水道橋駅徒歩4分
- 東京メトロ丸ノ内線 / 本郷三丁目駅徒歩6分
- 東京メトロ丸ノ内線 / 御茶ノ水駅徒歩12分
- 住所
- 東京都文京区本郷1
マルエツプチ本郷二丁目店(スーパー)まで588m
ローソン本郷一丁目店(コンビニ)まで296m
セブンイレブン文京本郷1丁目店(コンビニ)まで341m
スギ薬局水道橋東口店(ドラッグストア)まで670m
NEW YORKER’S Cafe水道橋東口店(飲食店)まで337m
ミーツポート(ショッピングセンター)まで575m
無料で10秒! カンタンお問い合わせ
都営三田線 水道橋駅 9階建 築28年
敷
33.9万円礼
無料特徴
バス・トイレ別
2階以上
エアコン付き
ペット相談可
駐車場あり
室内洗濯機置場
オートロック
洗面所独立
- 入居条件
- 即入居可、ペット相談、保証人不要、敷金1ヶ月、二人入居相談最新の空室状況が知りたい
- バス・トイレ
- バストイレ別、シャワー付洗面台、浴室乾燥機、追焚機能浴室、温水洗浄便座、脱衣所、洗面所独立、洗面化粧台、オートバス、洗面所にドア
- キッチン
- システムキッチン、3口以上コンロ、食器洗乾燥機
- セキュリティ
- オートロック、防犯カメラ、ディンプルキー
- 室内設備
- エアコン、クロゼット、フローリング、室内洗濯置、シューズボックス、光ファイバー、全居室フローリング、24時間換気システム、玄関収納、リノベーションお部屋の詳しい情報を知りたい
- 部屋の特徴
- バルコニー、陽当り良好、クロゼット2ヶ所、通風良好、二階以上写真を送ってほしい
- 共用部
- エレベーター、駐輪場、宅配ボックス、敷地内ごみ置き場、日勤管理
- その他の特徴
- デザイナーズ、眺望良好、都市ガス、保証会社利用可
無料で10秒! カンタンお問い合わせ
都営三田線 水道橋駅 9階建 築28年
敷
33.9万円礼
無料不動産会社からのコメント
★★オンライン対応可能★★TEL03-6811-7005★
★★★★★★★★この物件のご案内はルームまで★★★★★★★★当社であればネットで気になる物件すべてまとめてご紹介可能です!
その他
- 駐車/駐輪
- 要確認 / あり駐車可能な車種や台数を知りたい
- 入居時期
- 損保
- -
- 保証人代行
- -
- その他費用
合計4.4万円(内訳:鍵交換費/クラシード) 初期費用を知りたい- 情報
情報登録日:2026/4/17
情報更新日:2026/4/15
次回更新予定日:2026/5/1
- 備考
- 契約期間: 普通借家 2年 保証会社: 保証会社利用必 総賃料の40%~ 更新料 1.4万円/年 その他:ミーツポートまで575m/ローソン本郷一丁目店まで296m/更新料 新賃料 1ヶ月 / 条件: 二人入居可/ペット相談 / ほか初期費用: 合計4.4万円(内訳:鍵交換費/クラシード) / ほか諸費用: 自転車駐輪場 月額550円
取扱い会社
- 取扱い会社
- 株式会社ルーム条件が近い物件も紹介してほしい
- 免許番号
- 東京都知事免許(1)第105336号
- 取引態様
- 一般媒介
- 所在地
- 東京都千代田区神田駿河台2丁目4-2 叶ビル2階
- 電話番号
- 03-6811-7005
- 営業時間
- 10:00~18:00
- 定休日
- 無し(冬季休業あり)
おすすめ物件 (5件)
賃貸マンション
パークアクシス文京本郷

東京メトロ丸ノ内線 / 本郷三丁目駅 徒歩6分
新築 / 8階建
東京都文京区本郷5丁目

33.5万円 / 管理費15,000円
敷
33.5万円礼
無料2LDK / 50.95㎡ / 6階
賃貸マンション
プラウドフラット本郷三丁目

都営大江戸線 / 本郷三丁目駅 徒歩4分
築2年 / 15階建
東京都文京区本郷3丁目25-7

32.7万円 / 管理費15,000円
敷
32.7万円礼
無料2LDK / 51.69㎡ / 6階
賃貸マンション
レジディア水道橋
総武線 / 水道橋駅 徒歩4分
築22年 / 地上14階地下1階建
東京都千代田区神田三崎町3丁目
家賃カード決済可
32.5万円 / 管理費25,000円
敷
32.5万円礼
32.5万円2LDK / 57.96㎡ / 5階
賃貸マンション
都営大江戸線 本郷三丁目駅 15階建 築3年
都営大江戸線 / 本郷三丁目駅 徒歩4分
築2年 / 15階建
東京都文京区本郷3
33万円 / 管理費15,000円
敷
33万円礼
無料2LDK / 51.69㎡ / 9階
賃貸マンション
パークアクシス文京本郷

東京メトロ丸ノ内線 / 本郷三丁目駅 徒歩6分
新築 / 8階建
東京都文京区本郷5丁目

33.5万円 / 管理費15,000円
敷
33.5万円礼
無料2LDK / 50.95㎡ / 6階
賃貸マンション
プラウドフラット本郷三丁目

都営大江戸線 / 本郷三丁目駅 徒歩4分
築2年 / 15階建
東京都文京区本郷3丁目25-7

32.7万円 / 管理費15,000円
敷
32.7万円礼
無料2LDK / 51.69㎡ / 6階
賃貸マンション
レジディア水道橋
総武線 / 水道橋駅 徒歩4分
築22年 / 地上14階地下1階建
東京都千代田区神田三崎町3丁目
家賃カード決済可
32.5万円 / 管理費25,000円
敷
32.5万円礼
32.5万円2LDK / 57.96㎡ / 5階
賃貸マンション
都営大江戸線 本郷三丁目駅 15階建 築3年
都営大江戸線 / 本郷三丁目駅 徒歩4分
築2年 / 15階建
東京都文京区本郷3
33万円 / 管理費15,000円
敷
33万円礼
無料2LDK / 51.69㎡ / 9階


