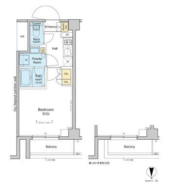
コンフォリア南品川1LDK/14階(東京都品川区 / 新馬場駅)の賃貸
1/22
1/22
16.8万円
初期費用を知りたい管理費7,000円
- 敷金
- 16.8万円
- 保証金
- なし
- 礼金
- 無料
- 広さ
- 33.16㎡
- 階数
- 14階 / 16階建
- 間取り
- 1LDK
- 建物
- マンション (鉄筋コンクリート)
- 築年数
- 築1年
- 向き
- 東
- 交通
- 京急本線 / 新馬場駅徒歩2分
- 京浜東北線 / 大井町駅徒歩15分
- 住所
- 東京都品川区南品川4丁目
コンビニエンスストア 77m
スーパーマーケット 388m
ドラッグストア 562m
商店街 1112m
ローソンストア100 LS青物横丁店 491m
無料で10秒! カンタンお問い合わせ

コンフォリア南品川
敷
16.8万円礼
無料特徴
バス・トイレ別
2階以上
エアコン付き
ペット相談可
駐車場あり
室内洗濯機置場
オートロック
洗面所独立
- 入居条件
- 初期費用カード決済可、二人入居可、ペット可、保証人不要、即入居可最新の空室状況が知りたい
- バス・トイレ
- 専用バス、専用トイレ、バストイレ別、シャワー、給湯、温水洗浄便座、浴室乾燥機、洗面所独立
- キッチン
- ガスコンロ対応、2口コンロ、システムキッチン
- セキュリティ
- オートロック、防犯カメラ
- 室内設備
- エアコン、室内洗濯置、CS、BS、フローリング、インターネット対応、ネット使用料不要、クロゼット、シューズボックス、照明付お部屋の詳しい情報を知りたい
- 部屋の特徴
- バルコニー、二階以上写真を送ってほしい
- 共用部
- エレベーター、宅配ボックス、駐輪場、バイク置場
- その他の特徴
- 公営水道、都市ガス、下水、外壁タイル張り、デザイナーズ
無料で10秒! カンタンお問い合わせ

コンフォリア南品川
敷
16.8万円礼
無料不動産会社からのコメント
通勤通学に大変便利な好立地・大井町駅も徒歩圏☆ネット無料など設備充実の築浅物件です☆★エリア最大級★
沿線や近隣エリアの物件もまとめてご紹介いたします。ぜひお問合せ下さい☆ ■バイク置き場ほか共用設備は有料です。空き状況や詳細はお問合せ下さい。
その他
- 駐車/駐輪
- 近隣 費用: 35,000円 距離: 100m / あり駐車可能な車種や台数を知りたい
- 入居時期
- 損保
- 住宅保険: 要
- 保証人代行
- 加入要 費用: エポスカード(RP)保証料:賃料等の50%(最低2万)、月額保証料:賃料等の1%(更新料無)
- その他費用
初期費用を知りたい鍵交換費用:33,000円
- 情報
情報登録日:2026/1/17
情報更新日:2026/4/3
次回更新予定日:2026/4/17
- 備考
- 現況: 空家 更新料: 新賃料の1.0ヶ月分 契約期間: 2年 その他交通: 山手線 大崎駅 徒歩20分 自社管理番号: 6601008
取扱い会社
- 取扱い会社
- 株式会社リブ・マックス 目黒店条件が近い物件も紹介してほしい
- 免許番号
- 国土交通大臣(5)第7032号
- 取引態様
- 仲介
- 所在地
- 東京都品川区上大崎2丁目15-15 伊多喜ビル 5F
- 電話番号
- 03-6409-0707
- 定休日
- 水曜日(年末年始、GW、夏季)
- 所属団体名
- 公益社団法人 全日本不動産保証協会
おすすめ物件 (10件)
賃貸マンション
品川区 10階建 2025年築
京浜東北線 / 大井町駅 徒歩16分
新築 / 10階建
東京都品川区南品川3丁目6-14
18.2万円 / 管理費15,000円
敷
18.2万円礼
無料1SLDK / 38.55㎡ / 2階
賃貸マンション
ブリリアイスト大井町(Brillia ist大井町)
京浜東北線 / 大井町駅 徒歩4分
築2年 / 14階建
東京都品川区大井1丁目54-10
17.4万円 / 管理費10,000円
敷
17.4万円礼
無料1DK / 25.05㎡ / 8階
賃貸マンション
レジディア大井町II
りんかい線 / 大井町駅 徒歩5分
築19年 / 9階建
東京都品川区大井1丁目20-12
18万円 / 管理費20,000円
敷
無料礼
無料ワンルーム / 33.41㎡ / 4階
賃貸マンション
ザ・パークハビオ南大井

京浜東北線 / 大井町駅 徒歩19分
築5年 / 15階建
東京都品川区南大井4丁目

18.8万円 / 管理費15,000円
敷
18.8万円礼
無料1LDK / 39.6㎡ / 12階
賃貸マンション
プラウドフラット品川大井町

京浜東北線 / 大井町駅 徒歩9分
築4年 / 5階建
東京都品川区南品川6丁目

15.3万円 / 管理費15,000円
敷
15.3万円礼
無料1K / 25.6㎡ / 4階
賃貸マンション
品川区東大井3丁目 15階建 2024年築

京浜東北線 / 大井町駅 徒歩10分
築2年 / 15階建
東京都品川区東大井3丁目

16.9万円 / 管理費12,000円
敷
16.9万円礼
無料1LDK / 33.04㎡ / 11階
賃貸マンション
Brillia ist 大井町

京浜東北線 / 大井町駅 徒歩4分
築2年 / 14階建
東京都品川区大井1丁目

17.6万円 / 管理費10,000円
敷
17.6万円礼
無料1DK / 25.08㎡ / 11階
賃貸マンション
パークアクシス品川天王洲アイル
京急本線 / 新馬場駅 徒歩15分
築1年 / 14階建
東京都品川区東品川3
14.8万円 / 管理費12,000円
敷
14.8万円礼
無料1DK / 29.12㎡ / 5階
賃貸マンション
ルフォンプログレ品川大井

京浜東北線 / 大井町駅 徒歩15分
築4年 / 14階建
東京都品川区大井5丁目

15.2万円 / 管理費15,000円
敷
15.2万円礼
15.2万円1DK / 25.01㎡ / 7階
賃貸マンション
品川区 10階建 2025年築
京浜東北線 / 大井町駅 徒歩16分
新築 / 10階建
東京都品川区南品川3丁目6-14
18.2万円 / 管理費15,000円
敷
18.2万円礼
無料1SLDK / 38.55㎡ / 2階
賃貸マンション
ブリリアイスト大井町(Brillia ist大井町)
京浜東北線 / 大井町駅 徒歩4分
築2年 / 14階建
東京都品川区大井1丁目54-10
17.4万円 / 管理費10,000円
敷
17.4万円礼
無料1DK / 25.05㎡ / 8階
賃貸マンション
レジディア大井町II
りんかい線 / 大井町駅 徒歩5分
築19年 / 9階建
東京都品川区大井1丁目20-12
18万円 / 管理費20,000円
敷
無料礼
無料ワンルーム / 33.41㎡ / 4階
賃貸マンション
ザ・パークハビオ南大井

京浜東北線 / 大井町駅 徒歩19分
築5年 / 15階建
東京都品川区南大井4丁目

18.8万円 / 管理費15,000円
敷
18.8万円礼
無料1LDK / 39.6㎡ / 12階
賃貸マンション
プラウドフラット品川大井町

京浜東北線 / 大井町駅 徒歩9分
築4年 / 5階建
東京都品川区南品川6丁目

15.3万円 / 管理費15,000円
敷
15.3万円礼
無料1K / 25.6㎡ / 4階
賃貸マンション
品川区東大井3丁目 15階建 2024年築

京浜東北線 / 大井町駅 徒歩10分
築2年 / 15階建
東京都品川区東大井3丁目

16.9万円 / 管理費12,000円
敷
16.9万円礼
無料1LDK / 33.04㎡ / 11階
賃貸マンション
Brillia ist 大井町

京浜東北線 / 大井町駅 徒歩4分
築2年 / 14階建
東京都品川区大井1丁目

17.6万円 / 管理費10,000円
敷
17.6万円礼
無料1DK / 25.08㎡ / 11階
賃貸マンション
パークアクシス品川天王洲アイル
京急本線 / 新馬場駅 徒歩15分
築1年 / 14階建
東京都品川区東品川3
14.8万円 / 管理費12,000円
敷
14.8万円礼
無料1DK / 29.12㎡ / 5階
賃貸マンション
ルフォンプログレ品川大井

京浜東北線 / 大井町駅 徒歩15分
築4年 / 14階建
東京都品川区大井5丁目

15.2万円 / 管理費15,000円
敷
15.2万円礼
15.2万円1DK / 25.01㎡ / 7階
同じ最寄り駅 × 同じ特徴 で探す
同じ市区町村 × 同じ特徴 で探す

























