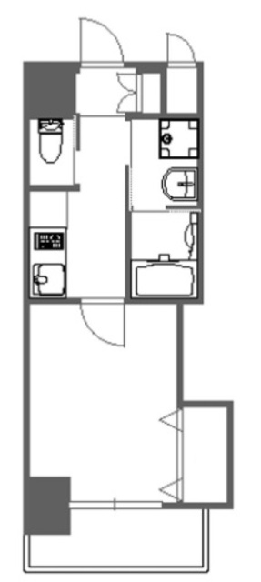
橋波東之町平屋1DK/1階(大阪府守口市 / 西三荘駅)の賃貸
1/30
1/30
5.5万円
初期費用を知りたい管理費なし
- 敷金
- 無料
- 保証金
- なし
- 礼金
- 10万円
- 広さ
- 33㎡
- 階数
- 1階 / 1階建
- 間取り
- 1DK
- 建物
- テラス・タウンハウス (木造)
- 築年数
- 築59年
- 向き
- 交通
- 京阪本線 / 西三荘駅徒歩4分
- 京阪本線 / 守口市駅徒歩11分
- 住所
- 大阪府守口市橋波東之町4丁目3-6
コンビニエンスストア 223m
スーパーマーケット 298m
無料で10秒! カンタンお問い合わせ

橋波東之町平屋
敷
無料礼
10万円特徴
バス・トイレ別
2階以上
エアコン付き
ペット相談可
駐車場あり
室内洗濯機置場
オートロック
洗面所独立
- 入居条件
- ペット可、初期費用カード決済可、敷金不要最新の空室状況が知りたい
- バス・トイレ
- 専用バス、バストイレ別、シャワー、給湯、温水洗浄便座
- 室内設備
- エアコン、室内洗濯置、フローリングお部屋の詳しい情報を知りたい
- 部屋の特徴
- 角住戸、最上階写真を送ってほしい
- その他の特徴
- 公営水道、都市ガス、下水
無料で10秒! カンタンお問い合わせ

橋波東之町平屋
敷
無料礼
10万円不動産会社からのコメント
ペットと暮らせる平屋のお家です。西三荘駅にも徒歩圏内です。
貸家のいいところは広い事がメリットです。せまいとストレスになることもあります。荷物や家族の多い方でも快適にお過ごしすることができます。あなたのご家庭に幸せをもたらす物件です。お部屋探しなら管理物件も多い、関西ホームドリームまでお気軽にご連絡ください。
その他
- 駐車/駐輪
- 無 / なし駐車可能な車種や台数を知りたい
- 入居時期
- 2026年3月下旬最新の空室状況が知りたい
- 損保
- 住宅保険: 要
- 保証人代行
- 加入要 会社名: 日本セーフティ― 費用: 初回契約時:50%、更新時:20、000円
- その他費用
- 情報
情報登録日:2026/2/27
情報更新日:2026/4/16
次回更新予定日:2026/4/24
提供元:LIFULL HOME'S
- 備考
- 現況: 空家 契約期間: 2年 LIFULL HOME'S物件番号: 1420560019737
取扱い会社
- 取扱い会社
- 株式会社関西ホームドリーム条件が近い物件も紹介してほしい
- 免許番号
- 大阪府知事(06)第047363号
- 取引態様
- 一般媒介
- 所在地
- 大阪府門真市新橋町5番25号
- 電話番号
- 06-6900-0114
- 定休日
- 毎週水曜日
- 所属団体名
- (公社)近畿圏不動産流通機構
おすすめ物件 (14件)
賃貸アパート
守口市橋波西之町3丁目 3階建 2018年築

京阪本線 / 守口市駅 徒歩5分
築8年 / 3階建
大阪府守口市橋波西之町3丁目

7万円 / 管理費4,000円
敷
無料礼
7万円1LDK / 31.86㎡ / 1階
賃貸マンション
守口市豊秀町2丁目 8階建 2009年築

京阪本線 / 守口市駅 徒歩7分
築17年 / 8階建
大阪府守口市豊秀町2丁目

5.7万円 / 管理費8,000円
敷
無料礼
10万円1K / 24.5㎡ / 3階
賃貸マンション
門真市小路町 13階建 2017年築

京阪本線 / 西三荘駅 徒歩10分
築9年 / 12階建
大阪府門真市小路町

6.7万円 / 管理費10,000円
敷
無料礼
無料1K / 29.04㎡ / 5階
賃貸アパート
守口市淀江町 3階建 2016年築

京阪本線 / 守口市駅 徒歩19分
築10年 / 3階建
大阪府守口市淀江町

7.5万円 / 管理費5,000円
敷
無料礼
7.5万円1LDK / 42㎡ / 2階
賃貸アパート
門真市柳町 3階建 2018年築

京阪本線 / 西三荘駅 徒歩10分
築8年 / 3階建
大阪府門真市柳町

7.2万円 / 管理費4,300円
敷
無料礼
7.2万円1LDK / 37.06㎡ / 1階
賃貸アパート
守口市佐太中町1丁目 3階建 2019年築

京阪本線 / 西三荘駅 徒歩32分
築7年 / 3階建
大阪府守口市佐太中町1丁目

6.9万円 / 管理費5,000円
敷
無料礼
6.9万円1LDK / 34.12㎡ / 2階
賃貸アパート
門真市寿町 3階建 2016年築

京阪本線 / 西三荘駅 徒歩27分
築10年 / 3階建
大阪府門真市寿町

6.7万円 / 管理費5,000円
敷
無料礼
6.7万円1LDK / 37.6㎡ / 2階
賃貸アパート
クリエオーレ橋波西之町
)
京阪本線 / 守口市駅 徒歩6分
築9年 / 3階建
大阪府守口市橋波西之町3丁目8-5
)
6.8万円 / 管理費5,500円
敷
無料礼
6.8万円1DK / 33.63㎡ / 1階
賃貸アパート
クリエオーレ八雲西町
)
京阪本線 / 守口市駅 徒歩18分
築11年 / 3階建
大阪府守口市八雲西町1丁目26-16
)
6.8万円 / 管理費4,000円
敷
無料礼
6.8万円1LDK / 38㎡ / 2階
賃貸アパート
セレニティ八雲北町2丁目A棟
)
京阪本線 / 守口市駅 徒歩24分
築6年 / 3階建
大阪府守口市八雲北町2丁目20-9
)
6.7万円 / 管理費3,000円
敷
無料礼
6.7万円1LDK / 34㎡ / 1階
賃貸マンション
ディーコート(D-COURT)門真駅前
)
京阪本線 / 西三荘駅 徒歩9分
築9年 / 13階建
大阪府門真市小路町1-7
)
6.7万円 / 管理費10,000円
敷
無料礼
無料1K / 29.49㎡ / 5階
賃貸アパート
守口市橋波西之町3丁目 3階建 2018年築

京阪本線 / 守口市駅 徒歩5分
築8年 / 3階建
大阪府守口市橋波西之町3丁目

7万円 / 管理費4,000円
敷
無料礼
7万円1LDK / 31.86㎡ / 1階
賃貸マンション
守口市豊秀町2丁目 8階建 2009年築

京阪本線 / 守口市駅 徒歩7分
築17年 / 8階建
大阪府守口市豊秀町2丁目

5.7万円 / 管理費8,000円
敷
無料礼
10万円1K / 24.5㎡ / 3階
賃貸マンション
門真市小路町 13階建 2017年築

京阪本線 / 西三荘駅 徒歩10分
築9年 / 12階建
大阪府門真市小路町

6.7万円 / 管理費10,000円
敷
無料礼
無料1K / 29.04㎡ / 5階
賃貸アパート
守口市淀江町 3階建 2016年築

京阪本線 / 守口市駅 徒歩19分
築10年 / 3階建
大阪府守口市淀江町

7.5万円 / 管理費5,000円
敷
無料礼
7.5万円1LDK / 42㎡ / 2階
賃貸アパート
門真市柳町 3階建 2018年築

京阪本線 / 西三荘駅 徒歩10分
築8年 / 3階建
大阪府門真市柳町

7.2万円 / 管理費4,300円
敷
無料礼
7.2万円1LDK / 37.06㎡ / 1階
賃貸アパート
守口市佐太中町1丁目 3階建 2019年築

京阪本線 / 西三荘駅 徒歩32分
築7年 / 3階建
大阪府守口市佐太中町1丁目

6.9万円 / 管理費5,000円
敷
無料礼
6.9万円1LDK / 34.12㎡ / 2階
賃貸アパート
門真市寿町 3階建 2016年築

京阪本線 / 西三荘駅 徒歩27分
築10年 / 3階建
大阪府門真市寿町

6.7万円 / 管理費5,000円
敷
無料礼
6.7万円1LDK / 37.6㎡ / 2階
賃貸アパート
クリエオーレ橋波西之町
)
京阪本線 / 守口市駅 徒歩6分
築9年 / 3階建
大阪府守口市橋波西之町3丁目8-5
)
6.8万円 / 管理費5,500円
敷
無料礼
6.8万円1DK / 33.63㎡ / 1階
賃貸アパート
クリエオーレ八雲西町
)
京阪本線 / 守口市駅 徒歩18分
築11年 / 3階建
大阪府守口市八雲西町1丁目26-16
)
6.8万円 / 管理費4,000円
敷
無料礼
6.8万円1LDK / 38㎡ / 2階
賃貸アパート
セレニティ八雲北町2丁目A棟
)
京阪本線 / 守口市駅 徒歩24分
築6年 / 3階建
大阪府守口市八雲北町2丁目20-9
)
6.7万円 / 管理費3,000円
敷
無料礼
6.7万円1LDK / 34㎡ / 1階
賃貸マンション
ディーコート(D-COURT)門真駅前
)
京阪本線 / 西三荘駅 徒歩9分
築9年 / 13階建
大阪府門真市小路町1-7
)
6.7万円 / 管理費10,000円
敷
無料礼
無料1K / 29.49㎡ / 5階
同じ最寄り駅 × 同じ特徴 で探す
同じ市区町村 × 同じ特徴 で探す






























)
)



