パークキューブ武蔵小杉1K/4階/406(神奈川県川崎市中原区 / 新丸子駅)の賃貸
1/29
1/29
11.6万円
初期費用を知りたい管理費7,000円
- 敷金
- 11.6万円
- 保証金
- なし
- 礼金
- 11.6万円
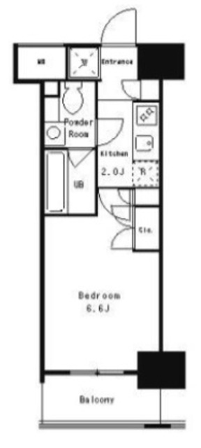
- 広さ
- 23㎡
- 階数
- 4階 / 14階建
- 間取り
- 1K
- 建物
- マンション (鉄筋コンクリート)
- 築年数
- 築17年
- 向き
- 西
- 交通
- 東急東横線 / 新丸子駅徒歩6分
- 南武線 / 武蔵小杉駅徒歩7分
- 南武線 / 向河原駅徒歩12分
- 東急東横線 / 多摩川駅徒歩21分
- 住所
- 神奈川県川崎市 中原区新丸子東2丁目890-1
東急ストア新丸子店 409m
ローソン 上丸子山王町店 297m
ココカラファイン くすりセイジョー新丸子店 503m
ららテラス武蔵小杉 730m
小田切医院 1034m
下沼部公園 601m
無料で10秒! カンタンお問い合わせ

パークキューブ武蔵小杉
敷
11.6万円礼
11.6万円特徴
バス・トイレ別
2階以上
エアコン付き
ペット相談可
駐車場あり
室内洗濯機置場
オートロック
洗面所独立
- 入居条件
- 保証人不要最新の空室状況が知りたい
- バス・トイレ
- シャワー、給湯、洗面台、バストイレ別、浴室乾燥機、脱衣所、温水洗浄便座、洗面所独立
- キッチン
- ガスコンロ対応、2口コンロ、システムキッチン
- セキュリティ
- 防犯カメラ、オートロック
- 室内設備
- CS、インターネット対応、CATV、BS、エアコン、シューズボックス、クロゼット、室内洗濯置、フローリングお部屋の詳しい情報を知りたい
- 部屋の特徴
- 二階以上、収納2ヵ所、バルコニー写真を送ってほしい
- 共用部
- 敷地内駐車場、日勤管理、敷地内ごみ置き場、宅配ボックス、エレベーター、バイク置場、駐輪場
- その他の特徴
- 駐車場あり、公営水道、下水
無料で10秒! カンタンお問い合わせ

パークキューブ武蔵小杉
敷
11.6万円礼
11.6万円不動産会社からのコメント
室内清掃費用 55000円(退去時)/口座振替手数料 月額110円/CATVでBS、CS視聴可(CATV、BS別途契約要、有償)/敷地内駐車場(利用時):タワー機械式25850円、平置月額28600円/バイク置場(利用時):月額3300円/短期解約違約金有(1年未満の解約は賃料の1ヶ月分)
その他
- 駐車/駐輪
- 有敷地内 費用: 25,850円(税込) / あり駐車可能な車種や台数を知りたい
- 入居時期
- 2026年2月上旬最新の空室状況が知りたい
- 損保
- 住宅保険: 要
- 保証人代行
- 連帯保証人: 不要 保証人代行: 必須 保証人代行会社: その他 月額賃料等の50%(初回保証料)、2年目以降は9,600円/年
- その他費用
初期費用を知りたい鍵交換費:16,500円
- 情報
情報登録日:2026/1/26
情報更新日:2026/1/30
次回更新予定日:2026/2/11
- 備考
- 契約期間: 2年 管理人: 日勤
取扱い会社
- 取扱い会社
- ソレイユ溝の口店 (株式会社ソレイユ)条件が近い物件も紹介してほしい
- 免許番号
- 国土交通大臣(5)第7031号
- 取引態様
- 仲介
- 所在地
- 神奈川県川崎市高津区溝口1丁目9-5 スギザキビル 7階
- 電話番号
- 044-299-6072
- 営業時間
- 10:00~19:00
- 定休日
- 毎週水曜日・第2火曜日
- 所属団体名
- 全日本不動産協会
おすすめ物件 (9件)
賃貸マンション
クレヴィスタ武蔵小杉

東急東横線 / 新丸子駅 徒歩8分
築2年 / 5階建
神奈川県川崎市中原区上丸子山王町1丁目

13.2万円 / 管理費11,000円
敷
無料礼
13.2万円1K / 25.8㎡ / 4階
賃貸マンション
川崎市中原区市ノ坪 7階建 2015年築

東急東横線 / 武蔵小杉駅 徒歩6分
築11年 / 7階建
神奈川県川崎市中原区市ノ坪

10.7万円 / 管理費11,000円
敷
無料礼
10.7万円1K / 20.59㎡ / 6階
賃貸マンション
リブリ・新丸子

東急東横線 / 新丸子駅 徒歩9分
築11年 / 8階建
神奈川県川崎市中原区上丸子八幡町605-4

10.7万円 / 管理費6,000円
敷
無料礼
26.75万円1K / 26.03㎡ / 3階
賃貸マンション
川崎市中原区上丸子山王町2丁目 7階建 2007年築

東急東横線 / 武蔵小杉駅 徒歩6分
築19年 / 7階建
神奈川県川崎市中原区上丸子山王町2丁目

11.8万円 / 管理費11,000円
敷
無料礼
11.8万円1K / 24.45㎡ / 3階
賃貸マンション
パークキューブ武蔵小杉

東急東横線 / 新丸子駅 徒歩6分
築17年 / 14階建
神奈川県川崎市 中原区新丸子東2丁目890-1

12万円 / 管理費7,000円
敷
12万円礼
無料1K / 22.42㎡ / 13階
賃貸マンション
Log武蔵小杉

南武線 / 武蔵小杉駅 徒歩5分
築4年 / 9階建
神奈川県川崎市 中原区新丸子東2丁目896-25

12万円 / 管理費10,000円
敷
無料礼
無料1K / 20.68㎡ / 8階
賃貸マンション
ルーブル武蔵中原弐番館

湘南新宿ライン宇須 / 武蔵小杉駅 徒歩23分
築9年 / 5階建
神奈川県川崎市 中原区下小田中3丁目11-61

9.9万円 / 管理費10,000円
敷
無料礼
9.9万円1K / 25.5㎡ / 3階
賃貸マンション
ハーモニーレジデンス武蔵小杉フォレストスクエア

東急東横線 / 武蔵小杉駅 徒歩10分
築7年 / 5階建
神奈川県川崎市中原区小杉町2丁目207-3

13万円 / 管理費15,000円
敷
13万円礼
13万円1DK / 25.42㎡ / 5階
賃貸マンション
川崎市中原区今井南町 5階建 2005年築

東急東横線 / 武蔵小杉駅 徒歩7分
築21年 / 5階建
神奈川県川崎市中原区今井南町4-20

9.6万円 / 管理費9,500円
敷
無料礼
24万円1K / 28㎡ / 2階
賃貸マンション
クレヴィスタ武蔵小杉

東急東横線 / 新丸子駅 徒歩8分
築2年 / 5階建
神奈川県川崎市中原区上丸子山王町1丁目

13.2万円 / 管理費11,000円
敷
無料礼
13.2万円1K / 25.8㎡ / 4階
賃貸マンション
川崎市中原区市ノ坪 7階建 2015年築

東急東横線 / 武蔵小杉駅 徒歩6分
築11年 / 7階建
神奈川県川崎市中原区市ノ坪

10.7万円 / 管理費11,000円
敷
無料礼
10.7万円1K / 20.59㎡ / 6階
賃貸マンション
リブリ・新丸子

東急東横線 / 新丸子駅 徒歩9分
築11年 / 8階建
神奈川県川崎市中原区上丸子八幡町605-4

10.7万円 / 管理費6,000円
敷
無料礼
26.75万円1K / 26.03㎡ / 3階
賃貸マンション
川崎市中原区上丸子山王町2丁目 7階建 2007年築

東急東横線 / 武蔵小杉駅 徒歩6分
築19年 / 7階建
神奈川県川崎市中原区上丸子山王町2丁目

11.8万円 / 管理費11,000円
敷
無料礼
11.8万円1K / 24.45㎡ / 3階
賃貸マンション
パークキューブ武蔵小杉

東急東横線 / 新丸子駅 徒歩6分
築17年 / 14階建
神奈川県川崎市 中原区新丸子東2丁目890-1

12万円 / 管理費7,000円
敷
12万円礼
無料1K / 22.42㎡ / 13階
賃貸マンション
Log武蔵小杉

南武線 / 武蔵小杉駅 徒歩5分
築4年 / 9階建
神奈川県川崎市 中原区新丸子東2丁目896-25

12万円 / 管理費10,000円
敷
無料礼
無料1K / 20.68㎡ / 8階
賃貸マンション
ルーブル武蔵中原弐番館

湘南新宿ライン宇須 / 武蔵小杉駅 徒歩23分
築9年 / 5階建
神奈川県川崎市 中原区下小田中3丁目11-61

9.9万円 / 管理費10,000円
敷
無料礼
9.9万円1K / 25.5㎡ / 3階
賃貸マンション
ハーモニーレジデンス武蔵小杉フォレストスクエア

東急東横線 / 武蔵小杉駅 徒歩10分
築7年 / 5階建
神奈川県川崎市中原区小杉町2丁目207-3

13万円 / 管理費15,000円
敷
13万円礼
13万円1DK / 25.42㎡ / 5階
賃貸マンション
川崎市中原区今井南町 5階建 2005年築

東急東横線 / 武蔵小杉駅 徒歩7分
築21年 / 5階建
神奈川県川崎市中原区今井南町4-20

9.6万円 / 管理費9,500円
敷
無料礼
24万円1K / 28㎡ / 2階
同じ最寄り駅 × 同じ特徴 で探す
同じ市区町村 × 同じ特徴 で探す































