ウィルテラスなんば南1K/11階(大阪府大阪市浪速区 / 大国町駅)の賃貸
管理費5,000円
- 敷金
- 無料
- 保証金
- なし
- 礼金
- 無料
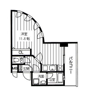
- 広さ
- 25.23㎡
- 階数
- 11階 / 地上12階地下1階建
- 間取り
- 1K
- 建物
- マンション (鉄筋コンクリート)
- 築年数
- 築22年
- 向き
- 交通
- 地下鉄御堂筋線 / 大国町駅徒歩1分
- 南海高野線 / 今宮戎駅徒歩5分
- 住所
- 大阪府大阪市浪速区戎本町1丁目
無料で10秒! カンタンお問い合わせ

ウィルテラスなんば南
- 入居条件
- 初期費用カード決済可、楽器不可、事務所(SOHO)不可、学生歓迎、高齢者歓迎最新の空室状況が知りたい
- バス・トイレ
- 専用バス、専用トイレ、バストイレ別、温水洗浄便座
- キッチン
- ガスコンロ対応、2口コンロ、システムキッチン
- セキュリティ
- オートロック、防犯カメラ
- 室内設備
- エアコン、室内洗濯置、CATV、CS、BS、フローリング、光ファイバー、ネット使用料不要、クロゼット、シューズボックスお部屋の詳しい情報を知りたい
- 部屋の特徴
- バルコニー、角住戸、二階以上写真を送ってほしい
- 共用部
- エレベーター、宅配ボックス
- その他の特徴
- 公営水道、都市ガス、下水
無料で10秒! カンタンお問い合わせ

ウィルテラスなんば南
同じ建物で掲載中の物件 (12件)
?不動産LABO?では大阪全域の物件を取り扱っております!! ☆当社の一押しポイント☆ ★他社様より少しでもお安く!!お部屋のご契約を出来るよう交渉させて頂きます♪ ★初めてのお部屋探しの方もご安心くださいませ♪不安に思う事や疑問に思う事など、なんでもご相談可能です♪ ★お客様が納得のいくまで経験豊富なスタッフがお部屋探しを全力でサポート致します!!! ★ご契約後のアフターフォローもおまかせ
- 駐車/駐輪
- 要確認 / なし駐車可能な車種や台数を知りたい
- 入居時期
- 損保
- 住宅保険: 要
- 保証人代行
- 加入要 費用: 詳細はお問合せください 詳細はお問合せください
- その他費用
初期費用を知りたい鍵交換費用:22,000円
- 情報
情報登録日:2025/12/7
情報更新日:2026/1/31
次回更新予定日:2026/2/14
- 備考
- 現況: 空家 更新料: 新賃料の1.0ヶ月分 契約期間: 2年 バルコニー面積: 5.00㎡ 自社管理番号: 475621
- 取扱い会社
- 株式会社SILVER-BACK 不動産LABO 昭和町店条件が近い物件も紹介してほしい
- 免許番号
- 大阪府知事(1)第61911号
- 取引態様
- 一般媒介
- 所在地
- 大阪府大阪市阿倍野区阪南町1-46-2
- 電話番号
- 06-6553-0222
- 営業時間
- 10:00~19:00
- 定休日
- なし
- 所属団体名
- 全国宅地建物取引業保証協会
おすすめ物件 (20件)
大阪市浪速区敷津西1丁目 8階建 2023年築


スプランディッド難波Ⅱ


プレサンス大国町アドロッソ


エグゼ難波西Ⅱ


セレニテ難波ミラク参番館


エスプレッソ難波II


アーバンエース日本橋バル


S-RESIDENCE難波大国町Tres


ウィルテラスなんば南


エステムコート難波サウスプレイス8ハイド


エスグランデ難波サウス


アーバンフラッツ難波東


S-RESIDENCE難波Viale


ワールドアイ難波City Gate


レオンコンフォート難波クレア


スペーシア日本橋東


スプランディッド難波元町DUE


スプランディッド難波SOUTH


大阪市浪速区敷津西1丁目 8階建 2023年築


スプランディッド難波Ⅱ


プレサンス大国町アドロッソ


エグゼ難波西Ⅱ


セレニテ難波ミラク参番館


エスプレッソ難波II


アーバンエース日本橋バル


S-RESIDENCE難波大国町Tres


ウィルテラスなんば南


エステムコート難波サウスプレイス8ハイド


エスグランデ難波サウス


アーバンフラッツ難波東


S-RESIDENCE難波Viale


ワールドアイ難波City Gate


レオンコンフォート難波クレア


スペーシア日本橋東


スプランディッド難波元町DUE


スプランディッド難波SOUTH














































