札幌市北区 2階建 2009年築2LDK/1階(北海道札幌市北区 / 篠路駅)の賃貸
1/18
1/18
6.2万円
初期費用を知りたい管理費3,000円
- 敷金
- 6.2万円
- 保証金
- なし
- 礼金
- 無料
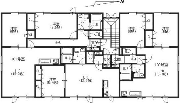
- 広さ
- 66.23㎡
- 階数
- 1階 / 2階建
- 間取り
- 2LDK
- 建物
- アパート (木造)
- 築年数
- 築17年
- 向き
- 交通
- 札沼線 / 篠路駅徒歩27分
- 住所
- 北海道札幌市北区篠路八条1丁目
無料で10秒! カンタンお問い合わせ

札幌市北区 2階建 2009年築
敷
6.2万円礼
無料特徴
バス・トイレ別
2階以上
エアコン付き
ペット相談可
駐車場あり
室内洗濯機置場
オートロック
洗面所独立
- 入居条件
- 即入居可最新の空室状況が知りたい
- バス・トイレ
- 専用バス、専用トイレ、バストイレ別、給湯、シャワー付洗面化粧台、洗面所独立
- 室内設備
- エアコン、BS、光ファイバー、シューズボックス、石油暖房お部屋の詳しい情報を知りたい
- 共用部
- 駐輪場、敷地内駐車場
- その他の特徴
- 公営水道、プロパンガス、下水、駐車場あり
無料で10秒! カンタンお問い合わせ

札幌市北区 2階建 2009年築
敷
6.2万円礼
無料同じ建物で掲載中の物件 (1件)
不動産会社からのコメント
[物件コード]206801-14547c、【Googleクチコミ好評御礼】 おいでや不動産は札幌市内すべての物件をご紹介可能!ご都合の良い場所まで送迎します★お急ぎの方はオンラインで完結!公式LINEは24時間対応中。なんでもご相談ください♪ ★こちらの物件、おいでや不動産なら仲介料無料★
その他
- 駐車/駐輪
- 空有 費用: 0円 距離: 0m 空き数: 0 / あり駐車可能な車種や台数を知りたい
- 入居時期
- 損保
- 住宅保険: 要
- 保証人代行
- 加入要 費用: 60.0%
- その他費用
初期費用を知りたいハウスクリーニング:38,500円
エアコン清掃料:22,000円
- 情報
情報登録日:2026/1/22
情報更新日:2026/3/6
次回更新予定日:2026/3/16
- 備考
- 現況: 空家 契約期間: 2年
取扱い会社
- 取扱い会社
- 株式会社おいでや不動産 センチュリー21 おいでや不動産条件が近い物件も紹介してほしい
- 免許番号
- 北海道知事免許 石狩(1)第9357号
- 取引態様
- 仲介
- 所在地
- 北海道札幌市東区北25条東21丁目3-1
- 電話番号
- 011-790-8689
- 営業時間
- 10:00~19:00
- 定休日
- 年末年始・GW・お盆のみ休業
- 所属団体名
- 不動産保証協会
おすすめ物件 (12件)
賃貸アパート
札幌市北区篠路三条 3階建 2003年築
)
札沼線 / 篠路駅 徒歩6分
築23年 / 3階建
北海道札幌市北区篠路三条8丁目9-1
)
6.6万円 / 管理費なし
敷
6.6万円礼
無料2LDK / 60.38㎡ / 1階
賃貸アパート
West View81

札沼線 / 篠路駅 徒歩24分
築17年 / 2階建
北海道札幌市北区篠路八条1丁目2番8号

5.7万円 / 管理費3,000円
敷
5.7万円礼
無料2LDK / 65.73㎡ / 2階
賃貸マンション
プレアデス篠路

札沼線 / 篠路駅 徒歩10分
築26年 / 3階建
北海道札幌市北区篠路十条3丁目2番10号

6.8万円 / 管理費2,000円
敷
無料礼
無料2LDK / 56.46㎡ / 2階
賃貸マンション
リーベデンス山本
)
札沼線 / 篠路駅 徒歩11分
築33年 / 3階建
北海道札幌市北区篠路八条6丁目14-20
)
5.2万円 / 管理費3,000円
敷
無料礼
無料3LDK / 73.29㎡ / 1階
賃貸アパート
札幌市北区 2階建 2004年築

札沼線 / 篠路駅 徒歩30分
築22年 / 2階建
北海道札幌市北区屯田九条2丁目

5.7万円 / 管理費3,000円
敷
無料礼
無料2LDK / 57.17㎡ / 2階
賃貸アパート
札幌市北区篠路三条 3階建 2003年築
)
札沼線 / 篠路駅 徒歩6分
築23年 / 3階建
北海道札幌市北区篠路三条8丁目9-1
)
6.6万円 / 管理費なし
敷
6.6万円礼
無料2LDK / 60.38㎡ / 1階
賃貸アパート
West View81

札沼線 / 篠路駅 徒歩24分
築17年 / 2階建
北海道札幌市北区篠路八条1丁目2番8号

5.7万円 / 管理費3,000円
敷
5.7万円礼
無料2LDK / 65.73㎡ / 2階
賃貸マンション
プレアデス篠路

札沼線 / 篠路駅 徒歩10分
築26年 / 3階建
北海道札幌市北区篠路十条3丁目2番10号

6.8万円 / 管理費2,000円
敷
無料礼
無料2LDK / 56.46㎡ / 2階
賃貸マンション
リーベデンス山本
)
札沼線 / 篠路駅 徒歩11分
築33年 / 3階建
北海道札幌市北区篠路八条6丁目14-20
)
5.2万円 / 管理費3,000円
敷
無料礼
無料3LDK / 73.29㎡ / 1階
賃貸アパート
札幌市北区 2階建 2004年築

札沼線 / 篠路駅 徒歩30分
築22年 / 2階建
北海道札幌市北区屯田九条2丁目

5.7万円 / 管理費3,000円
敷
無料礼
無料2LDK / 57.17㎡ / 2階
同じ最寄り駅 で探す
同じ最寄り駅 × 同じ特徴 で探す
同じ市区町村 × 同じ特徴 で探す

















)

)
)




)
)