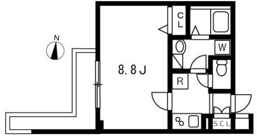
大田区 5階建 2018年築1K/3階(東京都大田区 / 池上駅)の賃貸
1/22
1/22
12.9万円
初期費用を知りたい管理費11,000円
- 敷金
- 無料
- 保証金
- なし
- 礼金
- 12.9万円
- 広さ
- 26.81㎡
- 階数
- 3階 / 5階建
- 間取り
- 1K
- 建物
- マンション (鉄筋コンクリート)
- 築年数
- 築8年
- 向き
- 西
- 交通
- 東急池上線 / 池上駅徒歩4分
- 東急多摩川線 / 矢口渡駅徒歩15分
- 住所
- 東京都大田区池上6丁目26-22
コンビニエンスストア 159m
スーパーマーケット 99m
総合病院 374m
公園 1443m
ドラッグストア 278m
銀行 444m
ポニークリーニング 池上店 383m
無料で10秒! カンタンお問い合わせ

大田区 5階建 2018年築
敷
無料礼
12.9万円特徴
バス・トイレ別
2階以上
エアコン付き
ペット相談可
駐車場あり
室内洗濯機置場
オートロック
洗面所独立
- 入居条件
- ペット相談、ペット可、保証人不要、初期費用カード決済可最新の空室状況が知りたい
- バス・トイレ
- バストイレ別、温水洗浄便座、浴室乾燥機、洗面所独立、専用バス、専用トイレ
- キッチン
- システムキッチン、ガスコンロ対応、2口コンロ
- セキュリティ
- オートロック、防犯カメラ
- 室内設備
- 室内洗濯置、フローリング、家具・家電付、ネット使用料不要、インターネット対応、エアコン、クロゼット、シューズボックスお部屋の詳しい情報を知りたい
- 部屋の特徴
- バルコニー、二階以上写真を送ってほしい
- 共用部
- エレベーター、宅配ボックス、駐輪場、バイク置場
- その他の特徴
- 分譲賃貸、家賃保証付き、公営水道、下水、都市ガス、定期借家
無料で10秒! カンタンお問い合わせ

大田区 5階建 2018年築
敷
無料礼
12.9万円同じ建物で掲載中の物件 (1件)
不動産会社からのコメント
当物件はオンラインまたはお近くの店舗でご相談お申込を承ります
当物件はオンラインまたはお近くの店舗でご相談お申込を承ります。リライフは首都圏23店舗のネットワークで豊富な物件情報をご提供いたします。当物件に類似した未公開物件のご提案も可能です。お気軽にお問い合わせください。違約金有:2年未満総賃料0.5ヶ月 1年未満総賃料1ヶ月
その他
- 駐車/駐輪
- 無 / あり駐車可能な車種や台数を知りたい
- 入居時期
- 損保
- 住宅保険: 要
- 保証人代行
- 加入要 費用: 総賃料50%~
- その他費用
初期費用を知りたい契約事務手数料(初回のみ):10,000円
鍵交換費用:33,000円
抗菌代(エアコン洗浄)(初回のみ):15,000円
24時間サポート代(月額):980円
室内清掃費用:55,000円
- 情報
情報登録日:2025/4/27
情報更新日:2026/4/24
次回更新予定日:2026/5/1
- 備考
- 現況: 空家 更新料: 新賃料の1.0ヶ月分 契約期間: 2年 ※定期借家 総戸数: 34戸 自社管理番号: B78138R404993
取扱い会社
- 取扱い会社
- 株式会社 リライフ 蒲田店条件が近い物件も紹介してほしい
- 免許番号
- 国土交通大臣(1)第10792号
- 取引態様
- 仲介
- 所在地
- 東京都大田区蒲田5-18-1 ザ・シティ蒲田6階
- 電話番号
- 03-4216-2419
- 営業時間
- 10:00~18:30
- 定休日
- 火曜日 水曜日
おすすめ物件 (7件)
賃貸マンション
FABRIC 蒲田 west Residence

東急池上線 / 池上駅 徒歩12分
築1年 / 5階建
東京都大田区西蒲田3丁目

14.2万円 / 管理費12,000円
敷
無料礼
14.2万円1DK / 30.11㎡ / 3階
賃貸マンション
大田区新蒲田2丁目 5階建 2023年築

東急多摩川線 / 矢口渡駅 徒歩6分
築3年 / 5階建
東京都大田区新蒲田2丁目

11.5万円 / 管理費12,000円
敷
無料礼
無料1K / 25.57㎡ / 3階
賃貸マンション
プレール・ドゥーク池上Ⅱ

東急池上線 / 池上駅 徒歩4分
新築 / 12階建
東京都大田区池上5丁目

13.9万円 / 管理費10,000円
敷
無料礼
13.9万円1K / 30.32㎡ / 7階
賃貸マンション
S-RESIDENCE矢口渡aglitter

東急多摩川線 / 矢口渡駅 徒歩5分
築1年 / 8階建
東京都大田区多摩川1丁目36-2

11.9万円 / 管理費15,000円
敷
無料礼
11.9万円1K / 25.48㎡ / 8階
賃貸マンション
FABRIC 蒲田 west Residence

東急池上線 / 池上駅 徒歩12分
築1年 / 5階建
東京都大田区西蒲田3丁目

14.2万円 / 管理費12,000円
敷
無料礼
14.2万円1DK / 30.11㎡ / 3階
賃貸マンション
大田区新蒲田2丁目 5階建 2023年築

東急多摩川線 / 矢口渡駅 徒歩6分
築3年 / 5階建
東京都大田区新蒲田2丁目

11.5万円 / 管理費12,000円
敷
無料礼
無料1K / 25.57㎡ / 3階
賃貸マンション
プレール・ドゥーク池上Ⅱ

東急池上線 / 池上駅 徒歩4分
新築 / 12階建
東京都大田区池上5丁目

13.9万円 / 管理費10,000円
敷
無料礼
13.9万円1K / 30.32㎡ / 7階
賃貸マンション
S-RESIDENCE矢口渡aglitter

東急多摩川線 / 矢口渡駅 徒歩5分
築1年 / 8階建
東京都大田区多摩川1丁目36-2

11.9万円 / 管理費15,000円
敷
無料礼
11.9万円1K / 25.48㎡ / 8階
同じ最寄り駅 × 同じ特徴 で探す
同じ市区町村 × 同じ特徴 で探す


























