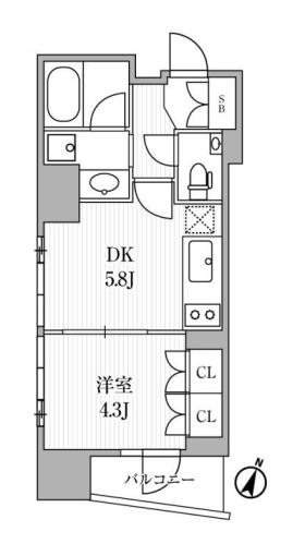
パティオ神田1LDK/9階/903(東京都千代田区 / 岩本町駅)の賃貸
管理費10,000円
- 敷金
- 無料
- 保証金
- なし
- 礼金
- 16.5万円
- 広さ
- 30㎡
- 階数
- 9階 / 14階建
- 間取り
- 1LDK
- 建物
- マンション (鉄筋コンクリート)
- 築年数
- 築12年
- 向き
- 交通
- 都営新宿線 / 岩本町駅徒歩4分
- 山手線 / 神田駅徒歩6分
- 住所
- 東京都千代田区岩本町2丁目1-7
無料で10秒! カンタンお問い合わせ

パティオ神田
- 入居条件
- 二人入居可、保証人不要、初期費用カード決済可、即入居可最新の空室状況が知りたい
- バス・トイレ
- バストイレ別、温水洗浄便座、追焚機能浴室、浴室乾燥機、洗面所独立、専用バス、専用トイレ
- キッチン
- システムキッチン、2口コンロ
- セキュリティ
- オートロック、防犯カメラ
- 室内設備
- 室内洗濯置、フローリング、インターネット対応、エアコン、クロゼット、シューズボックスお部屋の詳しい情報を知りたい
- 部屋の特徴
- バルコニー、二階以上写真を送ってほしい
- 共用部
- エレベーター、宅配ボックス、駐輪場、バイク置場
- その他の特徴
- 分譲賃貸、家賃保証付き、公営水道、下水、都市ガス
無料で10秒! カンタンお問い合わせ

パティオ神田
同じ建物で掲載中の物件 (1件)
当物件は「住まいのリライフ」で取り扱っております。リライフは首都圏24店舗のネットワークで豊富な物件情報をお客様へご提供します。当物件に類似した未公開物件なども合わせてご提案可能です。お気軽にお問合せください。違約金有:1年未満:総賃料2ヶ月 2年未満:総賃料1ヶ月分
- 駐車/駐輪
- 空無 / あり駐車可能な車種や台数を知りたい
- 入居時期
- 損保
- 住宅保険: 要
- 保証人代行
- 加入要 費用: 初回保証料:100%1年毎に1.5万円月額:440円
- その他費用
初期費用を知りたい鍵交換費用:22,000円
24時間管理(月額):550円
決済サービス(月額):440円
- 情報
情報登録日:2025/11/17
情報更新日:2026/2/5
次回更新予定日:2026/2/12
- 備考
- 現況: 空家 更新料: 新賃料の1.0ヶ月分 契約期間: 2年 総戸数: 71戸 自社管理番号: B9740R451305
- 取扱い会社
- 株式会社 リライフ 浅草橋店条件が近い物件も紹介してほしい
- 免許番号
- 国土交通大臣(1)第10792号
- 取引態様
- 仲介
- 所在地
- 東京都台東区柳橋1-13-5 大島屋浅草橋ビル2階
- 電話番号
- 03-6756-7471
- 営業時間
- 10:00~20:00
- 定休日
- なし ※年末年始休業(12/27~1/4)
- 所属団体名
- 公益社団法⼈東京都宅地建物取引業協会、公益社団法⼈全国宅地建物取引業保証協会
おすすめ物件 (20件)
ルフォンプログレ神田プレミア


エスティメゾン神田


アーバネックス千代田淡路町


KDXレジデンス神田


東神田テラスレジデンス


パークアクシス小伝馬町


エルスタンザ神田須田町(ELSTANZA神田須田町)
千代田区鍛冶町2丁目 10階建 2015年築


サイプレス日本橋本町
アルティオドマーニ(Artio Domani)
千代田区 15階建 2003年築


Artio Domani (アルティオドマーニ)


アクサス大手町ラクシーズ
パークキューブ神田


ディームス大手町ノース


パークホームズ千代田淡路町


パークアクシス神田レジデンス


コンフォリア秋葉原イースト


クレイシア秋葉原ラグゼスウィート


レジディア神田


ルフォンプログレ神田プレミア


エスティメゾン神田


アーバネックス千代田淡路町


KDXレジデンス神田


東神田テラスレジデンス


パークアクシス小伝馬町


エルスタンザ神田須田町(ELSTANZA神田須田町)
千代田区鍛冶町2丁目 10階建 2015年築


サイプレス日本橋本町
アルティオドマーニ(Artio Domani)
千代田区 15階建 2003年築


Artio Domani (アルティオドマーニ)


アクサス大手町ラクシーズ
パークキューブ神田


ディームス大手町ノース


パークホームズ千代田淡路町


パークアクシス神田レジデンス


コンフォリア秋葉原イースト


クレイシア秋葉原ラグゼスウィート


レジディア神田


























