中央区 13階建 2003年築1K/3階(東京都中央区 / 馬喰横山駅)の賃貸
1/7
1/7
11.3万円
初期費用を知りたい管理費11,000円
- 敷金
- 無料
- 保証金
- なし
- 礼金
- 11.3万円
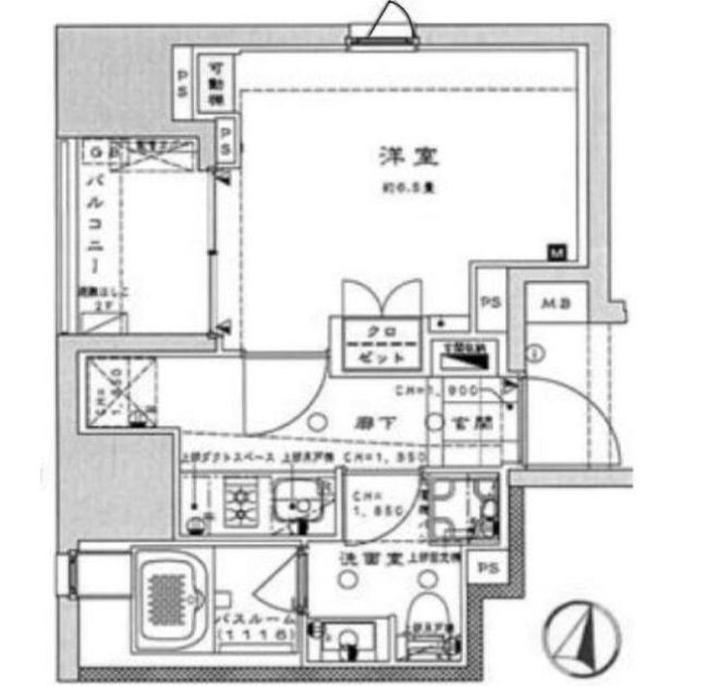
- 広さ
- 21.6㎡
- 階数
- 3階 / 13階建
- 間取り
- 1K
- 建物
- マンション (鉄骨鉄筋)
- 築年数
- 築23年
- 向き
- 南東
- 交通
- 都営新宿線 / 馬喰横山駅徒歩3分
- 東京メトロ日比谷線 / 小伝馬町駅徒歩4分
- 住所
- 東京都中央区日本橋大伝馬町
コンビニエンスストア 156m
スーパーマーケット 137m
総合病院 1182m
公園 1082m
ドラッグストア 289m
銀行 184m
ポニークリーニング鞍掛橋店 208m
無料で10秒! カンタンお問い合わせ

中央区 13階建 2003年築
敷
無料礼
11.3万円特徴
バス・トイレ別
2階以上
エアコン付き
ペット相談可
駐車場あり
室内洗濯機置場
オートロック
洗面所独立
- 入居条件
- 保証人不要、初期費用カード決済可最新の空室状況が知りたい
- バス・トイレ
- バストイレ別、温水洗浄便座、専用バス、専用トイレ
- キッチン
- ガスコンロ対応、1口コンロ
- セキュリティ
- オートロック、防犯カメラ
- 室内設備
- 室内洗濯置、フローリング、家具・家電付、ネット使用料不要、インターネット対応、エアコン、クロゼット、シューズボックスお部屋の詳しい情報を知りたい
- 部屋の特徴
- バルコニー、角住戸、二階以上写真を送ってほしい
- 共用部
- エレベーター、宅配ボックス、駐輪場
- その他の特徴
- 分譲賃貸、公営水道、下水、都市ガス、定期借家
無料で10秒! カンタンお問い合わせ

中央区 13階建 2003年築
敷
無料礼
11.3万円同じ建物で掲載中の物件 (10件)
不動産会社からのコメント
当物件はオンラインまたはお近くの店舗でご相談お申込を承ります
当物件はオンラインまたはお近くの店舗でご相談お申込を承ります。リライフは首都圏23店舗のネットワークで豊富な物件情報をご提供いたします。当物件に類似した未公開物件のご提案も可能です。お気軽にお問い合わせください。違約金有:短期解約違約金有
その他
- 駐車/駐輪
- 無 / あり駐車可能な車種や台数を知りたい
- 入居時期
- 2026年6月下旬最新の空室状況が知りたい
- 損保
- 住宅保険: 要
- 保証人代行
- 加入要 費用: 詳細はお問い合わせくださいませ。
- その他費用
初期費用を知りたい事務手数料(初回のみ):22,000円
リブクラブ(月額):2,200円
SBI少額短期保険(月額):800円
鍵交換費用:16,500円
室内清掃費用:55,000円
- 情報
情報登録日:2026/1/27
情報更新日:2026/5/12
次回更新予定日:2026/5/19
- 備考
- 現況: 居住中 更新料: 新賃料の1.0ヶ月分 契約期間: 2年 ※定期借家 総戸数: 80戸 自社管理番号: B9291R404859
取扱い会社
- 取扱い会社
- 株式会社 リライフ 浅草橋店条件が近い物件も紹介してほしい
- 免許番号
- 国土交通大臣(1)第10792号
- 取引態様
- 仲介
- 所在地
- 東京都台東区柳橋1-13-5 大島屋浅草橋ビル2階
- 電話番号
- 03-6756-7471
- 営業時間
- 10:00~18:30
- 定休日
- 毎週火・水曜日
- 所属団体名
- 公益社団法⼈東京都宅地建物取引業協会、公益社団法⼈全国宅地建物取引業保証協会
おすすめ物件 (17件)
賃貸マンション
HOPE CITY 秋葉原
東京メトロ日比谷線 / 小伝馬町駅 徒歩6分
築19年 / 15階建
東京都千代田区岩本町3丁目
11.2万円 / 管理費7,000円
敷
11.2万円礼
無料1K / 22.96㎡ / 15階
賃貸マンション
日本橋ファーストレジデンス
都営新宿線 / 馬喰横山駅 徒歩5分
築21年 / 13階建
東京都中央区日本橋富沢町10-2
13.2万円 / 管理費6,000円
敷
13.2万円礼
26.4万円ワンルーム / 28.23㎡ / 8階
賃貸マンション
レジディア三越前

東京メトロ日比谷線 / 小伝馬町駅 徒歩4分
築21年 / 15階建
東京都中央区日本橋本町3丁目

11万円 / 管理費15,000円
敷
無料礼
無料ワンルーム / 18.66㎡ / 9階
賃貸マンション
コスモリード人形町
都営新宿線 / 馬喰横山駅 徒歩7分
築24年 / 10階建
東京都中央区日本橋富沢町5-10
11.9万円 / 管理費7,000円
敷
11.9万円礼
11.9万円1K / 20.31㎡ / 5階
賃貸マンション
ルクレ日本橋馬喰町
都営新宿線 / 馬喰横山駅 徒歩3分
築20年 / 12階建
東京都中央区日本橋馬喰町1丁目4-2
家賃カード決済可
12.6万円 / 管理費10,000円
敷
無料礼
無料1K / 25.13㎡ / 5階
賃貸マンション
N35EAST
東京メトロ日比谷線 / 小伝馬町駅 徒歩4分
築21年 / 13階建
東京都千代田区岩本町2
12.3万円 / 管理費なし
敷
12.3万円礼
24.6万円ワンルーム / 24.49㎡ / 3階
賃貸マンション
都営浅草線 人形町駅 13階建 築22年
都営新宿線 / 馬喰横山駅 徒歩5分
築21年 / 13階建
東京都中央区日本橋富沢町
13.2万円 / 管理費6,000円
敷
13.2万円礼
26.4万円1K / 28.23㎡ / 8階
賃貸マンション
トーシンフェニックス日本橋イースト
都営新宿線 / 馬喰横山駅 徒歩4分
築24年 / 11階建
東京都中央区日本橋富沢町
9.3万円 / 管理費7,000円
敷
9.3万円礼
9.3万円1K / 20.72㎡ / 9階
賃貸マンション
東京メトロ日比谷線 小伝馬町駅 7階建 築12年
東京メトロ日比谷線 / 小伝馬町駅 徒歩3分
築11年 / 7階建
東京都中央区日本橋堀留町1
12.8万円 / 管理費8,000円
敷
12.8万円礼
25.6万円1K / 25.17㎡ / 4階
賃貸マンション
中央区 13階建 2003年築

都営新宿線 / 馬喰横山駅 徒歩3分
築23年 / 13階建
東京都中央区日本橋大伝馬町

11.6万円 / 管理費11,000円
敷
無料礼
11.6万円1K / 22.4㎡ / 6階
賃貸マンション
ファミール日本橋ブルー・クレール

東京メトロ日比谷線 / 小伝馬町駅 徒歩2分
築22年 / 13階建
東京都中央区日本橋大伝馬町14-21

12.5万円 / 管理費なし
敷
12.5万円礼
12.5万円1K / 28㎡ / 5階
賃貸マンション
月村マンションナンバー30
都営新宿線 / 馬喰横山駅 徒歩4分
築22年 / 10階建
東京都中央区日本橋大伝馬町12-17
11.9万円 / 管理費5,000円
敷
11.9万円礼
11.9万円1K / 27.8㎡ / 3階
賃貸マンション
中央区 11階建 2004年築

東京メトロ日比谷線 / 小伝馬町駅 徒歩7分
築22年 / 11階建
東京都中央区東日本橋3丁目5-13

10.6万円 / 管理費11,000円
敷
無料礼
10.6万円1K / 19.9㎡ / 10階
賃貸マンション
サンクレストビル
)
都営新宿線 / 馬喰横山駅 徒歩3分
築40年 / 10階建
東京都中央区日本橋大伝馬町12-16
)
10.3万円 / 管理費5,500円
敷
5.15万円礼
15.45万円ワンルーム / 22.83㎡ / 5階
賃貸マンション
中央区日本橋馬喰町 10階建 2019年築
)
都営新宿線 / 馬喰横山駅 徒歩2分
築7年 / 10階建
東京都中央区日本橋馬喰町1丁目
)
12.5万円 / 管理費15,000円
敷
無料礼
12.5万円1K / 25.38㎡ / 9階
賃貸マンション
メインステージ日本橋馬喰町駅前
)
都営新宿線 / 馬喰横山駅 徒歩5分
築22年 / 12階建
東京都中央区日本橋馬喰町1丁目
)
10.6万円 / 管理費15,000円
敷
無料礼
無料1K / 21.69㎡ / 9階
賃貸マンション
スカイコート浅草柳橋
)
都営新宿線 / 馬喰横山駅 徒歩6分
築22年 / 11階建
東京都台東区柳橋1丁目
)
9.9万円 / 管理費12,000円
敷
9.9万円礼
無料1K / 24.82㎡ / 4階
賃貸マンション
HOPE CITY 秋葉原
東京メトロ日比谷線 / 小伝馬町駅 徒歩6分
築19年 / 15階建
東京都千代田区岩本町3丁目
11.2万円 / 管理費7,000円
敷
11.2万円礼
無料1K / 22.96㎡ / 15階
賃貸マンション
日本橋ファーストレジデンス
都営新宿線 / 馬喰横山駅 徒歩5分
築21年 / 13階建
東京都中央区日本橋富沢町10-2
13.2万円 / 管理費6,000円
敷
13.2万円礼
26.4万円ワンルーム / 28.23㎡ / 8階
賃貸マンション
レジディア三越前

東京メトロ日比谷線 / 小伝馬町駅 徒歩4分
築21年 / 15階建
東京都中央区日本橋本町3丁目

11万円 / 管理費15,000円
敷
無料礼
無料ワンルーム / 18.66㎡ / 9階
賃貸マンション
コスモリード人形町
都営新宿線 / 馬喰横山駅 徒歩7分
築24年 / 10階建
東京都中央区日本橋富沢町5-10
11.9万円 / 管理費7,000円
敷
11.9万円礼
11.9万円1K / 20.31㎡ / 5階
賃貸マンション
ルクレ日本橋馬喰町
都営新宿線 / 馬喰横山駅 徒歩3分
築20年 / 12階建
東京都中央区日本橋馬喰町1丁目4-2
家賃カード決済可
12.6万円 / 管理費10,000円
敷
無料礼
無料1K / 25.13㎡ / 5階
賃貸マンション
N35EAST
東京メトロ日比谷線 / 小伝馬町駅 徒歩4分
築21年 / 13階建
東京都千代田区岩本町2
12.3万円 / 管理費なし
敷
12.3万円礼
24.6万円ワンルーム / 24.49㎡ / 3階
賃貸マンション
都営浅草線 人形町駅 13階建 築22年
都営新宿線 / 馬喰横山駅 徒歩5分
築21年 / 13階建
東京都中央区日本橋富沢町
13.2万円 / 管理費6,000円
敷
13.2万円礼
26.4万円1K / 28.23㎡ / 8階
賃貸マンション
トーシンフェニックス日本橋イースト
都営新宿線 / 馬喰横山駅 徒歩4分
築24年 / 11階建
東京都中央区日本橋富沢町
9.3万円 / 管理費7,000円
敷
9.3万円礼
9.3万円1K / 20.72㎡ / 9階
賃貸マンション
東京メトロ日比谷線 小伝馬町駅 7階建 築12年
東京メトロ日比谷線 / 小伝馬町駅 徒歩3分
築11年 / 7階建
東京都中央区日本橋堀留町1
12.8万円 / 管理費8,000円
敷
12.8万円礼
25.6万円1K / 25.17㎡ / 4階
賃貸マンション
中央区 13階建 2003年築

都営新宿線 / 馬喰横山駅 徒歩3分
築23年 / 13階建
東京都中央区日本橋大伝馬町

11.6万円 / 管理費11,000円
敷
無料礼
11.6万円1K / 22.4㎡ / 6階
賃貸マンション
ファミール日本橋ブルー・クレール

東京メトロ日比谷線 / 小伝馬町駅 徒歩2分
築22年 / 13階建
東京都中央区日本橋大伝馬町14-21

12.5万円 / 管理費なし
敷
12.5万円礼
12.5万円1K / 28㎡ / 5階
賃貸マンション
月村マンションナンバー30
都営新宿線 / 馬喰横山駅 徒歩4分
築22年 / 10階建
東京都中央区日本橋大伝馬町12-17
11.9万円 / 管理費5,000円
敷
11.9万円礼
11.9万円1K / 27.8㎡ / 3階
賃貸マンション
中央区 11階建 2004年築

東京メトロ日比谷線 / 小伝馬町駅 徒歩7分
築22年 / 11階建
東京都中央区東日本橋3丁目5-13

10.6万円 / 管理費11,000円
敷
無料礼
10.6万円1K / 19.9㎡ / 10階
賃貸マンション
サンクレストビル
)
都営新宿線 / 馬喰横山駅 徒歩3分
築40年 / 10階建
東京都中央区日本橋大伝馬町12-16
)
10.3万円 / 管理費5,500円
敷
5.15万円礼
15.45万円ワンルーム / 22.83㎡ / 5階
賃貸マンション
中央区日本橋馬喰町 10階建 2019年築
)
都営新宿線 / 馬喰横山駅 徒歩2分
築7年 / 10階建
東京都中央区日本橋馬喰町1丁目
)
12.5万円 / 管理費15,000円
敷
無料礼
12.5万円1K / 25.38㎡ / 9階
賃貸マンション
メインステージ日本橋馬喰町駅前
)
都営新宿線 / 馬喰横山駅 徒歩5分
築22年 / 12階建
東京都中央区日本橋馬喰町1丁目
)
10.6万円 / 管理費15,000円
敷
無料礼
無料1K / 21.69㎡ / 9階
賃貸マンション
スカイコート浅草柳橋
)
都営新宿線 / 馬喰横山駅 徒歩6分
築22年 / 11階建
東京都台東区柳橋1丁目
)
9.9万円 / 管理費12,000円
敷
9.9万円礼
無料1K / 24.82㎡ / 4階















