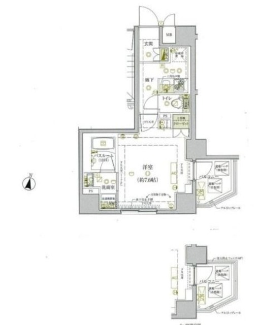
グランフォース北綾瀬1K/2階/214(東京都足立区 / 北綾瀬駅)の賃貸
1/23
1/23
8万円
初期費用を知りたい管理費10,000円
- 敷金
- 8万円
- 保証金
- なし
- 礼金
- 8万円
- 広さ
- 25.05㎡
- 階数
- 2階 / 10階建
- 間取り
- 1K
- 建物
- マンション (鉄筋コンクリート)
- 築年数
- 築9年
- 向き
- 東
- 交通
- 東京メトロ千代田線 / 北綾瀬駅徒歩5分
- つくばエクスプレス / 青井駅徒歩20分
- 常磐線 / 綾瀬駅徒歩20分
- 住所
- 東京都足立区谷中1丁目7-10
ワイズマート 北綾瀬店 481m
セブンイレブン足立東綾瀬公園店 291m
ドラッグセイムス加平店 285m
すし銚子丸綾瀬店 250m
綾瀬循環器病院 494m
足立谷中郵便局 543m
無料で10秒! カンタンお問い合わせ

グランフォース北綾瀬
敷
8万円礼
8万円特徴
バス・トイレ別
2階以上
エアコン付き
ペット相談可
駐車場あり
室内洗濯機置場
オートロック
洗面所独立
- バス・トイレ
- シャワー、給湯、洗面台、バストイレ別、浴室乾燥機、温水洗浄便座、洗面所独立
- キッチン
- ガスコンロ対応、2口コンロ、システムキッチン
- セキュリティ
- 防犯カメラ、ディンプルキー、オートロック
- 室内設備
- CS、インターネット対応、BS、エアコン、室内洗濯置、フローリングお部屋の詳しい情報を知りたい
- 部屋の特徴
- 二階以上、バルコニー写真を送ってほしい
- 共用部
- 宅配ボックス、エレベーター、駐輪場
- その他の特徴
- 駐車場あり、都市ガス、公営水道、下水、外壁タイル張り、分譲賃貸
無料で10秒! カンタンお問い合わせ

グランフォース北綾瀬
敷
8万円礼
8万円不動産会社からのコメント
MEIKOライフサポート倶楽部 3300円月額 付帯保険付き/24時間安心サポート料 16500円/2年毎/退去時清掃費56540円/更新事務手数料新賃料0.55ヶ月分/短期解約違約金 契約開始日から1年未満の解約申し入れの場合は1ヶ月分賃料及び管理費相当額/鍵交換代借主負担/駐輪場代借主負担(使用時)/口座振替手数料借主負担
その他
- 駐車/駐輪
- 近隣 費用: 13,750円(税込) 距離: 383m / あり駐車可能な車種や台数を知りたい
- 入居時期
- 2026年5月下旬最新の空室状況が知りたい
- 損保
- 住宅保険: 要
- 保証人代行
- 保証人代行: 必須 保証人代行会社: その他 初回:賃料等の50%、更新料:15000円/1年毎、毎月:賃料等の1.3%
- その他費用
初期費用を知りたい鍵交換費:49,500円
契約事務手数料:16,500円
- 情報
情報登録日:2026/3/19
情報更新日:2026/4/30
次回更新予定日:2026/5/21
- 備考
- 償却金: 賃料の1.0ヶ月分(退去時) 契約期間: 2年
取扱い会社
- 取扱い会社
- アエラス松戸店 (株式会社アエラス)条件が近い物件も紹介してほしい
- 免許番号
- 国土交通大臣(3)第8522号
- 取引態様
- 仲介
- 所在地
- 千葉県松戸市松戸1286-2 エムクレスタ 1階
- 電話番号
- 047-362-8811
- 営業時間
- 10:00~19:00
- 定休日
- 第1・2水曜日
- 所属団体名
- 全日本不動産協会
おすすめ物件 (20件)
賃貸マンション
クレヴィスタ北綾瀬

東京メトロ千代田線 / 北綾瀬駅 徒歩8分
築9年 / 9階建
東京都足立区綾瀬7丁目

9.3万円 / 管理費11,000円
敷
無料礼
9.3万円1K / 21.94㎡ / 6階
賃貸マンション
ラフィスタ北綾瀬
東京メトロ千代田線 / 北綾瀬駅 徒歩8分
築6年 / 9階建
東京都足立区谷中3丁目10-4
10万円 / 管理費15,000円
敷
10万円礼
10万円1DK / 26.45㎡ / 2階
賃貸マンション
Dear court 幸
東京メトロ千代田線 / 北綾瀬駅 徒歩17分
築9年 / 5階建
東京都足立区東和3
家賃カード決済可
10万円 / 管理費11,000円
敷
無料礼
10万円1K / 30.13㎡ / 3階
賃貸マンション
RIVER STONE
東京メトロ千代田線 / 北綾瀬駅 徒歩9分
築7年 / 7階建
東京都足立区綾瀬7
家賃カード決済可
9.5万円 / 管理費7,000円
敷
無料礼
9.5万円1K / 29.08㎡ / 7階
賃貸アパート
ハーモニーテラス青井VII

つくばエクスプレス / 青井駅 徒歩14分
築5年 / 3階建
東京都足立区青井1丁目

6.5万円 / 管理費4,000円
敷
無料礼
6.5万円1K / 20.16㎡ / 2階
賃貸マンション
ユリカロゼAZ亀有

東京メトロ千代田線 / 綾瀬駅 徒歩22分
築2年 / 5階建
東京都葛飾区西亀有4丁目

8.2万円 / 管理費15,000円
敷
無料礼
8.2万円ワンルーム / 20.88㎡ / 2階
賃貸マンション
グランフォース北綾瀬

東京メトロ千代田線 / 北綾瀬駅 徒歩6分
築9年 / 10階建
東京都足立区谷中1丁目7-10

9.5万円 / 管理費9,000円
敷
9.5万円礼
9.5万円1K / 25.01㎡ / 10階
賃貸マンション
エルスタンザ綾瀬1丁目

東京メトロ千代田線 / 綾瀬駅 徒歩9分
築9年 / 3階建
東京都足立区綾瀬1丁目6-7

8.9万円 / 管理費4,000円
敷
8.9万円礼
8.9万円1K / 23.18㎡ / 2階
賃貸マンション
HY´s綾瀬Ⅱ

東京メトロ千代田線 / 北綾瀬駅 徒歩10分
築2年 / 12階建
東京都葛飾区堀切8丁目1-2

8.8万円 / 管理費15,000円
敷
無料礼
8.8万円1K / 21.02㎡ / 9階
賃貸アパート
レガーロ・U

東京メトロ千代田線 / 北綾瀬駅 徒歩19分
築6年 / 3階建
東京都足立区東和4丁目

家賃カード決済可
9.8万円 / 管理費12,000円
敷
無料礼
9.8万円1DK / 33㎡ / 3階
賃貸マンション
クレヴィスタ北綾瀬

東京メトロ千代田線 / 北綾瀬駅 徒歩8分
築9年 / 9階建
東京都足立区綾瀬7丁目

9.3万円 / 管理費11,000円
敷
無料礼
9.3万円1K / 21.94㎡ / 6階
賃貸マンション
ラフィスタ北綾瀬
東京メトロ千代田線 / 北綾瀬駅 徒歩8分
築6年 / 9階建
東京都足立区谷中3丁目10-4
10万円 / 管理費15,000円
敷
10万円礼
10万円1DK / 26.45㎡ / 2階
賃貸マンション
Dear court 幸
東京メトロ千代田線 / 北綾瀬駅 徒歩17分
築9年 / 5階建
東京都足立区東和3
家賃カード決済可
10万円 / 管理費11,000円
敷
無料礼
10万円1K / 30.13㎡ / 3階
賃貸マンション
RIVER STONE
東京メトロ千代田線 / 北綾瀬駅 徒歩9分
築7年 / 7階建
東京都足立区綾瀬7
家賃カード決済可
9.5万円 / 管理費7,000円
敷
無料礼
9.5万円1K / 29.08㎡ / 7階
賃貸アパート
ハーモニーテラス青井VII

つくばエクスプレス / 青井駅 徒歩14分
築5年 / 3階建
東京都足立区青井1丁目

6.5万円 / 管理費4,000円
敷
無料礼
6.5万円1K / 20.16㎡ / 2階
賃貸マンション
ユリカロゼAZ亀有

東京メトロ千代田線 / 綾瀬駅 徒歩22分
築2年 / 5階建
東京都葛飾区西亀有4丁目

8.2万円 / 管理費15,000円
敷
無料礼
8.2万円ワンルーム / 20.88㎡ / 2階
賃貸マンション
グランフォース北綾瀬

東京メトロ千代田線 / 北綾瀬駅 徒歩6分
築9年 / 10階建
東京都足立区谷中1丁目7-10

9.5万円 / 管理費9,000円
敷
9.5万円礼
9.5万円1K / 25.01㎡ / 10階
賃貸マンション
エルスタンザ綾瀬1丁目

東京メトロ千代田線 / 綾瀬駅 徒歩9分
築9年 / 3階建
東京都足立区綾瀬1丁目6-7

8.9万円 / 管理費4,000円
敷
8.9万円礼
8.9万円1K / 23.18㎡ / 2階
賃貸マンション
HY´s綾瀬Ⅱ

東京メトロ千代田線 / 北綾瀬駅 徒歩10分
築2年 / 12階建
東京都葛飾区堀切8丁目1-2

8.8万円 / 管理費15,000円
敷
無料礼
8.8万円1K / 21.02㎡ / 9階
賃貸アパート
レガーロ・U

東京メトロ千代田線 / 北綾瀬駅 徒歩19分
築6年 / 3階建
東京都足立区東和4丁目

家賃カード決済可
9.8万円 / 管理費12,000円
敷
無料礼
9.8万円1DK / 33㎡ / 3階






































