MAXIV CITY大阪吹田1LDK/4階(大阪府吹田市 / 吹田駅)の賃貸
1/30
1/30
7.3万円
初期費用を知りたい管理費4,000円
- 敷金
- 無料
- 保証金
- なし
- 礼金
- 7.3万円
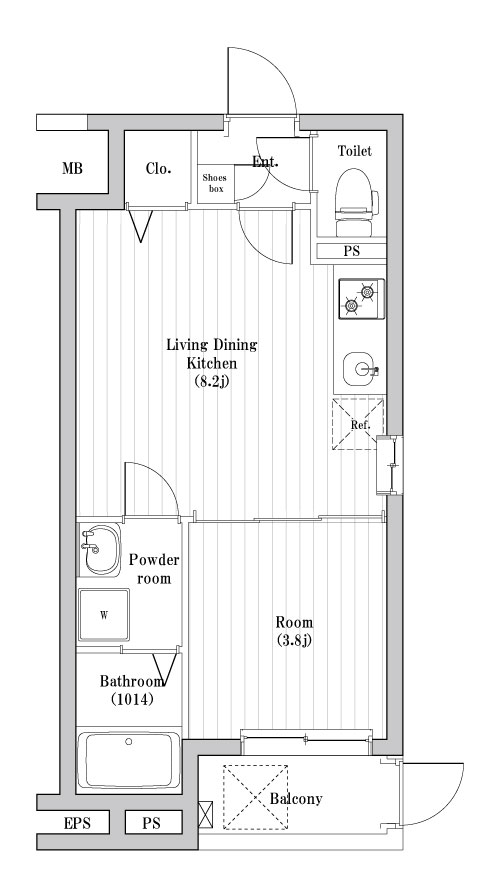
- 広さ
- 27.99㎡
- 階数
- 4階 / 4階建
- 間取り
- 1LDK
- 建物
- マンション (鉄骨)
- 築年数
- 新築
- 向き
- 南
- 交通
- 阪急千里線 / 吹田駅徒歩10分
- 東海道本線 / 吹田駅徒歩15分
- 住所
- 大阪府吹田市内本町3丁目
コンビニエンスストア 500m
スーパーマーケット 100m
公園 700m
商店街 1200m
ライフ 吹田泉町店 1000m
無料で10秒! カンタンお問い合わせ

MAXIV CITY大阪吹田
敷
無料礼
7.3万円特徴
バス・トイレ別
2階以上
エアコン付き
ペット相談可
駐車場あり
室内洗濯機置場
オートロック
洗面所独立
- 入居条件
- 二人入居可、保証人不要、初期費用カード決済可、敷金不要、即入居可最新の空室状況が知りたい
- バス・トイレ
- 専用バス、専用トイレ、バストイレ別、給湯、シャワー付洗面化粧台、温水洗浄便座、浴室乾燥機、洗面所独立
- キッチン
- ガスコンロ対応、2口コンロ、システムキッチン
- セキュリティ
- オートロック、防犯カメラ
- 室内設備
- エアコン、室内洗濯置、CS、BS、フローリング、インターネット対応、ネット使用料不要、全居室収納、クロゼット、シューズボックスお部屋の詳しい情報を知りたい
- 部屋の特徴
- バルコニー、二階以上、最上階写真を送ってほしい
- 共用部
- 宅配ボックス、駐輪場、バイク置場、敷地内駐車場
- その他の特徴
- 公営水道、都市ガス、下水、外壁タイル張り、駐車場あり
無料で10秒! カンタンお問い合わせ

MAXIV CITY大阪吹田
敷
無料礼
7.3万円同じ建物で掲載中の物件 (7件)
不動産会社からのコメント
吹田駅利用可能 インターネット無料です!
大阪府内全域、経験豊富なスタッフがご対応させて頂きます。 尚、弊社ではおとり広告は一切おこなっておりません。 お問い合わせ頂いた物件は勿論のこと、インターネットに掲載していないオススメ物件多数ございます。 当店では、スマホでカンタン・おトクにお支払いができるPayPayアプリや全物件ポイント・マイルが貯まるクレジットカード決済が可能です。 また、分割支払いも可能です。お気軽にお申し付け下さいませ。
その他
- 駐車/駐輪
- 空有 費用: 14,300円 税: 税込み / あり駐車可能な車種や台数を知りたい
- 入居時期
- 損保
- 住宅保険: 要
- 保証人代行
- 加入要 費用: 都度、お問い合わせください。 都度、お問い合わせください。
- その他費用
- 情報
情報登録日:2025/12/7
情報更新日:2025/12/12
次回更新予定日:2025/12/20
提供元:LIFULL HOME'S
- 備考
- 現況: 空家 状態: 未入居 契約期間: 2年 管理人: 巡回 LIFULL HOME'S物件番号: 1556910010896
取扱い会社
- 取扱い会社
- 株式会社アフロ 新大阪店条件が近い物件も紹介してほしい
- 免許番号
- 大阪府知事免許(3)第058557号
- 取引態様
- 一般媒介
- 所在地
- 大阪府大阪市淀川区西中島7丁目6-12
- 電話番号
- 06-6195-4440
- 営業時間
- 10:00~19:00
- 定休日
- 年末年始
- 所属団体名
- (公社)近畿地区不動産公正取引協議会,(公社)全日本不動産協会大阪府本部,(公社)全日本不動産協会,(公社)近畿圏不動産流通機構
おすすめ物件 (20件)
賃貸マンション
Lexella西吹田 ~レクセラ西吹田~

阪急千里線 / 吹田駅 徒歩11分
築8年 / 10階建
大阪府吹田市穂波町15番11号

6.8万円 / 管理費6,000円
敷
6.8万円礼
13.6万円1DK / 27.2㎡ / 6階
賃貸マンション
リアコート下新庄

阪急千里線 / 吹田駅 徒歩25分
築5年 / 3階建
大阪府大阪市東淀川区下新庄5丁目

7.5万円 / 管理費11,000円
敷
無料礼
7.5万円1K / 23.42㎡ / 2階
賃貸マンション
ORACION吹田(オラシオンスイタ)

阪急千里線 / 吹田駅 徒歩3分
築15年 / 9階建
大阪府吹田市寿町1丁目

7.7万円 / 管理費7,000円
敷
10万円礼
20万円1LDK / 34.6㎡ / 6階
賃貸マンション
第18関根マンション

阪急千里線 / 吹田駅 徒歩5分
築18年 / 10階建
大阪府吹田市泉町1丁目23-17

7.2万円 / 管理費7,700円
敷
5万円礼
25万円1DK / 33.78㎡ / 7階
賃貸マンション
V-Rencontre Suita

阪急千里線 / 吹田駅 徒歩15分
築4年 / 9階建
大阪府吹田市南金田1丁目

8.3万円 / 管理費8,000円
敷
無料礼
8.3万円1LDK / 30㎡ / 8階
賃貸マンション
Lexella西吹田 ~レクセラ西吹田~

阪急千里線 / 吹田駅 徒歩11分
築8年 / 10階建
大阪府吹田市穂波町15番11号

6.8万円 / 管理費6,000円
敷
6.8万円礼
13.6万円1DK / 27.2㎡ / 6階
賃貸マンション
リアコート下新庄

阪急千里線 / 吹田駅 徒歩25分
築5年 / 3階建
大阪府大阪市東淀川区下新庄5丁目

7.5万円 / 管理費11,000円
敷
無料礼
7.5万円1K / 23.42㎡ / 2階
賃貸マンション
ORACION吹田(オラシオンスイタ)

阪急千里線 / 吹田駅 徒歩3分
築15年 / 9階建
大阪府吹田市寿町1丁目

7.7万円 / 管理費7,000円
敷
10万円礼
20万円1LDK / 34.6㎡ / 6階
賃貸マンション
第18関根マンション

阪急千里線 / 吹田駅 徒歩5分
築18年 / 10階建
大阪府吹田市泉町1丁目23-17

7.2万円 / 管理費7,700円
敷
5万円礼
25万円1DK / 33.78㎡ / 7階
賃貸マンション
V-Rencontre Suita

阪急千里線 / 吹田駅 徒歩15分
築4年 / 9階建
大阪府吹田市南金田1丁目

8.3万円 / 管理費8,000円
敷
無料礼
8.3万円1LDK / 30㎡ / 8階
同じ最寄り駅 × 同じ特徴 で探す
同じ市区町村 × 同じ特徴 で探す


































































