東急大井町線 九品仏駅 2階建 築35年2DK/2階(東京都世田谷区 / 九品仏駅)の賃貸
1/20
1/20
17万円
初期費用を知りたい管理費5,200円
- 敷金
- 17万円
- 保証金
- なし
- 礼金
- 17万円
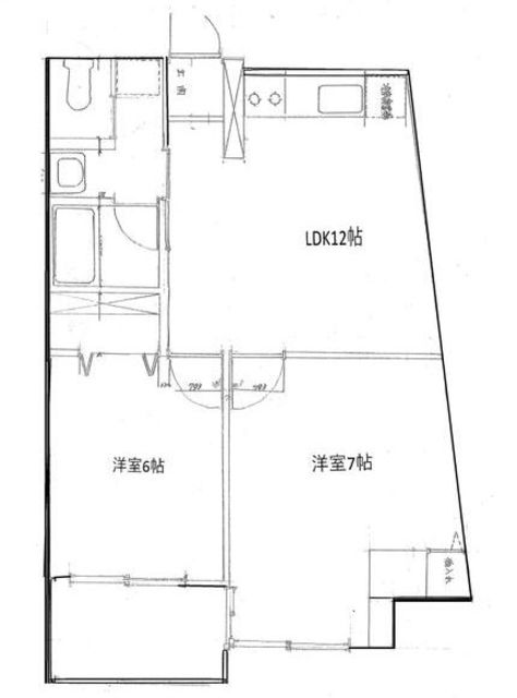
- 広さ
- 51.37㎡
- 階数
- 2階 / 2階建
- 間取り
- 2DK
- 建物
- マンション (気泡コン)
- 築年数
- 築35年
- 向き
- 南
- 交通
- 東急大井町線 / 九品仏駅徒歩5分
- 東急大井町線 / 尾山台駅徒歩9分
- 東急東横線 / 自由が丘駅徒歩12分
- 住所
- 東京都世田谷区奥沢7
世田谷区立九品仏小学校(小学校)まで462m
世田谷区立八幡中学校(中学校)まで884m
産業能率大学自由が丘キャンパス(大学・短大)まで1008m
成城石井 九品仏店(スーパー)まで396m
ファミリーマート 奥沢七丁目店(コンビニ)まで580m
オオゼキ 尾山台店(スーパー)まで618m
無料で10秒! カンタンお問い合わせ
東急大井町線 九品仏駅 2階建 築35年
敷
17万円礼
17万円特徴
バス・トイレ別
2階以上
エアコン付き
ペット相談可
駐車場あり
室内洗濯機置場
オートロック
洗面所独立
- 入居条件
- 保証人不要最新の空室状況が知りたい
- バス・トイレ
- バストイレ別、洗面所独立
- キッチン
- ガスコンロ対応、システムキッチン
- セキュリティ
- 防犯カメラ
- 室内設備
- エアコン、クロゼット、フローリング、室内洗濯置、シューズボックス、CATV、ネット専用回線、ネット使用料不要、BSお部屋の詳しい情報を知りたい
- 部屋の特徴
- バルコニー、二階以上、最上階写真を送ってほしい
- 共用部
- 駐輪場、宅配ボックス
- その他の特徴
- 都市ガス、駐車場あり
無料で10秒! カンタンお問い合わせ
東急大井町線 九品仏駅 2階建 築35年
敷
17万円礼
17万円同じ建物で掲載中の物件 (1件)
不動産会社からのコメント
当社旭化成正規代理店のため仲介手数料0.55ヶ月分です♪
敷地内駐車場空き有(要別途契約)♪定員3名様迄♪お子様相談可能♪来客時も安心のTVモニターフォン付き♪嬉しい無料ネット付き♪朝の支度に便利な独立洗面台♪自転車駐輪可能♪ガスコンロ設置可能♪
その他
- 駐車/駐輪
- 敷地内25300円 / あり駐車可能な車種や台数を知りたい
- 入居時期
- 損保
- 1.84万円2年
- 保証人代行
- -
- その他費用
合計4.33万円(内訳:マイコンシェルクラブ1.8万円 鍵交換代2.53万円) 初期費用を知りたい- 情報
情報登録日:2026/4/19
情報更新日:2026/4/24
次回更新予定日:2026/5/10
- 備考
- 契約期間: 普通借家 2年 保証会社: 保証会社利用必 初回保証料:賃料総額の50% 継続保証料:20000円/2年 その他:★当社は旭化成ヘーベルメゾンの正規代理店です★当社がお申込み窓口になりますので諸条件等ご不安な事はお気軽にお問合せください★退去時、ルームクリーニング費用71500円(税込)。 / 条件: 二人入居可/子供可 / ほか初期費用: 合計4.33万円(内訳:マイコンシェルクラブ1.8万円 鍵交換代2.53万円) / ほか諸費用: 更新料 新賃料1.00ヶ月分
取扱い会社
- 取扱い会社
- 株式会社ファニーホーム 中目黒店条件が近い物件も紹介してほしい
- 免許番号
- 東京都知事(1)第103922号
- 取引態様
- 一般媒介
- 所在地
- 東京都目黒区上目黒2-6-9-2階
- 電話番号
- 03-6712-2182
- 営業時間
- 10:00~19:00
- 定休日
- 無(年末年始・夏季休暇・GW)
- 所属団体名
- (公社)東京都宅地建物取引業協会
おすすめ物件 (4件)
賃貸アパート
深沢パークコートⅠ

東急田園都市線 / 駒沢大学駅 徒歩20分
築23年 / 2階建
東京都世田谷区深沢4丁目36-19

16万円 / 管理費4,000円
敷
16万円礼
16万円2DK / 55.25㎡ / 2階
賃貸マンション
ヒルサイドヴィラ

東急大井町線 / 自由が丘駅 徒歩16分
築46年 / 4階建
東京都目黒区中根2丁目18-2

18万円 / 管理費5,000円
敷
18万円礼
18万円2LDK / 53.66㎡ / 2階
賃貸アパート
八雲ガーデンテラス

東急大井町線 / 自由が丘駅 徒歩18分
築2年 / 2階建
東京都目黒区八雲3丁目3-8

17.5万円 / 管理費5,000円
敷
17.5万円礼
17.5万円1LDK / 45.75㎡ / 2階
賃貸アパート
深沢パークコートⅠ

東急田園都市線 / 駒沢大学駅 徒歩20分
築23年 / 2階建
東京都世田谷区深沢4丁目36-19

16万円 / 管理費4,000円
敷
16万円礼
16万円2DK / 55.25㎡ / 2階
賃貸マンション
ヒルサイドヴィラ

東急大井町線 / 自由が丘駅 徒歩16分
築46年 / 4階建
東京都目黒区中根2丁目18-2

18万円 / 管理費5,000円
敷
18万円礼
18万円2LDK / 53.66㎡ / 2階
賃貸アパート
八雲ガーデンテラス

東急大井町線 / 自由が丘駅 徒歩18分
築2年 / 2階建
東京都目黒区八雲3丁目3-8

17.5万円 / 管理費5,000円
敷
17.5万円礼
17.5万円1LDK / 45.75㎡ / 2階
