鹿鳴館Ⅱ1R/4階(東京都豊島区 / 椎名町駅)の賃貸
1/30
1/30
7.6万円
初期費用を知りたい管理費4,000円
- 敷金
- 7.6万円
- 保証金
- なし
- 礼金
- 7.6万円
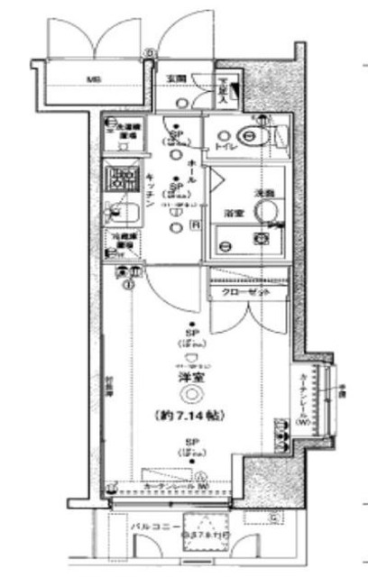
- 広さ
- 18.63㎡
- 階数
- 4階 / 5階建
- 間取り
- 1R
- 建物
- マンション (鉄骨)
- 築年数
- 築28年
- 向き
- 交通
- 西武池袋線 / 椎名町駅徒歩5分
- 東京メトロ有楽町線 / 要町駅徒歩8分
- 住所
- 東京都豊島区長崎1丁目
コンビニエンスストア 381m
スーパーマーケット 468m
公園 590m
ドラッグストア 405m
商店街 504m
ファミリーマート 西池袋四丁目店 377m
無料で10秒! カンタンお問い合わせ

鹿鳴館Ⅱ
敷
7.6万円礼
7.6万円特徴
バス・トイレ別
2階以上
エアコン付き
ペット相談可
駐車場あり
室内洗濯機置場
オートロック
洗面所独立
- 入居条件
- 保証人不要最新の空室状況が知りたい
- バス・トイレ
- 専用バス、専用トイレ、バストイレ別、シャワー、追焚機能浴室
- キッチン
- ガスコンロ対応、1口コンロ、システムキッチン
- 室内設備
- エアコン、洗濯機置場、フローリング、インターネット対応、クロゼット、シューズボックスお部屋の詳しい情報を知りたい
- 部屋の特徴
- バルコニー、角住戸、二階以上写真を送ってほしい
- 共用部
- 駐輪場
- その他の特徴
- 公営水道、都市ガス、下水
無料で10秒! カンタンお問い合わせ

鹿鳴館Ⅱ
敷
7.6万円礼
7.6万円不動産会社からのコメント
暮らしあんしんパック2200円(月額) 24時間サポート料550円(月額) ・退去時:汚れ等の有無にかかわらずルームクリーニング費用49500円(税込)、エアコンクリーニング費用19800円(税込)は、賃借人負担 ※写真・図面と現況が異なる場合、現況を優先させていただきます。 ・駐輪場:詳細要確認 その他詳細は、お問い合わせの上ご確認お願い致します。
その他
- 駐車/駐輪
- 要確認 / あり駐車可能な車種や台数を知りたい
- 入居時期
- 2026年4月中旬最新の空室状況が知りたい
- 損保
- 住宅保険: 要
- 保証人代行
- 加入要 費用: 家賃等80% 月額保証料:月額家賃等総額の2%
- その他費用
初期費用を知りたい殺菌消毒代:16,500円
契約事務手数料:3,300円
鍵交換費用:22,000円
- 情報
情報登録日:2026/3/20
情報更新日:2026/3/20
次回更新予定日:2026/3/25
- 備考
- 現況: 居住中 更新料: 新賃料の1.0ヶ月分 契約期間: 2年 管理人: 巡回 自社管理番号: 329466
取扱い会社
- 取扱い会社
- New House株式会社 池袋店条件が近い物件も紹介してほしい
- 免許番号
- 東京都知事(3)第96228号
- 取引態様
- 仲介
- 所在地
- 東京都豊島区池袋2-53-1 小林ビル6F
- 電話番号
- 03-5927-1172
- 営業時間
- 10:00~19:00
- 定休日
- なし(GW・夏季・年末年始)
- 所属団体名
- (公社)全国宅地建物取引業保証協会
おすすめ物件 (20件)
賃貸アパート
豊島区 2階建 1999年築

東京メトロ有楽町線 / 要町駅 徒歩8分
築27年 / 2階建
東京都豊島区高松2丁目18-3

9.4万円 / 管理費11,000円
敷
無料礼
9.4万円ワンルーム / 18.21㎡ / 2階
賃貸マンション
新宿区中落合3丁目 10階建 2014年築

西武池袋線 / 椎名町駅 徒歩8分
築12年 / 10階建
東京都新宿区中落合3丁目

9.5万円 / 管理費8,000円
敷
無料礼
9.5万円1K / 25.69㎡ / 9階
賃貸アパート
ハーモニーテラス中丸町

東京メトロ有楽町線 / 要町駅 徒歩18分
築6年 / 2階建
東京都板橋区中丸町

6.2万円 / 管理費4,000円
敷
無料礼
6.2万円ワンルーム / 10.51㎡ / 2階
賃貸マンション
西武池袋・豊島線 椎名町駅徒歩8分 10階建て 築11年
西武池袋線 / 椎名町駅 徒歩8分
築12年 / 10階建
東京都新宿区中落合3丁目2-16
9.5万円 / 管理費8,000円
敷
無料礼
9.5万円1K / 25.69㎡ / 9階
賃貸アパート
豊島区南長崎3丁目 2階建 2018年築

西武池袋線 / 椎名町駅 徒歩10分
築8年 / 2階建
東京都豊島区南長崎3丁目

7.3万円 / 管理費4,000円
敷
無料礼
無料ワンルーム / 14.67㎡ / 2階
賃貸マンション
西武池袋線 椎名町駅 10階建 築12年
西武池袋線 / 椎名町駅 徒歩8分
築12年 / 10階建
東京都新宿区中落合3
9.5万円 / 管理費8,000円
敷
無料礼
9.5万円1K / 25.69㎡ / 9階
賃貸マンション
FORTIS

東京メトロ有楽町線 / 要町駅 徒歩9分
築23年 / 5階建
東京都豊島区千早2丁目30-11

7.7万円 / 管理費10,000円
敷
無料礼
7.7万円1K / 21.25㎡ / 3階
賃貸マンション
ZOOM椎名町駅前

西武池袋線 / 椎名町駅 徒歩2分
築14年 / 12階建
東京都豊島区西池袋4丁目38-7

9万円 / 管理費20,000円
敷
無料礼
9万円1K / 22.35㎡ / 12階
賃貸マンション
コピネス

東京メトロ有楽町線 / 要町駅 徒歩7分
築22年 / 3階建
東京都豊島区要町2丁目32-1

7.4万円 / 管理費2,000円
敷
7.4万円礼
7.4万円1K / 21.6㎡ / 3階
賃貸マンション
ル・リオンプレズン池袋ウエスト
東京メトロ有楽町線 / 要町駅 徒歩9分
築20年 / 地上5階地下1階建
東京都板橋区中丸町21-4
8.5万円 / 管理費10,000円
敷
8.5万円礼
8.5万円1K / 24.22㎡ / 4階
賃貸マンション
エクセリア池袋ウエスト

東京メトロ有楽町線 / 要町駅 徒歩8分
築22年 / 12階建
東京都板橋区南町15-5

9万円 / 管理費12,000円
敷
無料礼
9万円1K / 22.73㎡ / 2階
賃貸アパート
豊島区 2階建 1999年築

東京メトロ有楽町線 / 要町駅 徒歩8分
築27年 / 2階建
東京都豊島区高松2丁目18-3

9.4万円 / 管理費11,000円
敷
無料礼
9.4万円ワンルーム / 18.21㎡ / 2階
賃貸マンション
新宿区中落合3丁目 10階建 2014年築

西武池袋線 / 椎名町駅 徒歩8分
築12年 / 10階建
東京都新宿区中落合3丁目

9.5万円 / 管理費8,000円
敷
無料礼
9.5万円1K / 25.69㎡ / 9階
賃貸アパート
ハーモニーテラス中丸町

東京メトロ有楽町線 / 要町駅 徒歩18分
築6年 / 2階建
東京都板橋区中丸町

6.2万円 / 管理費4,000円
敷
無料礼
6.2万円ワンルーム / 10.51㎡ / 2階
賃貸マンション
西武池袋・豊島線 椎名町駅徒歩8分 10階建て 築11年
西武池袋線 / 椎名町駅 徒歩8分
築12年 / 10階建
東京都新宿区中落合3丁目2-16
9.5万円 / 管理費8,000円
敷
無料礼
9.5万円1K / 25.69㎡ / 9階
賃貸アパート
豊島区南長崎3丁目 2階建 2018年築

西武池袋線 / 椎名町駅 徒歩10分
築8年 / 2階建
東京都豊島区南長崎3丁目

7.3万円 / 管理費4,000円
敷
無料礼
無料ワンルーム / 14.67㎡ / 2階
賃貸マンション
西武池袋線 椎名町駅 10階建 築12年
西武池袋線 / 椎名町駅 徒歩8分
築12年 / 10階建
東京都新宿区中落合3
9.5万円 / 管理費8,000円
敷
無料礼
9.5万円1K / 25.69㎡ / 9階
賃貸マンション
FORTIS

東京メトロ有楽町線 / 要町駅 徒歩9分
築23年 / 5階建
東京都豊島区千早2丁目30-11

7.7万円 / 管理費10,000円
敷
無料礼
7.7万円1K / 21.25㎡ / 3階
賃貸マンション
ZOOM椎名町駅前

西武池袋線 / 椎名町駅 徒歩2分
築14年 / 12階建
東京都豊島区西池袋4丁目38-7

9万円 / 管理費20,000円
敷
無料礼
9万円1K / 22.35㎡ / 12階
賃貸マンション
コピネス

東京メトロ有楽町線 / 要町駅 徒歩7分
築22年 / 3階建
東京都豊島区要町2丁目32-1

7.4万円 / 管理費2,000円
敷
7.4万円礼
7.4万円1K / 21.6㎡ / 3階
賃貸マンション
ル・リオンプレズン池袋ウエスト
東京メトロ有楽町線 / 要町駅 徒歩9分
築20年 / 地上5階地下1階建
東京都板橋区中丸町21-4
8.5万円 / 管理費10,000円
敷
8.5万円礼
8.5万円1K / 24.22㎡ / 4階
賃貸マンション
エクセリア池袋ウエスト

東京メトロ有楽町線 / 要町駅 徒歩8分
築22年 / 12階建
東京都板橋区南町15-5

9万円 / 管理費12,000円
敷
無料礼
9万円1K / 22.73㎡ / 2階
同じ最寄り駅 × 同じ特徴 で探す
同じ市区町村 × 同じ特徴 で探す







































