3万円以下
15万円
100万円以上
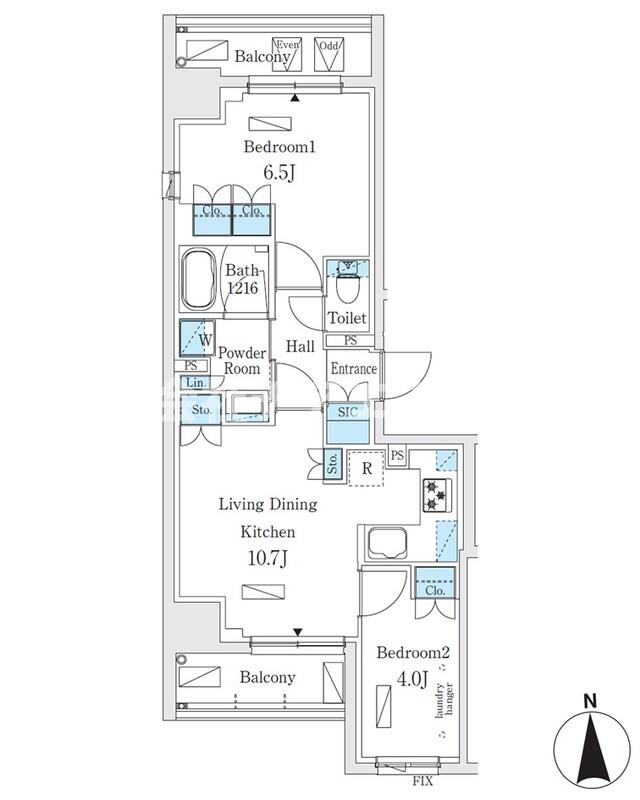
千代田区富士見2丁目 5階建 2022年築
グランアクス麹町
フィシオ飯田橋
パトリス神保町
アルプエンテ大手町
新御茶ノ水アーバントリニティ
シティカレント大手町
HOPECITY秋葉原
半蔵門レジデンス
レガシア千代田三崎町
HF東神田レジデンス