3万円以下
15万円
100万円以上
中野区大和町1丁目 2階建 1994年築
中野区中央3丁目 2階建 2023年築
中野区新井5丁目 地上2階地下1階建 1988年築
中野区沼袋3丁目 4階建 1967年築
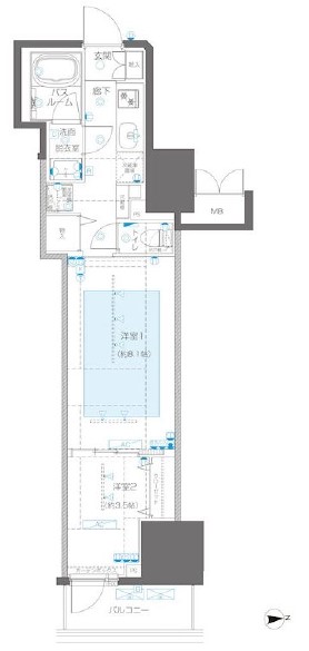
グラシア沼袋
オーパスホームズ千駄木
BRILLIAIST文京茗荷谷
レジディア神田岩本町2
クリダイマンション
防音マンション「KonomiNARIMASUBASE」