3万円以下
15万円
100万円以上
レジェイドクロス千代田神保町
ブランズ千代田富士見
千代田区富士見2丁目 10階建 2003年築
千代田区神田神保町1丁目 14階建 2020年築
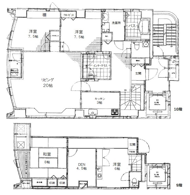
ベルビュー千代田飯田橋
千代田区富士見2丁目 地上38階地下2階建 2009年築
千代田区神田神保町3丁目 10階建 2008年築
千代田区富士見2丁目 15階建 2008年築
東京メトロ東西線飯田橋駅12階建築5年