3万円以下
15万円
100万円以上
ザパークハウス芝公園
港区三田1丁目 地上7階地下1階建 2003年築
シティタワー麻布十番
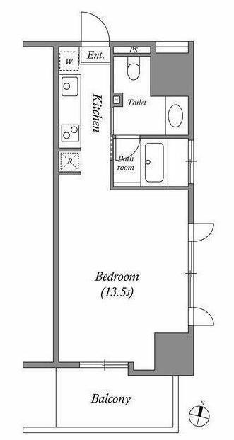
LaSante麻布十番
アーデン麻布十番
CAVANA+麻布台
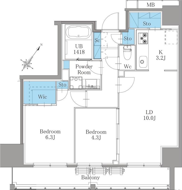
南麻布仙台坂レジデンス
港区麻布十番3丁目 12階建 2000年築
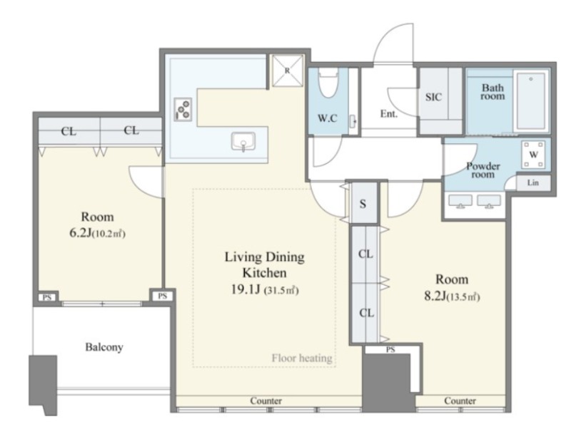
THECONOE三田綱町
港区東麻布2丁目 地上11階地下1階建 2011年築