3万円以下
15万円
100万円以上
VERGER五反野
アヴニール綾瀬
クレヴィスタ綾瀬3
アルファコート綾瀬2
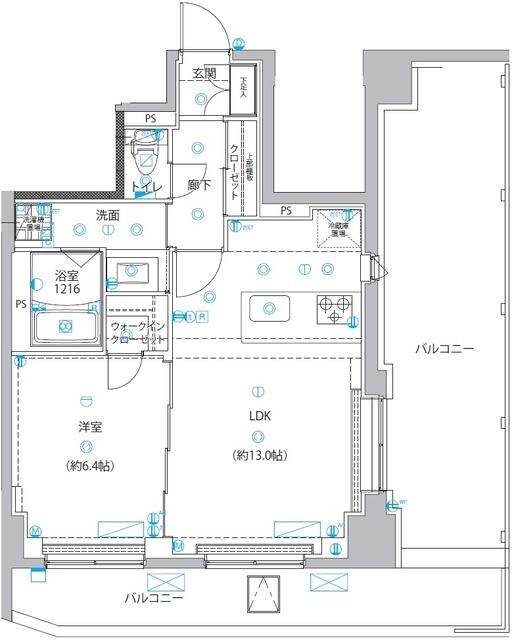
東京メトロ千代田線綾瀬駅7階建築10年
グランリバー北千住
東京地下鉄千代田線綾瀬駅徒歩6分7階建て築9年
MAISONFORTUNA
足立区西綾瀬3丁目 3階建 2023年築
ユリカロゼ五反野3