大阪ひびきの街 ザ・サンクタスタワー(大阪府大阪市西区 / 本町駅) の賃貸物件情報
募集中のお部屋が5件あります






















1/11
1/11
- 建物
- マンション (鉄筋コンクリート)
- 築年数
- 築11年 (2015年)
- 駐車場
- 無
- 交通
- 地下鉄四つ橋線 / 本町駅徒歩6分
- 地下鉄四つ橋線 / 四ツ橋駅徒歩6分
- 地下鉄長堀鶴見緑地線 / 西大橋駅徒歩7分
- 住所
- 大阪府大阪市西区新町1丁目
掲載中の物件(5件)
- 堀江小学校 1018m
- 堀江中学校 1443m
- コンビニエンスストア 206m
- スーパーマーケット 566m
- 総合病院 780m
- モンベル 本社ショールーム店 261m
その他
- 駐車/駐輪
- 無
- 入居時期
- 即
- 損保
- 住宅保険: 要
- 保証代行人
- -
- その他費用
- -
- 情報
情報登録日:2026/1/22
情報更新日:2026/5/11
次回更新予定日:2026/5/17
- 備考
- 現況: 空家 契約期間: 2年 管理人: 常駐 総戸数: 875戸 バルコニー面積: 12.53㎡ 自社管理番号: 16594330
この建物からのPick Up
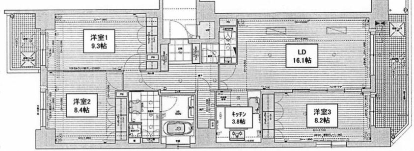
3LDK/11階
1/12
1/12
29.5 万円 / 管理費15,000円
- 敷金
- 29.5万円
- 保証金
- なし
- 礼金
- 59万円
- 広さ
- 73.83㎡
- 階数
- 11階 / 53階建
- 間取り
- 3LDK (LDK16帖 / 洋7帖 / 洋5帖 / 和5帖)
- 向き
無料で10秒! カンタンお問い合わせ

大阪ひびきの街 ザ・サンクタスタワー
敷
29.5万円礼
59万円特徴
バス・トイレ別
2階以上
エアコン付き
ペット相談可
駐車場あり
室内洗濯機置場
オートロック
洗面所独立
- 入居条件
- 即入居可、初期費用カード決済可、二人入居可
- バス・トイレ
- 専用バス、浴室乾燥機、給湯、バストイレ別、シャワー付洗面化粧台、専用トイレ、シャワー、温水洗浄便座、洗面所独立
- キッチン
- システムキッチン
- セキュリティ
- オートロック、防犯カメラ
- 室内設備
- 全居室収納、クロゼット、フリーアクセス、室内洗濯置、フローリング、シューズボックス
- 部屋の特徴
- バルコニー、二階以上
- 共用部
- エレベーター、駐輪場、宅配ボックス、バイク置場
- その他の特徴
- 下水、分譲賃貸、外壁タイル張り
無料で10秒! カンタンお問い合わせ

大阪ひびきの街 ザ・サンクタスタワー
敷
29.5万円礼
59万円おすすめ物件 (10件)
賃貸マンション
BelleVogue北堀江

地下鉄四つ橋線 / 四ツ橋駅 徒歩2分
築34年 / 10階建
大阪府大阪市西区北堀江1丁目

35万円 / 管理費なし
敷
70万円礼
70万円2LDK / 119.85㎡ / 8階
賃貸マンション
北堀江コレット

地下鉄長堀鶴見緑地線 / 西大橋駅 徒歩2分
築17年 / 10階建
大阪府大阪市西区北堀江1丁目

家賃カード決済可
50万円 / 管理費なし
敷
25万円礼
50万円2LDK / 110.24㎡ / 9階
賃貸マンション
リーガル四ツ橋立売堀2

地下鉄長堀鶴見緑地線 / 西大橋駅 徒歩5分
築9年 / 15階建
大阪府大阪市西区立売堀1丁目

家賃カード決済可
27.687万円 / 管理費21,130円
敷
無料礼
54万円3LDK / 104.15㎡ / 10階
賃貸マンション
大阪ひびきの街ザサンクタスタワー

地下鉄四つ橋線 / 四ツ橋駅 徒歩6分
築11年 / 53階建
大阪府大阪市西区新町1丁目

70万円 / 管理費なし
敷
70万円礼
140万円2LDK / 102.54㎡ / 52階
賃貸マンション
南堀江21

地下鉄長堀鶴見緑地線 / 西大橋駅 徒歩6分
築38年 / 11階建
大阪府大阪市西区南堀江2丁目3番18号

24万円 / 管理費20,000円
敷
無料礼
24万円2SLDK / 95.08㎡ / 7階
賃貸マンション
プレミストタワー大阪新町ローレルコート

地下鉄長堀鶴見緑地線 / 西大橋駅 徒歩2分
築8年 / 地上38階地下1階建
大阪府大阪市西区新町2丁目5番1号

44.5万円 / 管理費45,000円
敷
無料礼
66.75万円2LDK / 92.91㎡ / 34階
賃貸マンション
ヴェルデ北堀江

地下鉄長堀鶴見緑地線 / 西大橋駅 徒歩1分
築36年 / 11階建
大阪府大阪市西区北堀江2丁目

20.5万円 / 管理費15,000円
敷
無料礼
61.5万円3LDK / 90.34㎡ / 4階
賃貸マンション
ダイアパレス四ツ橋

地下鉄長堀鶴見緑地線 / 西大橋駅 徒歩4分
築45年 / 9階建
大阪府大阪市西区新町1丁目

20万円 / 管理費35,000円
敷
無料礼
47万円2LDK / 88.45㎡ / 8階
賃貸マンション
BelleVogue北堀江

地下鉄四つ橋線 / 四ツ橋駅 徒歩2分
築34年 / 10階建
大阪府大阪市西区北堀江1丁目

35万円 / 管理費なし
敷
70万円礼
70万円2LDK / 119.85㎡ / 8階
賃貸マンション
北堀江コレット

地下鉄長堀鶴見緑地線 / 西大橋駅 徒歩2分
築17年 / 10階建
大阪府大阪市西区北堀江1丁目

家賃カード決済可
50万円 / 管理費なし
敷
25万円礼
50万円2LDK / 110.24㎡ / 9階
賃貸マンション
リーガル四ツ橋立売堀2

地下鉄長堀鶴見緑地線 / 西大橋駅 徒歩5分
築9年 / 15階建
大阪府大阪市西区立売堀1丁目

家賃カード決済可
27.687万円 / 管理費21,130円
敷
無料礼
54万円3LDK / 104.15㎡ / 10階
賃貸マンション
大阪ひびきの街ザサンクタスタワー

地下鉄四つ橋線 / 四ツ橋駅 徒歩6分
築11年 / 53階建
大阪府大阪市西区新町1丁目

70万円 / 管理費なし
敷
70万円礼
140万円2LDK / 102.54㎡ / 52階
賃貸マンション
南堀江21

地下鉄長堀鶴見緑地線 / 西大橋駅 徒歩6分
築38年 / 11階建
大阪府大阪市西区南堀江2丁目3番18号

24万円 / 管理費20,000円
敷
無料礼
24万円2SLDK / 95.08㎡ / 7階
賃貸マンション
プレミストタワー大阪新町ローレルコート

地下鉄長堀鶴見緑地線 / 西大橋駅 徒歩2分
築8年 / 地上38階地下1階建
大阪府大阪市西区新町2丁目5番1号

44.5万円 / 管理費45,000円
敷
無料礼
66.75万円2LDK / 92.91㎡ / 34階
賃貸マンション
ヴェルデ北堀江

地下鉄長堀鶴見緑地線 / 西大橋駅 徒歩1分
築36年 / 11階建
大阪府大阪市西区北堀江2丁目

20.5万円 / 管理費15,000円
敷
無料礼
61.5万円3LDK / 90.34㎡ / 4階
賃貸マンション
ダイアパレス四ツ橋

地下鉄長堀鶴見緑地線 / 西大橋駅 徒歩4分
築45年 / 9階建
大阪府大阪市西区新町1丁目

20万円 / 管理費35,000円
敷
無料礼
47万円2LDK / 88.45㎡ / 8階








