リヴシティ日本橋ネクステシア(東京都中央区 / 小伝馬町駅) の賃貸物件情報
募集中のお部屋が1件あります
































1/16
1/16
- 建物
- マンション (鉄筋コンクリート)
- 築年数
- 築13年 (2013年)
- 駐車場
- 無
- 交通
- 東京メトロ日比谷線 / 小伝馬町駅徒歩3分
- 総武本線 / 新日本橋駅徒歩7分
- 東京メトロ銀座線三越前駅 徒歩8分
- 住所
- 東京都中央区日本橋大伝馬町2-5
- コンビニエンスストア 113m
- スーパーマーケット 115m
- 総合病院 994m
- ドラッグストア 229m
- 銀行 159m
その他
- 駐車/駐輪
- 無
- 入居時期
- 相談
- 損保
- 住宅保険: 要
- 保証代行人
- 加入要 会社名: その他 費用: (初回)総賃料の80%~ (月額)総賃料の1%~(決済サービス料)500円(税抜)/月
- その他費用
- -
- 情報
情報登録日:2026/4/5
情報更新日:2026/4/18
次回更新予定日:2026/4/24
- 備考
- 現況: 空家 更新料: 新賃料の1.5ヶ月分 契約期間: 2年 管理人: 巡回 その他交通: 東京メトロ銀座線三越前駅 徒歩8分 自社管理番号: 14096210
この建物からのPick Up
1K/5階
1/25
1/25
13.2 万円 / 管理費10,000円
- 敷金
- 無料
- 保証金
- なし
- 礼金
- 13.2万円
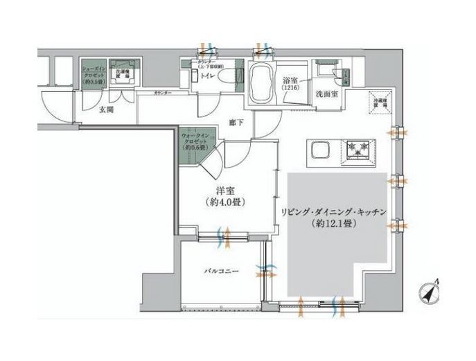
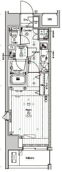
- 広さ
- 25.67㎡
- 階数
- 5階 / 12階建
- 間取り
- 1K (洋7.3帖 / K2.0帖)
- 向き
- 北西
無料で10秒! カンタンお問い合わせ

リヴシティ日本橋ネクステシア
敷
無料礼
13.2万円特徴
バス・トイレ別
2階以上
エアコン付き
ペット相談可
駐車場あり
室内洗濯機置場
オートロック
洗面所独立
- 入居条件
- ペット相談、保証人不要、初期費用カード決済可、敷金不要、二人入居可
- バス・トイレ
- 専用バス、浴室乾燥機、給湯、バストイレ別、シャワー付洗面化粧台、シャワー、温水洗浄便座、洗面所独立
- キッチン
- 2口コンロ、システムキッチン、IHクッキングヒーター
- セキュリティ
- オートロック、防犯カメラ
- 室内設備
- BS、クロゼット、照明付、光ファイバー、エアコン、室内洗濯置、フローリング、CS、シューズボックス
- 部屋の特徴
- バルコニー、二階以上
- 共用部
- エレベーター、駐輪場、宅配ボックス、バイク置場
- その他の特徴
- 下水、分譲賃貸、公営水道、外壁タイル張り、都市ガス
無料で10秒! カンタンお問い合わせ

リヴシティ日本橋ネクステシア
敷
無料礼
13.2万円おすすめ物件 (10件)
賃貸マンション
N35イースト

東京メトロ日比谷線 / 小伝馬町駅 徒歩4分
築21年 / 13階建
東京都千代田区岩本町2丁目

12.9万円 / 管理費12,000円
敷
12.9万円礼
12.9万円1K / 30.57㎡ / 8階
賃貸マンション
N35EAST

東京メトロ日比谷線 / 小伝馬町駅 徒歩4分
築21年 / 13階建
東京都千代田区岩本町2丁目18-1

12.9万円 / 管理費12,000円
敷
12.9万円礼
12.9万円ワンルーム / 30.57㎡ / 8階
賃貸マンション
智光ビル
東京メトロ日比谷線 / 小伝馬町駅 徒歩1分
築12年 / 7階建
東京都中央区日本橋小伝馬町9-13
12.5万円 / 管理費12,000円
敷
12.5万円礼
25万円1K / 30.36㎡ / 4階
賃貸マンション
バンブー岩本町
東京メトロ日比谷線 / 小伝馬町駅 徒歩5分
築20年 / 13階建
東京都千代田区岩本町2
12.7万円 / 管理費12,000円
敷
12.7万円礼
12.7万円1K / 29.9㎡ / 4階
賃貸マンション
アーバイル日本橋小伝馬町
東京メトロ日比谷線 / 小伝馬町駅 徒歩3分
築22年 / 12階建
東京都中央区日本橋大伝馬町2-15
11.4万円 / 管理費14,000円
敷
11.4万円礼
11.4万円1K / 29.14㎡ / 9階
賃貸マンション
ステージファースト神田

東京メトロ日比谷線 / 小伝馬町駅 徒歩4分
築26年 / 12階建
東京都千代田区岩本町2丁目10-5

11.5万円 / 管理費5,000円
敷
無料礼
11.5万円1K / 28.78㎡ / 3階
賃貸マンション
日本橋ファーストレジデンス
東京メトロ日比谷線 / 小伝馬町駅 徒歩5分
築21年 / 13階建
東京都中央区日本橋富沢町10-2
13.2万円 / 管理費6,000円
敷
13.2万円礼
26.4万円ワンルーム / 28.23㎡ / 8階
賃貸マンション
都営浅草線人形町駅13階建築22年
東京メトロ日比谷線 / 小伝馬町駅 徒歩5分
築21年 / 13階建
東京都中央区日本橋富沢町
13.2万円 / 管理費6,000円
敷
13.2万円礼
26.4万円1K / 28.23㎡ / 8階
賃貸マンション
N35イースト

東京メトロ日比谷線 / 小伝馬町駅 徒歩4分
築21年 / 13階建
東京都千代田区岩本町2丁目

12.9万円 / 管理費12,000円
敷
12.9万円礼
12.9万円1K / 30.57㎡ / 8階
賃貸マンション
N35EAST

東京メトロ日比谷線 / 小伝馬町駅 徒歩4分
築21年 / 13階建
東京都千代田区岩本町2丁目18-1

12.9万円 / 管理費12,000円
敷
12.9万円礼
12.9万円ワンルーム / 30.57㎡ / 8階
賃貸マンション
智光ビル
東京メトロ日比谷線 / 小伝馬町駅 徒歩1分
築12年 / 7階建
東京都中央区日本橋小伝馬町9-13
12.5万円 / 管理費12,000円
敷
12.5万円礼
25万円1K / 30.36㎡ / 4階
賃貸マンション
バンブー岩本町
東京メトロ日比谷線 / 小伝馬町駅 徒歩5分
築20年 / 13階建
東京都千代田区岩本町2
12.7万円 / 管理費12,000円
敷
12.7万円礼
12.7万円1K / 29.9㎡ / 4階
賃貸マンション
アーバイル日本橋小伝馬町
東京メトロ日比谷線 / 小伝馬町駅 徒歩3分
築22年 / 12階建
東京都中央区日本橋大伝馬町2-15
11.4万円 / 管理費14,000円
敷
11.4万円礼
11.4万円1K / 29.14㎡ / 9階
賃貸マンション
ステージファースト神田

東京メトロ日比谷線 / 小伝馬町駅 徒歩4分
築26年 / 12階建
東京都千代田区岩本町2丁目10-5

11.5万円 / 管理費5,000円
敷
無料礼
11.5万円1K / 28.78㎡ / 3階
賃貸マンション
日本橋ファーストレジデンス
東京メトロ日比谷線 / 小伝馬町駅 徒歩5分
築21年 / 13階建
東京都中央区日本橋富沢町10-2
13.2万円 / 管理費6,000円
敷
13.2万円礼
26.4万円ワンルーム / 28.23㎡ / 8階
賃貸マンション
都営浅草線人形町駅13階建築22年
東京メトロ日比谷線 / 小伝馬町駅 徒歩5分
築21年 / 13階建
東京都中央区日本橋富沢町
13.2万円 / 管理費6,000円
敷
13.2万円礼
26.4万円1K / 28.23㎡ / 8階











