アルコバレーノ練馬(東京都練馬区 / 練馬駅) の賃貸物件情報
募集中のお部屋が1件あります
















1/8
1/8
- 建物
- マンション (鉄筋コンクリート)
- 築年数
- 築2年 (2024年)
- 駐車場
- 近隣 費用: 22,000円(税込) 距離: 267m
- 交通
- 都営大江戸線 / 練馬駅徒歩12分
- 都営大江戸線 / 新江古田駅徒歩14分
- 西武池袋線 / 桜台駅徒歩17分
- 住所
- 東京都練馬区豊玉中2丁目8-4
- まいばすけっと 練馬豊玉中1丁目 374m
- セブン-イレブン 練馬豊玉中2丁目店 130m
- スギドラッグ 練馬豊玉北店 511m
- エミオ 練馬 1066m
- 坂本整形外科クリニック 69m
- 練馬区立豊玉第四保育園 238m
その他
- 駐車/駐輪
- 近隣 費用: 22,000円(税込) 距離: 267m
- 入居時期
- 即
- 損保
- 住宅保険: 要
- 保証代行人
- 連帯保証人: 不要 保証人代行: 必須 保証人代行会社: 全保連 月額賃料等の50%(初回保証料)、2年目以降は1.5万円/年
- その他費用
- -
- 情報
情報登録日:2026/5/13
情報更新日:2026/5/12
次回更新予定日:2026/5/23
- 備考
- 契約期間: 2年
この建物からのPick Up
1LDK/2階
1/9
1/9
15 万円 / 管理費20,000円
- 敷金
- 無料
- 保証金
- なし
- 礼金
- 15万円
- 広さ
- 40.58㎡
- 階数
- 2階 / 5階建
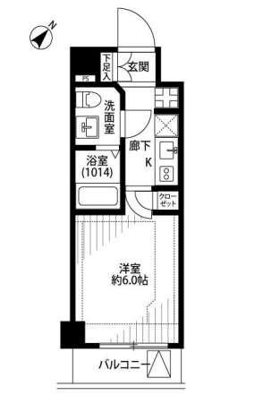
- 間取り
- 1LDK (LDK7.2帖 / 洋3.9帖)
- 向き
- 東
無料で10秒! カンタンお問い合わせ

アルコバレーノ練馬
敷
無料礼
15万円特徴
バス・トイレ別
2階以上
エアコン付き
ペット相談可
駐車場あり
室内洗濯機置場
オートロック
洗面所独立
- 入居条件
- 即入居可、ペット相談、保証人不要、子供可、二人入居相談、敷金不要
- バス・トイレ
- 追焚機能浴室、浴室乾燥機、給湯、バストイレ別、脱衣所、シャワー、洗面台、温水洗浄便座、洗面所独立
- キッチン
- システムキッチン、ガスコンロ対応、3口以上コンロ
- セキュリティ
- オートロック、防犯カメラ
- 室内設備
- クロゼット、エアコン、インターネット対応、室内洗濯置、シューズボックス
- 部屋の特徴
- バルコニー、二階以上、収納2ヵ所、クロゼット2ヶ所
- 共用部
- 敷地内ごみ置き場、エレベーター、駐輪場、宅配ボックス、バイク置場
- その他の特徴
- 下水、分譲賃貸、公営水道、駐車場あり、玄関ホール、都市ガス
無料で10秒! カンタンお問い合わせ

アルコバレーノ練馬
敷
無料礼
15万円おすすめ物件 (10件)
賃貸マンション
アローアイランド1
)
西武有楽町線 / 練馬駅 徒歩10分
築40年 / 5階建
東京都練馬区中村北1丁目15-13
)
14.2万円 / 管理費3,000円
敷
14.2万円礼
14.2万円3LDK / 64.38㎡ / 3階
賃貸マンション
アローアイランド
西武池袋線 / 練馬駅 徒歩10分
築40年 / 地上6階地下1階建
東京都練馬区中村北1
14.2万円 / 管理費3,000円
敷
14.2万円礼
14.2万円3LDK / 61.19㎡ / 3階
賃貸マンション
サンセール豊玉B棟

西武池袋線 / 練馬駅 徒歩14分
築29年 / 4階建
東京都練馬区豊玉南3丁目2-7

13.5万円 / 管理費13,000円
敷
無料礼
13.5万円2LDK / 59.51㎡ / 4階
賃貸マンション
きんえいマンション

西武池袋線 / 練馬駅 徒歩5分
築42年 / 8階建
東京都練馬区豊玉上2丁目2616

家賃カード決済可
12.7万円 / 管理費10,000円
敷
12.7万円礼
12.7万円3DK / 55㎡ / 3階
賃貸マンション
MAISONGRANDIR
)
西武池袋線 / 練馬駅 徒歩8分
築16年 / 4階建
東京都練馬区中村1丁目
)
13.9万円 / 管理費8,000円
敷
13.9万円礼
20.85万円1LDK / 49.6㎡ / 1階
賃貸マンション
アローアイランド1
)
西武有楽町線 / 練馬駅 徒歩10分
築40年 / 5階建
東京都練馬区中村北1丁目15-13
)
14.2万円 / 管理費3,000円
敷
14.2万円礼
14.2万円3LDK / 64.38㎡ / 3階
賃貸マンション
アローアイランド
西武池袋線 / 練馬駅 徒歩10分
築40年 / 地上6階地下1階建
東京都練馬区中村北1
14.2万円 / 管理費3,000円
敷
14.2万円礼
14.2万円3LDK / 61.19㎡ / 3階
賃貸マンション
サンセール豊玉B棟

西武池袋線 / 練馬駅 徒歩14分
築29年 / 4階建
東京都練馬区豊玉南3丁目2-7

13.5万円 / 管理費13,000円
敷
無料礼
13.5万円2LDK / 59.51㎡ / 4階
賃貸マンション
きんえいマンション

西武池袋線 / 練馬駅 徒歩5分
築42年 / 8階建
東京都練馬区豊玉上2丁目2616

家賃カード決済可
12.7万円 / 管理費10,000円
敷
12.7万円礼
12.7万円3DK / 55㎡ / 3階
賃貸マンション
MAISONGRANDIR
)
西武池袋線 / 練馬駅 徒歩8分
築16年 / 4階建
東京都練馬区中村1丁目
)
13.9万円 / 管理費8,000円
敷
13.9万円礼
20.85万円1LDK / 49.6㎡ / 1階



)
)
)
)




