キャッスル上野毛(東京都世田谷区 / 上野毛駅) の賃貸物件情報
募集中のお部屋が1件あります


























1/13
1/13
- 建物
- アパート (木造)
- 築年数
- 築38年 (1988年)
- 駐車場
- 近隣 費用: 27,500円(税込) 距離: 127m
- 交通
- 東急大井町線 / 上野毛駅徒歩4分
- 東急大井町線 / 等々力駅徒歩13分
- 東急大井町線 / 尾山台駅徒歩20分
- 住所
- 東京都世田谷区中町2丁目41-4
- スーパーオオゼキ上野毛店 250m
- ファミリーマート上野毛駅前店 290m
- ドラッグストア マツモトキヨシ 上野毛店 91m
- 二子玉川ライズ・ショッピングセンター・テラスマーケット 1495m
- 田村内科医院 1146m
- 中町二丁目公園 301m
その他
- 駐車/駐輪
- 近隣 費用: 27,500円(税込) 距離: 127m
- 入居時期
- 即
- 損保
- 住宅保険: 要
- 保証代行人
- 連帯保証人: 要
- その他費用
- -
- 情報
情報登録日:2025/11/18
情報更新日:2026/5/11
次回更新予定日:2026/5/22
- 備考
- 契約期間: 2028年3月31日まで ※定期借家
この建物からのPick Up
1R/2階
1/26
1/26
4.6 万円 / 管理費1,000円
- 敷金
- 4.6万円
- 保証金
- なし
- 礼金
- 4.6万円
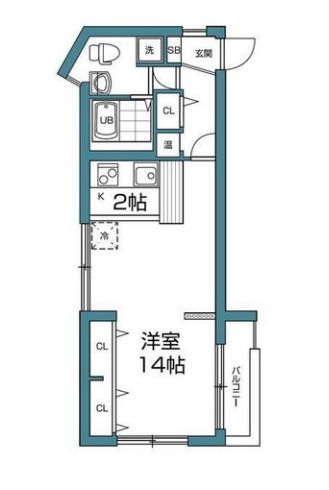
- 広さ
- 16.2㎡
- 階数
- 2階 / 2階建
- 間取り
- 1R (洋6帖)
- 向き
- 南
無料で10秒! カンタンお問い合わせ

キャッスル上野毛
敷
4.6万円礼
4.6万円特徴
バス・トイレ別
2階以上
エアコン付き
ペット相談可
駐車場あり
室内洗濯機置場
オートロック
洗面所独立
- 入居条件
- 即入居可、単身者限定
- バス・トイレ
- 給湯、シャワー、洗面台
- キッチン
- 2口コンロ、ガスコンロ対応
- 室内設備
- エアコン、インターネット対応、室内洗濯置、シューズボックス
- 部屋の特徴
- 角住戸、バルコニー、二階以上、最上階
- その他の特徴
- 下水、公営水道、駐車場あり、定期借家
無料で10秒! カンタンお問い合わせ

キャッスル上野毛
敷
4.6万円礼
4.6万円












