メゾネット松原(東京都世田谷区 / 下高井戸駅) の賃貸物件情報
募集中のお部屋が1件あります














1/7
1/7
- 建物
- アパート (木造)
- 築年数
- 築40年 (1986年)
- 駐車場
- -
- 交通
- 東急世田谷線 / 下高井戸駅徒歩9分
- 京王線 / 明大前駅徒歩9分
- 住所
- 東京都世田谷区松原2丁目
その他
- 駐車/駐輪
- -
- 入居時期
- 即
- 損保
- 住宅保険: 要
- 保証代行人
- 加入要 会社名: アーク賃貸保証 費用: アーク賃貸保証 契約時初回保証料:総賃料の50%年間保証料:10000円、口座振替手数料:330円 学生プラン:初回保証料:1.5万円 年間保証料:無し
- その他費用
- -
- 情報
情報登録日:2026/1/7
情報更新日:2026/4/6
次回更新予定日:2026/4/19
- 備考
- 現況: 空家 更新料: 新賃料の1.0ヶ月分 契約期間: 2年 自社管理番号: 4176870
この建物からのPick Up
1K/1階
1/17
1/17
6.2 万円 / 管理費2,000円
- 敷金
- 6.2万円
- 保証金
- なし
- 礼金
- 6.2万円
- 広さ
- 21.87㎡
- 階数
- 1階 / 2階建
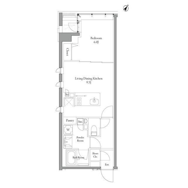
- 間取り
- 1K (洋6.0帖 / K4.0帖)
- 向き
無料で10秒! カンタンお問い合わせ

メゾネット松原
敷
6.2万円礼
6.2万円特徴
バス・トイレ別
2階以上
エアコン付き
ペット相談可
駐車場あり
室内洗濯機置場
オートロック
洗面所独立
- 入居条件
- 即入居可、保証人不要
- バス・トイレ
- 専用トイレ、シャワー
- キッチン
- 2口コンロ、ガスコンロ対応
- 室内設備
- 洗濯機置場、冷房、フローリング、シューズボックス
- 部屋の特徴
- バルコニー
- その他の特徴
- 都市ガス
無料で10秒! カンタンお問い合わせ

メゾネット松原
敷
6.2万円礼
6.2万円











)
)
)
)




)
)
)
)
)
)


)
)
