東急東横線 学芸大学駅 地下1地上4階建 新築(東京都目黒区 / 学芸大学駅) の賃貸物件情報
募集中のお部屋が2件あります
1/13
1/13
- 建物
- マンション (鉄筋コンクリート)
- 築年数
- 新築 (2025年)
- 駐車場
- -
- 交通
- 東急東横線 / 学芸大学駅徒歩13分
- 東急目黒線 / 武蔵小山駅徒歩15分
- 東急東横線 / 祐天寺駅徒歩19分
- 住所
- 東京都目黒区目黒本町1
掲載中の物件(2件)
- 祐天寺附属幼稚園(幼稚園・保育園)まで1118m
- 目黒区立不動小学校(小学校)まで335m
- スーパーTSUKASA(ツカサ) 学芸大学店(スーパー)まで440m
- ニトリ 目黒通り店(ホームセンター)まで532m
- ドミノ・ピザ 学芸大学店(飲食店)まで509m
- まいばすけっと 中央町2丁目(スーパー)まで590m
その他
- 駐車/駐輪
- -
- 入居時期
- 即
- 損保
- 要
- 保証代行人
- -
- その他費用
- -
- 情報
情報登録日:2026/3/19
情報更新日:2026/5/5
次回更新予定日:2026/5/20
- 備考
- 契約期間: 普通借家 2年 保証会社: 保証会社利用必 初回保証料 総賃料の50% 継続保証料 総賃料の1%/月 その他:▲▽初期費用に関して▽▲クレジットカード払いも可能です!初期費用等ご不安な事はお気軽にご相談ください。賃貸、売買、賃貸管理はファニーホームへお任せください!★リモート内見承ります★退去時、ルームクリーニング代借主負担有。1年未満の解約は総賃料の1ヶ月分の短期解約違約金有り。 / 条件: 二人入居可 / ほか諸費用: 更新料 新賃料1.00ヶ月分
この建物からのPick Up
1SLDK/3階
1/20
1/20
19.9 万円 / 管理費15,000円
- 敷金
- 19.9万円
- 保証金
- なし
- 礼金
- 無料
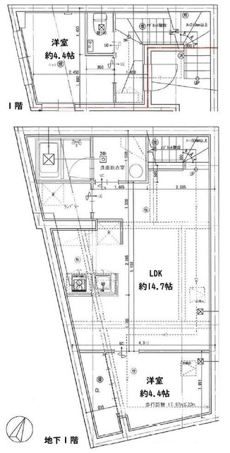
- 広さ
- 42.33㎡
- 階数
- 3階 / 地上4階地下1階建
- 間取り
- 1SLDK (洋5帖 / LDK10.4帖)
- 向き
無料で10秒! カンタンお問い合わせ
東急東横線 学芸大学駅 地下1地上4階建 新築
敷
19.9万円礼
無料特徴
バス・トイレ別
2階以上
エアコン付き
ペット相談可
駐車場あり
室内洗濯機置場
オートロック
洗面所独立
- 入居条件
- 即入居可、保証人不要
- バス・トイレ
- 追焚機能浴室、浴室乾燥機、バストイレ別、温水洗浄便座、洗面所独立
- キッチン
- システムキッチン、3口以上コンロ、IHクッキングヒーター
- セキュリティ
- オートロック、防犯カメラ
- 室内設備
- BS、ネット専用回線、クロゼット、エアコン、室内洗濯置、フローリング、CS、シューズボックス
- 部屋の特徴
- 角住戸、二階以上
- 共用部
- 敷地内ごみ置き場、駐輪場、宅配ボックス
- その他の特徴
- デザイナーズ、都市ガス
無料で10秒! カンタンお問い合わせ
東急東横線 学芸大学駅 地下1地上4階建 新築
敷
19.9万円礼
無料おすすめ物件 (10件)
賃貸マンション
目黒区祐天寺1丁目 4階建 1963年築
東急東横線 / 祐天寺駅 徒歩0分
築63年 / 4階建
東京都目黒区祐天寺1丁目
17.8万円 / 管理費なし
敷
17.8万円礼
35.6万円1LDK / 63.29㎡ / 4階
賃貸マンション
東急目黒線不動前駅2階建築5年
東急目黒線 / 武蔵小山駅 徒歩18分
築4年 / 2階建
東京都目黒区下目黒4
19.9万円 / 管理費なし
敷
19.9万円礼
19.9万円1LDK / 60.77㎡ / 1階
賃貸マンション
目黒区 地上7階地下1階建 2001年築
東急目黒線 / 武蔵小山駅 徒歩21分
築25年 / 7階建
東京都目黒区目黒4丁目12-6
19.2万円 / 管理費7,000円
敷
無料礼
19.2万円ワンルーム / 56.07㎡ / 5階
賃貸マンション
品川区西五反田5丁目 5階建 1990年築

東急目黒線 / 武蔵小山駅 徒歩11分
築36年 / 5階建
東京都品川区西五反田5丁目26-12

17万円 / 管理費5,000円
敷
17万円礼
17万円3DK / 54.15㎡ / 3階
賃貸マンション
ウェルスクエア目黒中町

東急東横線 / 祐天寺駅 徒歩16分
築10年 / 3階建
東京都目黒区中町1丁目

16.4万円 / 管理費6,000円
敷
16.4万円礼
16.4万円1LDK / 52.17㎡ / 1階
賃貸アパート
目黒区東が丘1丁目 2階建 2015年築
東急東横線 / 学芸大学駅 徒歩22分
築11年 / 2階建
東京都目黒区東が丘1丁目
17万円 / 管理費4,000円
敷
17万円礼
34万円1LDK / 51.41㎡ / 2階
賃貸マンション
エスタシオンナカノ

東急東横線 / 学芸大学駅 徒歩10分
築26年 / 4階建
東京都目黒区中央町1丁目1

19.2万円 / 管理費3,000円
敷
19.2万円礼
19.2万円1LDK / 51㎡ / 5階
賃貸マンション
アーバンフラッツ目黒本町

東急目黒線 / 武蔵小山駅 徒歩1分
築20年 / 地上3階地下1階建
東京都目黒区目黒本町4-8-21

18.2万円 / 管理費15,000円
敷
18.2万円礼
無料1LDK / 50.99㎡ / 1階
賃貸マンション
目黒区祐天寺1丁目 4階建 1963年築
東急東横線 / 祐天寺駅 徒歩0分
築63年 / 4階建
東京都目黒区祐天寺1丁目
17.8万円 / 管理費なし
敷
17.8万円礼
35.6万円1LDK / 63.29㎡ / 4階
賃貸マンション
東急目黒線不動前駅2階建築5年
東急目黒線 / 武蔵小山駅 徒歩18分
築4年 / 2階建
東京都目黒区下目黒4
19.9万円 / 管理費なし
敷
19.9万円礼
19.9万円1LDK / 60.77㎡ / 1階
賃貸マンション
目黒区 地上7階地下1階建 2001年築
東急目黒線 / 武蔵小山駅 徒歩21分
築25年 / 7階建
東京都目黒区目黒4丁目12-6
19.2万円 / 管理費7,000円
敷
無料礼
19.2万円ワンルーム / 56.07㎡ / 5階
賃貸マンション
品川区西五反田5丁目 5階建 1990年築

東急目黒線 / 武蔵小山駅 徒歩11分
築36年 / 5階建
東京都品川区西五反田5丁目26-12

17万円 / 管理費5,000円
敷
17万円礼
17万円3DK / 54.15㎡ / 3階
賃貸マンション
ウェルスクエア目黒中町

東急東横線 / 祐天寺駅 徒歩16分
築10年 / 3階建
東京都目黒区中町1丁目

16.4万円 / 管理費6,000円
敷
16.4万円礼
16.4万円1LDK / 52.17㎡ / 1階
賃貸アパート
目黒区東が丘1丁目 2階建 2015年築
東急東横線 / 学芸大学駅 徒歩22分
築11年 / 2階建
東京都目黒区東が丘1丁目
17万円 / 管理費4,000円
敷
17万円礼
34万円1LDK / 51.41㎡ / 2階
賃貸マンション
エスタシオンナカノ

東急東横線 / 学芸大学駅 徒歩10分
築26年 / 4階建
東京都目黒区中央町1丁目1

19.2万円 / 管理費3,000円
敷
19.2万円礼
19.2万円1LDK / 51㎡ / 5階
賃貸マンション
アーバンフラッツ目黒本町

東急目黒線 / 武蔵小山駅 徒歩1分
築20年 / 地上3階地下1階建
東京都目黒区目黒本町4-8-21

18.2万円 / 管理費15,000円
敷
18.2万円礼
無料1LDK / 50.99㎡ / 1階


