ルフレリバーサイド町屋(東京都荒川区 / 町屋駅前駅) の賃貸物件情報
募集中のお部屋が1件あります
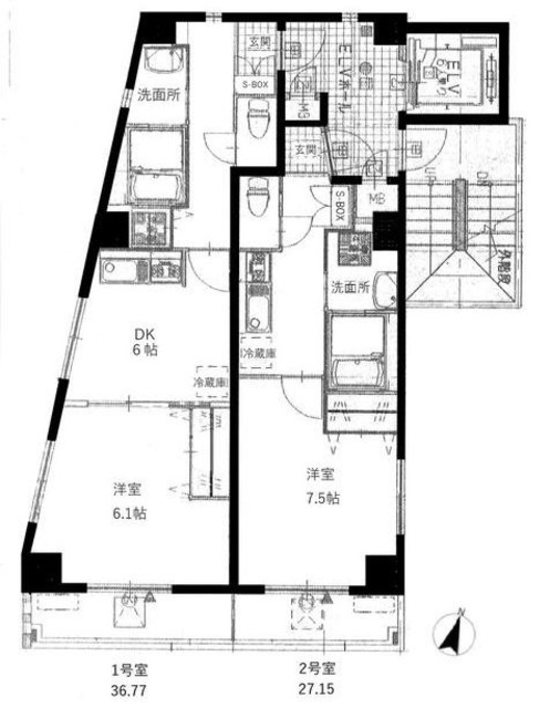
1/22
1/22
- 建物
- マンション (鉄筋コンクリート)
- 築年数
- 築9年 (2017年)
- 駐車場
- -
- 交通
- 都電荒川線 / 町屋駅前駅徒歩9分
- 東京メトロ千代田線 / 町屋駅徒歩9分
- 住所
- 東京都荒川区町屋8丁目3-12
- スーパーマーケット 107m
- 珈琲館町屋店 472m
その他
- 駐車/駐輪
- -
- 入居時期
- 相談
- 損保
- 住宅保険: 要
- 保証代行人
- 加入要 会社名: その他 費用: 0.50ヶ月 賃料と共益費総額の50%
- その他費用
- -
- 情報
情報登録日:2026/3/21
情報更新日:2026/4/6
次回更新予定日:2026/4/26
- 備考
- 現況: 空家 更新料: 新賃料の1.5ヶ月分 契約期間: 2年 総戸数: 38戸
この建物からのPick Up
2DK/9階
1/30
1/30
13.8 万円 / 管理費15,000円
適用で最大2年間4.8万円割引
本物件のヘヤワリ適用可否については、不動産会社へご確認ください。
- 敷金
- 13.8万円
- 保証金
- なし
- 礼金
- 13.8万円
- 広さ
- 36.2㎡
- 階数
- 9階 / 11階建
- 間取り
- 2DK (DK5.3帖 / 洋6.0帖 / 洋4.5帖)
- 向き
- 東
無料で10秒! カンタンお問い合わせ
ルフレリバーサイド町屋
敷
13.8万円礼
13.8万円特徴
バス・トイレ別
2階以上
エアコン付き
ペット相談可
駐車場あり
室内洗濯機置場
オートロック
洗面所独立
- 入居条件
- 保証人不要、初期費用カード決済可、ペット不可、二人入居可
- バス・トイレ
- 専用バス、浴室乾燥機、給湯、バストイレ別、シャワー付洗面化粧台、専用トイレ、シャワー、温水洗浄便座、洗面所独立
- キッチン
- 2口コンロ、システムキッチン、ガスコンロ対応
- セキュリティ
- オートロック、防犯カメラ、24時間セキュリティ
- 室内設備
- BS、クロゼット、光ファイバー、ネット使用料不要、エアコン、インターネット対応、室内洗濯置、冷房、フローリング、CS、シューズボックス
- 部屋の特徴
- 角住戸、バルコニー、二階以上
- 共用部
- エレベーター、駐輪場、宅配ボックス
- その他の特徴
- 下水、分譲賃貸、公営水道、都市ガス
無料で10秒! カンタンお問い合わせ
ルフレリバーサイド町屋
敷
13.8万円礼
13.8万円おすすめ物件 (10件)
賃貸マンション
千住元町グリーンハイツ
)
京成本線 / 町屋駅 徒歩25分
築46年 / 7階建
東京都足立区千住元町36-5
)
8.9万円 / 管理費7,000円
敷
無料礼
8.9万円1LDK / 42.93㎡ / 1階
賃貸マンション
いずみマンション

東京メトロ千代田線 / 町屋駅 徒歩6分
築49年 / 3階建
東京都荒川区町屋2丁目

12.5万円 / 管理費5,000円
敷
無料礼
12.5万円1LDK / 41.71㎡ / 3階
賃貸マンション
ウィステリアート
東京メトロ千代田線 / 町屋駅 徒歩10分
築17年 / 6階建
東京都荒川区荒川2
家賃カード決済可
13.8万円 / 管理費12,000円
敷
無料礼
13.8万円1LDK / 40㎡ / 4階
賃貸マンション
ピレーネ西日暮里
東京メトロ千代田線 / 町屋駅 徒歩9分
築36年 / 9階建
東京都荒川区西日暮里1
10.4万円 / 管理費8,000円
敷
10.4万円礼
無料1LDK / 38.75㎡ / 9階
賃貸マンション
荒川区 8階建 2011年築
京成本線 / 町屋駅 徒歩10分
築15年 / 8階建
東京都荒川区町屋8丁目3-8
12.8万円 / 管理費7,000円
敷
6.4万円礼
19.2万円1LDK / 38.6㎡ / 6階
賃貸マンション
千住元町グリーンハイツ
)
京成本線 / 町屋駅 徒歩25分
築46年 / 7階建
東京都足立区千住元町36-5
)
8.9万円 / 管理費7,000円
敷
無料礼
8.9万円1LDK / 42.93㎡ / 1階
賃貸マンション
いずみマンション

東京メトロ千代田線 / 町屋駅 徒歩6分
築49年 / 3階建
東京都荒川区町屋2丁目

12.5万円 / 管理費5,000円
敷
無料礼
12.5万円1LDK / 41.71㎡ / 3階
賃貸マンション
ウィステリアート
東京メトロ千代田線 / 町屋駅 徒歩10分
築17年 / 6階建
東京都荒川区荒川2
家賃カード決済可
13.8万円 / 管理費12,000円
敷
無料礼
13.8万円1LDK / 40㎡ / 4階
賃貸マンション
ピレーネ西日暮里
東京メトロ千代田線 / 町屋駅 徒歩9分
築36年 / 9階建
東京都荒川区西日暮里1
10.4万円 / 管理費8,000円
敷
10.4万円礼
無料1LDK / 38.75㎡ / 9階
賃貸マンション
荒川区 8階建 2011年築
京成本線 / 町屋駅 徒歩10分
築15年 / 8階建
東京都荒川区町屋8丁目3-8
12.8万円 / 管理費7,000円
敷
6.4万円礼
19.2万円1LDK / 38.6㎡ / 6階


)
)
