カーサコリーナ(東京都北区 / 駒込駅) の賃貸物件情報
募集中のお部屋が1件あります
























1/12
1/12
- 建物
- アパート (木造)
- 築年数
- 築8年 (2018年)
- 駐車場
- 無
- 住所
- 東京都北区田端5丁目
- コンビニエンスストア 385m
- スーパーマーケット 50m
- 総合病院 392m
- 公園 843m
- 商店街 772m
- 文京グリーンコート 1552m
その他
- 駐車/駐輪
- 無
- 入居時期
- 2026年6月下旬
- 損保
- 住宅保険: 要
- 保証代行人
- 加入要 会社名: クレディセゾン 費用: 保証会社【クレディセゾン】初回委託料:月額賃料等の50% 更新保証料:なし 月次保証料:月額賃料等の1%
- その他費用
- -
- 情報
情報登録日:2026/5/5
情報更新日:2026/5/5
次回更新予定日:2026/5/18
- 備考
- 現況: 居住中 更新料: 新賃料の1.0ヶ月分 契約期間: 2年 総戸数: 9戸 LIFULL HOME'S物件番号: 1288140354377
この建物からのPick Up
1LDK/2階
1/21
1/21
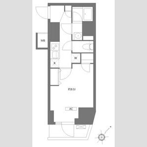
14 万円 / 管理費11,000円
- 敷金
- 無料
- 保証金
- なし
- 礼金
- 14万円
- 広さ
- 39.22㎡
- 階数
- 2階 / 3階建
- 間取り
- 1LDK (LDK9.5帖 / 洋6.4帖)
- 向き
- 東
無料で10秒! カンタンお問い合わせ

カーサコリーナ
敷
無料礼
14万円特徴
バス・トイレ別
2階以上
エアコン付き
ペット相談可
駐車場あり
室内洗濯機置場
オートロック
洗面所独立
- 入居条件
- 楽器不可、事務所(SOHO)不可、家賃カード決済可、敷金不要、ペット不可
- バス・トイレ
- 専用バス、追焚機能浴室、浴室乾燥機、給湯、バストイレ別、専用トイレ、シャワー、温水洗浄便座、洗面所独立
- キッチン
- ガスコンロ対応、3口以上コンロ
- セキュリティ
- オートロック
- 室内設備
- クロゼット、ネット使用料不要、エアコン、インターネット対応、室内洗濯置、フローリング、シューズボックス
- 部屋の特徴
- バルコニー、二階以上
- 共用部
- 駐輪場、宅配ボックス
- その他の特徴
- 下水、公営水道、都市ガス
無料で10秒! カンタンお問い合わせ

カーサコリーナ
敷
無料礼
14万円


















)
)
