グランジット日本橋浜町(東京都中央区 / 浜町駅) の賃貸物件情報
募集中のお部屋が1件あります






























1/15
1/15
- 建物
- マンション (鉄筋コンクリート)
- 築年数
- 築5年 (2021年)
- 駐車場
- -
- 交通
- 都営新宿線 / 浜町駅徒歩5分
- 東京メトロ半蔵門線 / 水天宮前駅徒歩11分
- 東京都大江戸線 森下駅 徒歩8分
- 住所
- 東京都中央区日本橋浜町3丁目
グランジット日本橋浜町とは
「グランジット日本橋浜町」のご紹介です。 東京都中央区日本橋浜町3丁目に佇む「グランジット日本橋浜町」は、地上12階建て高級レジデンスとして2021年3月に建てられました。単身者やカップルに最適な1Kと1LDKのお部屋を取り揃えており、エントランスはタイル張りとモノトーンを基調としたラグジュアリーな空間となっております。 セキュリティ対策としてオートロック、防犯カメラ、TVモニター付きインターホン、ディンプルキー、ダブルロックが完備され、また管理員が常駐しています。留守の多い方でも安心して荷物を受け取れる宅配ボックスや、好きなタイミングでゴミ出しができる敷地内ゴミ置き場も設置された快適な住環境です。お部屋ではケーブルテレビが視聴でき、インターネットを無料でお楽しみいただけます。駐車場は空きスペースに限りがあるため、お問い合わせください。 「浜町駅」から徒歩8分の駅近物件です。「水天宮前駅」「人形町駅」「森下駅」からも徒歩圏内のため、行き先に合わせて各路線を使い分けることができます。
- コンビニエンスストア 200m
- スーパーマーケット 200m
- 総合病院 670m
- 公園 318m
- ドラッグストア 214m
- ローソン 新大橋一丁目店 509m
その他
- 駐車/駐輪
- -
- 入居時期
- 即
- 損保
- 住宅保険: 要
- 保証代行人
- 加入要 費用: ルームバンクインシュア初回保証料:総賃料の50%・1年毎1万円
- その他費用
- -
- 情報
情報登録日:2026/3/30
情報更新日:2026/4/24
次回更新予定日:2026/5/7
- 備考
- 現況: 空家 更新料: 新賃料の1.5ヶ月分 契約期間: 2年 管理人: 巡回 その他交通: 東京都大江戸線 森下駅 徒歩8分 自社管理番号: 6829586
この建物からのPick Up
1K/4階
1/24
1/24
13 万円 / 管理費15,000円
- 敷金
- 13万円
- 保証金
- なし
- 礼金
- 13万円
- 広さ
- 27.07㎡
- 階数
- 4階 / 12階建
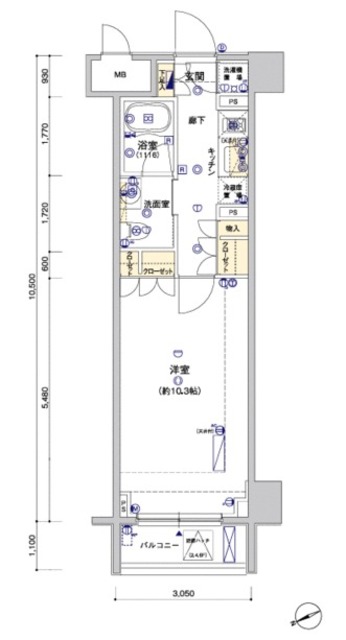
- 間取り
- 1K (洋7.3帖 / K2.0帖)
- 向き
- 南東
無料で10秒! カンタンお問い合わせ

グランジット日本橋浜町
敷
13万円礼
13万円特徴
バス・トイレ別
2階以上
エアコン付き
ペット相談可
駐車場あり
室内洗濯機置場
オートロック
洗面所独立
- 入居条件
- 即入居可、ペット相談、保証人不要、初期費用カード決済可
- バス・トイレ
- 専用バス、追焚機能浴室、浴室乾燥機、給湯、バストイレ別、オートバス、専用トイレ、シャワー、温水洗浄便座、洗面所独立
- キッチン
- システムキッチン、1口コンロ、IHクッキングヒーター
- セキュリティ
- オートロック、防犯カメラ
- 室内設備
- BS、クロゼット、照明付、光ファイバー、エアコン、室内洗濯置、フローリング、CS、シューズボックス
- 部屋の特徴
- バルコニー、二階以上
- 共用部
- エレベーター、宅配ボックス
- その他の特徴
- 下水、公営水道、都市ガス
無料で10秒! カンタンお問い合わせ

グランジット日本橋浜町
敷
13万円礼
13万円おすすめ物件 (10件)
賃貸マンション
スクエア日本橋
)
都営新宿線 / 浜町駅 徒歩5分
築60年 / 地上8階地下2階建
東京都中央区日本橋浜町3丁目
)
12.8万円 / 管理費10,000円
敷
12.8万円礼
12.8万円1K / 48.3㎡ / 5階
賃貸マンション
メゾンドヴィレ日本橋中洲
東京メトロ半蔵門線 / 水天宮前駅 徒歩7分
築24年 / 12階建
東京都中央区日本橋中洲4-13
11.5万円 / 管理費9,000円
敷
無料礼
11.5万円1K / 33.39㎡ / 2階
賃貸マンション
フィース水天宮前

東京メトロ半蔵門線 / 水天宮前駅 徒歩12分
築17年 / 8階建
東京都江東区佐賀2丁目7-2

12.9万円 / 管理費8,000円
敷
無料礼
12.9万円1K / 32.02㎡ / 7階
賃貸マンション
アーバイル日本橋水天宮

都営新宿線 / 浜町駅 徒歩5分
築22年 / 7階建
東京都中央区日本橋浜町3丁目34-4

11万円 / 管理費10,000円
敷
11万円礼
無料ワンルーム / 30.68㎡ / 5階
賃貸マンション
中央区日本橋浜町2丁目 10階建 2002年築

東京メトロ半蔵門線 / 水天宮前駅 徒歩8分
築24年 / 10階建
東京都中央区日本橋浜町2丁目

13万円 / 管理費10,000円
敷
無料礼
13万円1DK / 30.53㎡ / 7階
賃貸マンション
メゾンドヴィレ日本橋中州

東京メトロ半蔵門線 / 水天宮前駅 徒歩5分
築24年 / 12階建
東京都中央区日本橋中洲

12万円 / 管理費10,000円
敷
無料礼
12万円1K / 28.11㎡ / 8階
賃貸マンション
プレールドゥーク日本橋
都営新宿線 / 浜町駅 徒歩3分
築12年 / 10階建
東京都中央区日本橋浜町2丁目24-6
12.9万円 / 管理費5,000円
敷
無料礼
12.9万円1K / 27.49㎡ / 1階
賃貸マンション
スクエア日本橋
)
都営新宿線 / 浜町駅 徒歩5分
築60年 / 地上8階地下2階建
東京都中央区日本橋浜町3丁目
)
12.8万円 / 管理費10,000円
敷
12.8万円礼
12.8万円1K / 48.3㎡ / 5階
賃貸マンション
メゾンドヴィレ日本橋中洲
東京メトロ半蔵門線 / 水天宮前駅 徒歩7分
築24年 / 12階建
東京都中央区日本橋中洲4-13
11.5万円 / 管理費9,000円
敷
無料礼
11.5万円1K / 33.39㎡ / 2階
賃貸マンション
フィース水天宮前

東京メトロ半蔵門線 / 水天宮前駅 徒歩12分
築17年 / 8階建
東京都江東区佐賀2丁目7-2

12.9万円 / 管理費8,000円
敷
無料礼
12.9万円1K / 32.02㎡ / 7階
賃貸マンション
アーバイル日本橋水天宮

都営新宿線 / 浜町駅 徒歩5分
築22年 / 7階建
東京都中央区日本橋浜町3丁目34-4

11万円 / 管理費10,000円
敷
11万円礼
無料ワンルーム / 30.68㎡ / 5階
賃貸マンション
中央区日本橋浜町2丁目 10階建 2002年築

東京メトロ半蔵門線 / 水天宮前駅 徒歩8分
築24年 / 10階建
東京都中央区日本橋浜町2丁目

13万円 / 管理費10,000円
敷
無料礼
13万円1DK / 30.53㎡ / 7階
賃貸マンション
メゾンドヴィレ日本橋中州

東京メトロ半蔵門線 / 水天宮前駅 徒歩5分
築24年 / 12階建
東京都中央区日本橋中洲

12万円 / 管理費10,000円
敷
無料礼
12万円1K / 28.11㎡ / 8階
賃貸マンション
プレールドゥーク日本橋
都営新宿線 / 浜町駅 徒歩3分
築12年 / 10階建
東京都中央区日本橋浜町2丁目24-6
12.9万円 / 管理費5,000円
敷
無料礼
12.9万円1K / 27.49㎡ / 1階













