リンデンコート市ヶ谷(東京都新宿区 / 市ケ谷駅) の賃貸物件情報
募集中のお部屋が7件あります




















1/10
1/10
- 建物
- マンション (鉄筋コンクリート)
- 築年数
- 築8年 (2018年)
- 駐車場
- 無
- 交通
- 東京メトロ南北線 / 市ケ谷駅徒歩4分
- 総武線 / 四ツ谷駅徒歩9分
- 都営新宿線 / 曙橋駅徒歩12分
- 住所
- 東京都新宿区市谷本村町3-25
掲載中の物件(7件)
- コンビニエンスストア 62m
- スーパーマーケット 403m
- 総合病院 1613m
- 公園 781m
- ドラッグストア 358m
- 銀行 365m
- 喜久屋クリーニング 市ヶ谷駅前店 407m
その他
- 駐車/駐輪
- 無
- 入居時期
- 2026年7月下旬
- 損保
- 住宅保険: 要
- 保証代行人
- 加入要 費用: 初回保証委託料(最低20,000円):月額賃料等の50%、 2年目以降:9,600円/年
- その他費用
- -
- 情報
情報登録日:2026/5/14
情報更新日:2026/5/27
次回更新予定日:2026/5/27
- 備考
- 現況: 居住中 契約期間: 2年 ※定期借家 管理人: 巡回 自社管理番号: B28460R61795
この建物からのPick Up
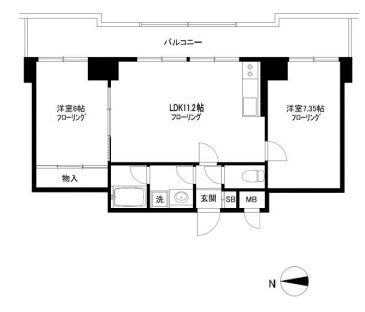
1LDK/9階
1/20
1/20
20.6 万円 / 管理費10,000円
- 敷金
- 20.6万円
- 保証金
- なし
- 礼金
- 20.6万円
- 広さ
- 40.85㎡
- 階数
- 9階 / 12階建
- 間取り
- 1LDK (LDK11.2帖 / 洋4.6帖)
- 向き
- 南
無料で10秒! カンタンお問い合わせ

リンデンコート市ヶ谷
敷
20.6万円礼
20.6万円特徴
バス・トイレ別
2階以上
エアコン付き
ペット相談可
駐車場あり
室内洗濯機置場
オートロック
洗面所独立
- 入居条件
- 保証人不要、初期費用カード決済可、二人入居可
- バス・トイレ
- 専用バス、追焚機能浴室、浴室乾燥機、バストイレ別、専用トイレ、温水洗浄便座、洗面所独立
- キッチン
- システムキッチン、ガスコンロ対応、3口以上コンロ
- セキュリティ
- オートロック、防犯カメラ
- 室内設備
- BS、全居室収納、クロゼット、光ファイバー、エアコン、室内洗濯置、フローリング、CS、シューズボックス
- 部屋の特徴
- 角住戸、バルコニー、二階以上
- 共用部
- エレベーター、駐輪場、宅配ボックス
- その他の特徴
- 下水、公営水道、定期借家、家賃保証付き、都市ガス
無料で10秒! カンタンお問い合わせ

リンデンコート市ヶ谷
敷
20.6万円礼
20.6万円おすすめ物件 (10件)
賃貸マンション
新宿区 4階建 1977年築

総武線 / 市ケ谷駅 徒歩8分
築49年 / 4階建
東京都新宿区市谷加賀町2丁目6-1

20万円 / 管理費10,000円
敷
20万円礼
20万円3LDK / 60.2㎡ / 1階
賃貸マンション
SANEIBELLHIRO
)
中央線 / 四ツ谷駅 徒歩10分
築23年 / 4階建
東京都新宿区四谷三栄町11-44
)
23.5万円 / 管理費15,000円
敷
無料礼
47万円2LDK / 60.09㎡ / 2階
賃貸マンション
JR総武線飯田橋駅6階建築24年
東京メトロ有楽町線 / 市ケ谷駅 徒歩19分
築24年 / 6階建
東京都新宿区南町
22.5万円 / 管理費10,000円
敷
22.5万円礼
無料ワンルーム / 54.42㎡ / 2階
賃貸マンション
新宿区払方町 3階建 2021年築
東京メトロ有楽町線 / 市ケ谷駅 徒歩8分
築5年 / 3階建
東京都新宿区払方町
23.9万円 / 管理費10,000円
敷
無料礼
無料1DK / 51.42㎡ / 1階
賃貸マンション
シティ市ヶ谷ビル
東京メトロ有楽町線 / 市ケ谷駅 徒歩1分
築54年 / 地上8階地下1階建
東京都新宿区市谷田町2丁目38-3
20万円 / 管理費なし
敷
20万円礼
20万円2DK / 50.05㎡ / 6階
賃貸マンション
新宿区 14階建 2014年築
中央線 / 四ツ谷駅 徒歩13分
築12年 / 13階建
東京都新宿区愛住町
23万円 / 管理費20,000円
敷
23万円礼
23万円2LDK / 49.39㎡ / 8階
賃貸マンション
ZOOM市谷本村町

中央線 / 四ツ谷駅 徒歩7分
築13年 / 12階建
東京都新宿区市谷本村町3-12

24.1万円 / 管理費14,000円
敷
24.1万円礼
24.1万円2DK / 49.38㎡ / 11階
賃貸マンション
新宿区 4階建 1977年築

総武線 / 市ケ谷駅 徒歩8分
築49年 / 4階建
東京都新宿区市谷加賀町2丁目6-1

20万円 / 管理費10,000円
敷
20万円礼
20万円3LDK / 60.2㎡ / 1階
賃貸マンション
SANEIBELLHIRO
)
中央線 / 四ツ谷駅 徒歩10分
築23年 / 4階建
東京都新宿区四谷三栄町11-44
)
23.5万円 / 管理費15,000円
敷
無料礼
47万円2LDK / 60.09㎡ / 2階
賃貸マンション
JR総武線飯田橋駅6階建築24年
東京メトロ有楽町線 / 市ケ谷駅 徒歩19分
築24年 / 6階建
東京都新宿区南町
22.5万円 / 管理費10,000円
敷
22.5万円礼
無料ワンルーム / 54.42㎡ / 2階
賃貸マンション
新宿区払方町 3階建 2021年築
東京メトロ有楽町線 / 市ケ谷駅 徒歩8分
築5年 / 3階建
東京都新宿区払方町
23.9万円 / 管理費10,000円
敷
無料礼
無料1DK / 51.42㎡ / 1階
賃貸マンション
シティ市ヶ谷ビル
東京メトロ有楽町線 / 市ケ谷駅 徒歩1分
築54年 / 地上8階地下1階建
東京都新宿区市谷田町2丁目38-3
20万円 / 管理費なし
敷
20万円礼
20万円2DK / 50.05㎡ / 6階
賃貸マンション
新宿区 14階建 2014年築
中央線 / 四ツ谷駅 徒歩13分
築12年 / 13階建
東京都新宿区愛住町
23万円 / 管理費20,000円
敷
23万円礼
23万円2LDK / 49.39㎡ / 8階
賃貸マンション
ZOOM市谷本村町

中央線 / 四ツ谷駅 徒歩7分
築13年 / 12階建
東京都新宿区市谷本村町3-12

24.1万円 / 管理費14,000円
敷
24.1万円礼
24.1万円2DK / 49.38㎡ / 11階













