東急世田谷線 世田谷駅 4階建 新築(東京都世田谷区 / 世田谷駅) の賃貸物件情報
募集中のお部屋が1件あります
1/12
1/12
- 建物
- マンション (鉄筋コンクリート)
- 築年数
- 新築 (2026年)
- 駐車場
- -
- 交通
- 東急世田谷線 / 世田谷駅徒歩2分
- 小田急線 / 豪徳寺駅徒歩17分
- 東急田園都市線 / 桜新町駅徒歩24分
- 住所
- 東京都世田谷区世田谷3
掲載中の物件(1件)
- 保育所ちびっこランド世田谷園(幼稚園・保育園)まで441m
- 世田谷区立桜小学校(小学校)まで580m
- ローソン 世田谷駅北店(コンビニ)まで114m
- 世田谷警察署 世田谷交番(警察署・交番)まで289m
- みずほ薬局上町店(ドラッグストア)まで400m
- 世田谷子どもクリニック(病院)まで311m
その他
- 駐車/駐輪
- -
- 入居時期
- 即
- 損保
- 要
- 保証代行人
- -
- その他費用
- -
- 情報
情報登録日:2026/3/19
情報更新日:2026/4/5
次回更新予定日:2026/4/20
- 備考
- 契約期間: 普通借家 2年 保証会社: 保証会社利用可 初回保証料:賃料総額の30% その他:▲▽初期費用に関して▽▲クレジットカード払いも可能です!初期費用等ご不安な事はお気軽にご相談ください。賃貸、売買、賃貸管理はファニーホームへお任せください!★リモート内見承ります★退去時ルームクリーニング代実費、借主負担有。ペット飼育の場合:敷金1ヵ月増(退去時償却)1年未満の解約は総賃料の2ヶ月、2年未満の解約は総賃料の1ヶ月分の短期解約違約金有り。 / 条件: 二人入居可/子供可 / ほか初期費用: 合計2.75万円(内訳:契約事務手数料0万円 室内抗菌処理代0万円 入居中サポート0万円 鍵交換代2.75万円) / ほか諸費用: 更新料 130000円
この建物からのPick Up
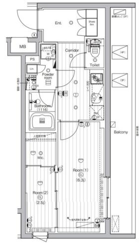
2K/1階
1/20
1/20
13 万円 / 管理費20,000円
- 敷金
- 無料
- 保証金
- なし
- 礼金
- 無料
- 広さ
- 25.51㎡
- 階数
- 1階 / 4階建
- 間取り
- 2K
- 向き
- 南
無料で10秒! カンタンお問い合わせ
東急世田谷線 世田谷駅 4階建 新築
敷
無料礼
無料特徴
バス・トイレ別
2階以上
エアコン付き
ペット相談可
駐車場あり
室内洗濯機置場
オートロック
洗面所独立
- 入居条件
- 即入居可
- バス・トイレ
- 浴室乾燥機、バストイレ別、温水洗浄便座、洗面所独立
- キッチン
- 2口コンロ、システムキッチン、ガスコンロ対応
- セキュリティ
- オートロック
- 室内設備
- BS、ネット専用回線、クロゼット、ネット使用料不要、24時間換気システム、エアコン、室内洗濯置、フローリング、CS、シューズボックス
- 部屋の特徴
- バルコニー
- 共用部
- エレベーター、駐輪場、宅配ボックス、バイク置場
- その他の特徴
- 都市ガス
無料で10秒! カンタンお問い合わせ
東急世田谷線 世田谷駅 4階建 新築
敷
無料礼
無料おすすめ物件 (10件)
賃貸マンション
駒沢コーポラス

東急田園都市線 / 桜新町駅 徒歩15分
築58年 / 7階建
東京都世田谷区駒沢2丁目18-10

12.5万円 / 管理費なし
敷
12.5万円礼
12.5万円2DK / 45.56㎡ / 4階
賃貸マンション
リリーベール
東急田園都市線 / 桜新町駅 徒歩9分
築33年 / 3階建
東京都世田谷区弦巻3丁目15-18
12万円 / 管理費8,000円
敷
12万円礼
12万円2DK / 44.93㎡ / 3階
賃貸マンション
第13通南ビル

小田急小田原線 / 豪徳寺駅 徒歩5分
築45年 / 5階建
東京都世田谷区赤堤2丁目

9.3万円 / 管理費2,000円
敷
9.3万円礼
9.3万円2DK / 44.62㎡ / 5階
賃貸マンション
世田谷区松原6丁目 5階建 1980年築

小田急小田原線 / 豪徳寺駅 徒歩7分
築46年 / 5階建
東京都世田谷区松原6丁目

13万円 / 管理費5,000円
敷
26万円礼
無料1LDK / 43.01㎡ / 3階
賃貸アパート
小田急線千歳船橋駅2階建築8年
小田急線 / 豪徳寺駅 徒歩27分
築7年 / 2階建
東京都世田谷区経堂4
12万円 / 管理費5,000円
敷
12万円礼
12万円1LDK / 41.25㎡ / 2階
賃貸アパート
プレジ桜新町
東急田園都市線 / 桜新町駅 徒歩9分
築9年 / 3階建
東京都世田谷区弦巻2丁目39-19
12.9万円 / 管理費10,000円
敷
12.9万円礼
無料1DK / 40.34㎡ / 2階
賃貸アパート
小田急線梅ヶ丘駅2階建築10年
小田急線 / 豪徳寺駅 徒歩14分
築10年 / 2階建
東京都世田谷区梅丘3
13万円 / 管理費3,000円
敷
13万円礼
13万円1LDK / 39.74㎡ / 1階
賃貸マンション
駒沢コーポラス

東急田園都市線 / 桜新町駅 徒歩15分
築58年 / 7階建
東京都世田谷区駒沢2丁目18-10

12.5万円 / 管理費なし
敷
12.5万円礼
12.5万円2DK / 45.56㎡ / 4階
賃貸マンション
リリーベール
東急田園都市線 / 桜新町駅 徒歩9分
築33年 / 3階建
東京都世田谷区弦巻3丁目15-18
12万円 / 管理費8,000円
敷
12万円礼
12万円2DK / 44.93㎡ / 3階
賃貸マンション
第13通南ビル

小田急小田原線 / 豪徳寺駅 徒歩5分
築45年 / 5階建
東京都世田谷区赤堤2丁目

9.3万円 / 管理費2,000円
敷
9.3万円礼
9.3万円2DK / 44.62㎡ / 5階
賃貸マンション
世田谷区松原6丁目 5階建 1980年築

小田急小田原線 / 豪徳寺駅 徒歩7分
築46年 / 5階建
東京都世田谷区松原6丁目

13万円 / 管理費5,000円
敷
26万円礼
無料1LDK / 43.01㎡ / 3階
賃貸アパート
小田急線千歳船橋駅2階建築8年
小田急線 / 豪徳寺駅 徒歩27分
築7年 / 2階建
東京都世田谷区経堂4
12万円 / 管理費5,000円
敷
12万円礼
12万円1LDK / 41.25㎡ / 2階
賃貸アパート
プレジ桜新町
東急田園都市線 / 桜新町駅 徒歩9分
築9年 / 3階建
東京都世田谷区弦巻2丁目39-19
12.9万円 / 管理費10,000円
敷
12.9万円礼
無料1DK / 40.34㎡ / 2階
賃貸アパート
小田急線梅ヶ丘駅2階建築10年
小田急線 / 豪徳寺駅 徒歩14分
築10年 / 2階建
東京都世田谷区梅丘3
13万円 / 管理費3,000円
敷
13万円礼
13万円1LDK / 39.74㎡ / 1階


