アルティザ上野毛(東京都世田谷区 / 上野毛駅) の賃貸物件情報
募集中のお部屋が3件あります
1/15
1/15
- 建物
- マンション (鉄筋コンクリート)
- 築年数
- 築2年 (2024年)
- 駐車場
- 空無
- 交通
- 東急大井町線 / 上野毛駅徒歩5分
- 東急田園都市線 / 二子玉川駅徒歩17分
- 住所
- 東京都世田谷区上野毛4丁目33-3
掲載中の物件(3件)
- 上野毛駅(東急 大井町線) 560m
その他
- 駐車/駐輪
- 空無
- 入居時期
- 相談
- 損保
- 住宅保険: 要
- 保証代行人
- 加入要 会社名: その他 費用: エポス ルームID月額総賃料の50%/月次保証料、月額総賃料の1.5%
- その他費用
- -
- 情報
情報登録日:2026/5/4
情報更新日:2026/5/8
次回更新予定日:2026/5/20
- 備考
- 現況: 居住中 更新料: 新賃料の1.0ヶ月分 契約期間: 2年 管理人: 巡回
この建物からのPick Up
1DK/5階
1/22
1/22
13 万円 / 管理費15,000円
- 敷金
- 無料
- 保証金
- なし
- 礼金
- 無料
- 広さ
- 30.66㎡
- 階数
- 5階 / 5階建
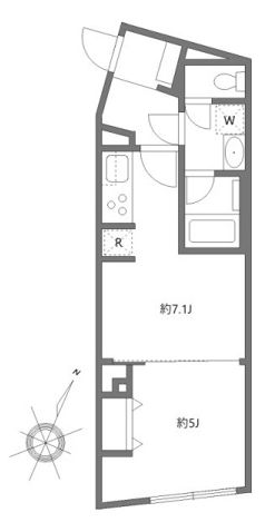
- 間取り
- 1DK (洋5.0帖 / DK6.9帖)
- 向き
- 南東
無料で10秒! カンタンお問い合わせ
アルティザ上野毛
敷
無料礼
無料特徴
バス・トイレ別
2階以上
エアコン付き
ペット相談可
駐車場あり
室内洗濯機置場
オートロック
洗面所独立
- 入居条件
- 楽器不可、事務所(SOHO)不可、保証人不要、初期費用カード決済可、ペット不可
- バス・トイレ
- 専用バス、浴室乾燥機、給湯、バストイレ別、シャワー付洗面化粧台、専用トイレ、シャワー、温水洗浄便座、洗面所独立
- キッチン
- 2口コンロ、システムキッチン、ガスコンロ対応
- セキュリティ
- オートロック
- 室内設備
- クロゼット、照明付、ネット使用料不要、エアコン、インターネット対応、室内洗濯置、冷房、フローリング、シューズボックス
- 部屋の特徴
- 二階以上、最上階
- 共用部
- エレベーター、駐輪場、宅配ボックス、バイク置場
- その他の特徴
- 下水、公営水道、外壁タイル張り、都市ガス
無料で10秒! カンタンお問い合わせ
アルティザ上野毛
敷
無料礼
無料おすすめ物件 (10件)
賃貸マンション
パークサイド砧
東急田園都市線 / 二子玉川駅 徒歩29分
築41年 / 4階建
東京都世田谷区岡本1丁目33-14
12万円 / 管理費5,000円
敷
12万円礼
無料2LDK / 52.48㎡ / 3階
賃貸マンション
第2ドウェル

東急田園都市線 / 二子玉川駅 徒歩27分
築43年 / 3階建
東京都世田谷区岡本1丁目

12.5万円 / 管理費5,000円
敷
12.5万円礼
12.5万円3DK / 51.3㎡ / 3階
賃貸マンション
ヴィレッジガーデン
)
東急田園都市線 / 二子玉川駅 バス14分 砧本村下車 徒歩10分
築29年 / 3階建
東京都世田谷区宇奈根2丁目
)
10.5万円 / 管理費3,100円
敷
10.5万円礼
無料3DK / 49.5㎡ / 1階
賃貸アパート
世田谷区宇奈根2丁目 3階建 2023年築
東急田園都市線 / 二子玉川駅 バス15分 下宿下車 徒歩12分
築3年 / 3階建
東京都世田谷区宇奈根2丁目14-6
12.4万円 / 管理費5,000円
敷
12.4万円礼
12.4万円1LDK / 46.58㎡ / 2階
賃貸物件
テラスハウス用賀

東急田園都市線 / 二子玉川駅 徒歩24分
築40年 / 2階建
東京都世田谷区玉川台2丁目31-6

12.3万円 / 管理費2,000円
敷
12.3万円礼
無料2LDK / 46.27㎡ / 1階
賃貸マンション
第一ライジングマンション
)
東急田園都市線 / 二子玉川駅 徒歩14分
築36年 / 3階建
神奈川県川崎市高津区二子1丁目8-54
)
11.5万円 / 管理費4,000円
敷
11.5万円礼
11.5万円1K / 46.2㎡ / 1階
賃貸アパート
コモレビ大蔵E
)
東急田園都市線 / 二子玉川駅 バス12分 永安寺下車 徒歩6分
築15年 / 3階建
東京都世田谷区大蔵5丁目
)
12.9万円 / 管理費12,000円
敷
無料礼
25.8万円1LDK / 45.04㎡ / 3階
賃貸アパート
プレデラリビエール1

東急田園都市線 / 二子玉川駅 徒歩16分
築14年 / 2階建
神奈川県川崎市 高津区溝口6丁目2-17

12.8万円 / 管理費6,000円
敷
無料礼
25.6万円1LDK / 44.08㎡ / 2階
賃貸マンション
パークサイド砧
東急田園都市線 / 二子玉川駅 徒歩29分
築41年 / 4階建
東京都世田谷区岡本1丁目33-14
12万円 / 管理費5,000円
敷
12万円礼
無料2LDK / 52.48㎡ / 3階
賃貸マンション
第2ドウェル

東急田園都市線 / 二子玉川駅 徒歩27分
築43年 / 3階建
東京都世田谷区岡本1丁目

12.5万円 / 管理費5,000円
敷
12.5万円礼
12.5万円3DK / 51.3㎡ / 3階
賃貸マンション
ヴィレッジガーデン
)
東急田園都市線 / 二子玉川駅 バス14分 砧本村下車 徒歩10分
築29年 / 3階建
東京都世田谷区宇奈根2丁目
)
10.5万円 / 管理費3,100円
敷
10.5万円礼
無料3DK / 49.5㎡ / 1階
賃貸アパート
世田谷区宇奈根2丁目 3階建 2023年築
東急田園都市線 / 二子玉川駅 バス15分 下宿下車 徒歩12分
築3年 / 3階建
東京都世田谷区宇奈根2丁目14-6
12.4万円 / 管理費5,000円
敷
12.4万円礼
12.4万円1LDK / 46.58㎡ / 2階
賃貸物件
テラスハウス用賀

東急田園都市線 / 二子玉川駅 徒歩24分
築40年 / 2階建
東京都世田谷区玉川台2丁目31-6

12.3万円 / 管理費2,000円
敷
12.3万円礼
無料2LDK / 46.27㎡ / 1階
賃貸マンション
第一ライジングマンション
)
東急田園都市線 / 二子玉川駅 徒歩14分
築36年 / 3階建
神奈川県川崎市高津区二子1丁目8-54
)
11.5万円 / 管理費4,000円
敷
11.5万円礼
11.5万円1K / 46.2㎡ / 1階
賃貸アパート
コモレビ大蔵E
)
東急田園都市線 / 二子玉川駅 バス12分 永安寺下車 徒歩6分
築15年 / 3階建
東京都世田谷区大蔵5丁目
)
12.9万円 / 管理費12,000円
敷
無料礼
25.8万円1LDK / 45.04㎡ / 3階
賃貸アパート
プレデラリビエール1

東急田園都市線 / 二子玉川駅 徒歩16分
築14年 / 2階建
神奈川県川崎市 高津区溝口6丁目2-17

12.8万円 / 管理費6,000円
敷
無料礼
25.6万円1LDK / 44.08㎡ / 2階






