メインステージ入谷Ⅲ(東京都台東区 / 入谷駅) の賃貸物件情報
募集中のお部屋が3件あります
































1/16
1/16
- 建物
- マンション (鉄筋コンクリート)
- 築年数
- 築6年 (2020年)
- 駐車場
- 無
- 交通
- 東京メトロ日比谷線 / 入谷駅徒歩3分
- 山手線 / 鶯谷駅徒歩12分
- 住所
- 東京都台東区入谷1丁目22-5
掲載中の物件(3件)
- コンビニエンスストア 188m
- スーパーマーケット 39m
- 公園 119m
- ドラッグストア 51m
- 白洋舎入谷店 142m
その他
- 駐車/駐輪
- 無
- 入居時期
- 2026年7月中旬
- 損保
- 住宅保険: 要
- 保証代行人
- 加入要 費用: 初回保証料:月額総賃料の50%詳しくはスタッフにお問い合わせください。
- その他費用
- -
- 情報
情報登録日:2023/1/17
情報更新日:2026/5/15
次回更新予定日:2026/5/20
- 備考
- 現況: 空家 更新料: 新賃料の1.5ヶ月分 契約期間: 2年 管理人: 巡回 自社管理番号: B38512R233988
この建物からのPick Up
1LDK/4階
1/29
1/29
20.1 万円 / 管理費15,000円
- 敷金
- 無料
- 保証金
- なし
- 礼金
- 無料
- 広さ
- 40.2㎡
- 階数
- 4階 / 14階建
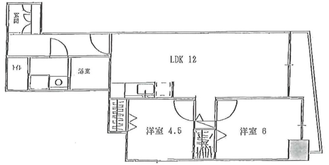
- 間取り
- 1LDK (洋6.0帖 / LDK10.6帖)
- 向き
- 西
無料で10秒! カンタンお問い合わせ

メインステージ入谷Ⅲ
敷
無料礼
無料特徴
バス・トイレ別
2階以上
エアコン付き
ペット相談可
駐車場あり
室内洗濯機置場
オートロック
洗面所独立
- 入居条件
- ペット相談、保証人不要、初期費用カード決済可、ペット可、二人入居可
- バス・トイレ
- 専用バス、追焚機能浴室、浴室乾燥機、バストイレ別、オートバス、専用トイレ、温水洗浄便座、洗面所独立
- キッチン
- カウンターキッチン、システムキッチン、ガスコンロ対応、3口以上コンロ
- セキュリティ
- オートロック、防犯カメラ
- 室内設備
- BS、クロゼット、光ファイバー、ネット使用料不要、エアコン、室内洗濯置、フローリング、CS、シューズボックス
- 部屋の特徴
- 角住戸、バルコニー、二階以上
- 共用部
- エレベーター、駐輪場、宅配ボックス、バイク置場
- その他の特徴
- 下水、分譲賃貸、公営水道、家賃保証付き、都市ガス
無料で10秒! カンタンお問い合わせ

メインステージ入谷Ⅲ
敷
無料礼
無料おすすめ物件 (10件)
賃貸マンション
ポルックス三ノ輪
)
東京メトロ日比谷線 / 入谷駅 徒歩12分
築35年 / 6階建
東京都荒川区東日暮里2丁目
)
19.4万円 / 管理費8,000円
敷
19.4万円礼
19.4万円3LDK / 82.35㎡ / 2階
賃貸マンション
マルソ松が谷

東京メトロ日比谷線 / 入谷駅 徒歩8分
築24年 / 10階建
東京都台東区松が谷4丁目5-4

19.3万円 / 管理費10,000円
敷
19.3万円礼
無料3LDK / 67.37㎡ / 9階
賃貸マンション
カストール三ノ輪

山手線 / 鶯谷駅 徒歩16分
築35年 / 7階建
東京都荒川区東日暮里1丁目41-10

18.2万円 / 管理費8,000円
敷
18.2万円礼
18.2万円2LDK / 62.37㎡ / 4階
賃貸マンション
ライオンズ東京根岸レジデンス

東京メトロ日比谷線 / 入谷駅 徒歩11分
築19年 / 10階建
東京都台東区根岸5丁目9-22

19.8万円 / 管理費12,000円
敷
19.8万円礼
19.8万円2LDK / 60.27㎡ / 4階
賃貸マンション
カスタリア入谷

東京メトロ日比谷線 / 入谷駅 徒歩3分
築21年 / 12階建
東京都台東区下谷3丁目1-28

18.7万円 / 管理費10,000円
敷
18.7万円礼
18.7万円1LDK / 56.05㎡ / 7階
賃貸マンション
レバランス日暮里

山手線 / 鶯谷駅 徒歩9分
築43年 / 6階建
東京都荒川区東日暮里5丁目40-2

17.5万円 / 管理費10,000円
敷
17.5万円礼
17.5万円2LDK / 51.83㎡ / 4階
賃貸マンション
コンフォリア上野入谷

東京メトロ日比谷線 / 入谷駅 徒歩7分
築10年 / 地上14階地下1階建
東京都台東区竜泉2丁目

20.1万円 / 管理費12,000円
敷
20.1万円礼
無料1LDK / 50.36㎡ / 6階
賃貸マンション
シュトランドコルブ
)
東京メトロ日比谷線 / 入谷駅 徒歩12分
築13年 / 11階建
東京都荒川区東日暮里2丁目
)
家賃カード決済可
16.3万円 / 管理費12,000円
敷
無料礼
16.3万円1LDK / 50.17㎡ / 5階
賃貸マンション
ポルックス三ノ輪
)
東京メトロ日比谷線 / 入谷駅 徒歩12分
築35年 / 6階建
東京都荒川区東日暮里2丁目
)
19.4万円 / 管理費8,000円
敷
19.4万円礼
19.4万円3LDK / 82.35㎡ / 2階
賃貸マンション
マルソ松が谷

東京メトロ日比谷線 / 入谷駅 徒歩8分
築24年 / 10階建
東京都台東区松が谷4丁目5-4

19.3万円 / 管理費10,000円
敷
19.3万円礼
無料3LDK / 67.37㎡ / 9階
賃貸マンション
カストール三ノ輪

山手線 / 鶯谷駅 徒歩16分
築35年 / 7階建
東京都荒川区東日暮里1丁目41-10

18.2万円 / 管理費8,000円
敷
18.2万円礼
18.2万円2LDK / 62.37㎡ / 4階
賃貸マンション
ライオンズ東京根岸レジデンス

東京メトロ日比谷線 / 入谷駅 徒歩11分
築19年 / 10階建
東京都台東区根岸5丁目9-22

19.8万円 / 管理費12,000円
敷
19.8万円礼
19.8万円2LDK / 60.27㎡ / 4階
賃貸マンション
カスタリア入谷

東京メトロ日比谷線 / 入谷駅 徒歩3分
築21年 / 12階建
東京都台東区下谷3丁目1-28

18.7万円 / 管理費10,000円
敷
18.7万円礼
18.7万円1LDK / 56.05㎡ / 7階
賃貸マンション
レバランス日暮里

山手線 / 鶯谷駅 徒歩9分
築43年 / 6階建
東京都荒川区東日暮里5丁目40-2

17.5万円 / 管理費10,000円
敷
17.5万円礼
17.5万円2LDK / 51.83㎡ / 4階
賃貸マンション
コンフォリア上野入谷

東京メトロ日比谷線 / 入谷駅 徒歩7分
築10年 / 地上14階地下1階建
東京都台東区竜泉2丁目

20.1万円 / 管理費12,000円
敷
20.1万円礼
無料1LDK / 50.36㎡ / 6階
賃貸マンション
シュトランドコルブ
)
東京メトロ日比谷線 / 入谷駅 徒歩12分
築13年 / 11階建
東京都荒川区東日暮里2丁目
)
家賃カード決済可
16.3万円 / 管理費12,000円
敷
無料礼
16.3万円1LDK / 50.17㎡ / 5階

















