パインフィールド1st(大阪府大阪市東淀川区 / 新大阪駅) の賃貸物件情報
募集中のお部屋が1件あります


































1/17
1/17
- 建物
- マンション (鉄筋コンクリート)
- 築年数
- 築27年 (1998年)
- 駐車場
- 近隣 費用: 28,000円 距離: 200m
- 交通
- 地下鉄御堂筋線 / 新大阪駅徒歩10分
- 地下鉄御堂筋線 / 西中島南方駅徒歩11分
- 住所
- 大阪府大阪市東淀川区東中島3丁目
- 大阪市立西中島小学校 1072m
- コンビニエンスストア 45m
- スーパーマーケット 860m
- 大阪ウェディング&ブライダル専門学校 577m
その他
- 駐車/駐輪
- 近隣 費用: 28,000円 距離: 200m
- 入居時期
- 即
- 損保
- 住宅保険: 要
- 保証代行人
- -
- その他費用
- -
- 情報
情報登録日:2025/10/28
情報更新日:2025/11/10
次回更新予定日:2025/11/17
- 備考
- 現況: 空家 契約期間: 2年 管理人: 無 LIFULL HOME'S物件番号: 1521260007504
この建物からのPick Up
1K/2階
1/30
1/30
6.2 万円 / 管理費6,000円
- 敷金
- 無料
- 保証金
- なし
- 礼金
- 10万円
- 広さ
- 32.36㎡
- 階数
- 2階 / 7階建
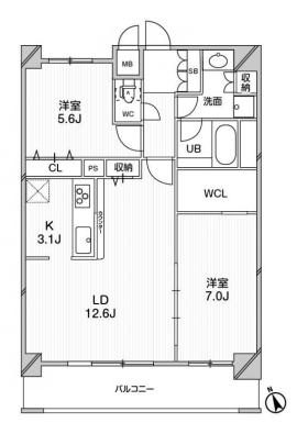
- 間取り
- 1K (洋8.3帖 / K3.7帖)
- 向き
無料で10秒! カンタンお問い合わせ

パインフィールド1st
敷
無料礼
10万円特徴
バス・トイレ別
2階以上
エアコン付き
ペット相談可
駐車場あり
室内洗濯機置場
オートロック
洗面所独立
- 入居条件
- 即入居可、初期費用カード決済可、敷金不要
- バス・トイレ
- 専用バス、バストイレ別、シャワー付洗面化粧台、専用トイレ、シャワー、温水洗浄便座、洗面所独立
- キッチン
- 2口コンロ、システムキッチン、ガスコンロ対応
- セキュリティ
- オートロック、防犯カメラ
- 室内設備
- クロゼット、エアコン、インターネット対応、室内洗濯置、フローリング、シューズボックス
- 部屋の特徴
- 角住戸、バルコニー、二階以上
- 共用部
- エレベーター、駐輪場、宅配ボックス
- その他の特徴
- 下水、公営水道、都市ガス
無料で10秒! カンタンお問い合わせ

パインフィールド1st
敷
無料礼
10万円おすすめ物件 (10件)
賃貸マンション
朝日プラザ新大阪

東海道本線 / 新大阪駅 徒歩5分
築43年 / 11階建
大阪府大阪市東淀川区東中島4丁目

5.95万円 / 管理費8,900円
敷
無料礼
無料1LDK / 41.78㎡ / 3階
賃貸マンション
サンモール木川
)
地下鉄御堂筋線 / 西中島南方駅 徒歩12分
築39年 / 4階建
大阪府大阪市淀川区木川西2丁目18番13号
)
6.1万円 / 管理費4,000円
敷
無料礼
無料1LDK / 40㎡ / 2階
賃貸マンション
東三国センチュリーマンション
)
地下鉄御堂筋線 / 新大阪駅 徒歩20分
築47年 / 5階建
大阪府大阪市淀川区東三国5丁目
)
6.2万円 / 管理費2,000円
敷
無料礼
無料1LDK / 38㎡ / 2階
賃貸マンション
赤羽ハイツ

地下鉄御堂筋線 / 西中島南方駅 徒歩3分
築45年 / 5階建
大阪府大阪市淀川区西中島1丁目13番地23号

5万円 / 管理費1,000円
敷
無料礼
10万円1K / 38㎡ / 5階
賃貸マンション
グランドマンションニュー大阪

地下鉄御堂筋線 / 新大阪駅 徒歩7分
築53年 / 11階建
大阪府大阪市淀川区西宮原1丁目

6.2万円 / 管理費5,000円
敷
無料礼
無料1DK / 37.72㎡ / 10階
賃貸マンション
センチュリー21壹番館

地下鉄御堂筋線 / 西中島南方駅 徒歩4分
築41年 / 8階建
大阪府大阪市淀川区西中島3丁目14番23号

6万円 / 管理費5,000円
敷
無料礼
12万円ワンルーム / 37.2㎡ / 5階
賃貸マンション
大京ビルマンション新大阪

地下鉄御堂筋線 / 西中島南方駅 徒歩5分
築45年 / 12階建
大阪府大阪市淀川区西中島5丁目

5.9万円 / 管理費6,000円
敷
5.9万円礼
無料ワンルーム / 36.55㎡ / 7階
賃貸マンション
朝日プラザ新大阪

東海道本線 / 新大阪駅 徒歩5分
築43年 / 11階建
大阪府大阪市東淀川区東中島4丁目

5.95万円 / 管理費8,900円
敷
無料礼
無料1LDK / 41.78㎡ / 3階
賃貸マンション
サンモール木川
)
地下鉄御堂筋線 / 西中島南方駅 徒歩12分
築39年 / 4階建
大阪府大阪市淀川区木川西2丁目18番13号
)
6.1万円 / 管理費4,000円
敷
無料礼
無料1LDK / 40㎡ / 2階
賃貸マンション
東三国センチュリーマンション
)
地下鉄御堂筋線 / 新大阪駅 徒歩20分
築47年 / 5階建
大阪府大阪市淀川区東三国5丁目
)
6.2万円 / 管理費2,000円
敷
無料礼
無料1LDK / 38㎡ / 2階
賃貸マンション
赤羽ハイツ

地下鉄御堂筋線 / 西中島南方駅 徒歩3分
築45年 / 5階建
大阪府大阪市淀川区西中島1丁目13番地23号

5万円 / 管理費1,000円
敷
無料礼
10万円1K / 38㎡ / 5階
賃貸マンション
グランドマンションニュー大阪

地下鉄御堂筋線 / 新大阪駅 徒歩7分
築53年 / 11階建
大阪府大阪市淀川区西宮原1丁目

6.2万円 / 管理費5,000円
敷
無料礼
無料1DK / 37.72㎡ / 10階
賃貸マンション
センチュリー21壹番館

地下鉄御堂筋線 / 西中島南方駅 徒歩4分
築41年 / 8階建
大阪府大阪市淀川区西中島3丁目14番23号

6万円 / 管理費5,000円
敷
無料礼
12万円ワンルーム / 37.2㎡ / 5階
賃貸マンション
大京ビルマンション新大阪

地下鉄御堂筋線 / 西中島南方駅 徒歩5分
築45年 / 12階建
大阪府大阪市淀川区西中島5丁目

5.9万円 / 管理費6,000円
敷
5.9万円礼
無料ワンルーム / 36.55㎡ / 7階
同じ最寄り駅 で探す
同じ市区町村 で探す
大阪市東淀川区 の賃貸


















