シグマース和田(東京都杉並区 / 新中野駅) の賃貸物件情報
募集中のお部屋が1件あります














1/7
1/7
- 建物
- マンション (鉄筋コンクリート)
- 築年数
- 築42年 (1984年)
- 駐車場
- 無
- 交通
- 東京メトロ丸ノ内線 / 新中野駅徒歩7分
- 総武線 / 東中野駅徒歩17分
- 住所
- 東京都杉並区和田1丁目
- 私立新渡戸文化小学校 512m
- 私立女子美術大学付属中学校 223m
- コンビニエンスストア 436m
- スーパーマーケット 398m
- 総合病院 780m
- 公園 836m
- ドラッグストア 452m
- 銀行 425m
その他
- 駐車/駐輪
- 無
- 入居時期
- 相談
- 損保
- 住宅保険: 要
- 保証代行人
- 加入要 会社名: オリコ 費用: 加入要 オリコ、ジェイリース:初回50%、※1年ごと10,000円 ※別途収納手数料あり:440円(税込)
- その他費用
- -
- 情報
情報登録日:2026/5/10
情報更新日:2026/5/7
次回更新予定日:2026/5/18
- 備考
- 現況: 空家 更新料: 51,000円 契約期間: 2年 総戸数: 20戸 自社管理番号: 12162703
この建物からのPick Up
1R/2階
1/15
1/15
5.1 万円 / 管理費8,000円
- 敷金
- 無料
- 保証金
- なし
- 礼金
- 無料
- 広さ
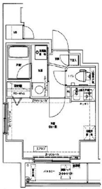
- 14.27㎡
- 階数
- 2階 / 4階建
- 間取り
- 1R
- 向き
- 東
無料で10秒! カンタンお問い合わせ

シグマース和田
敷
無料礼
無料特徴
バス・トイレ別
2階以上
エアコン付き
ペット相談可
駐車場あり
室内洗濯機置場
オートロック
洗面所独立
- 入居条件
- 保証人不要
- バス・トイレ
- 給湯、専用トイレ、シャワー
- キッチン
- システムキッチン
- 室内設備
- 洗濯機置場、エアコン、シューズボックス
- 部屋の特徴
- バルコニー、二階以上
- その他の特徴
- 都市ガス
無料で10秒! カンタンお問い合わせ

シグマース和田
敷
無料礼
無料









)
)














