3万円以下
15万円
100万円以上
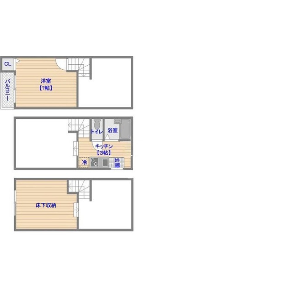
DreamStage井尻2
福岡市南区大楠1丁目 2階建 2010年築
福岡市南区大楠1丁目 2階建 2019年築
西鉄天神大牟田線高宮駅2階建築17年
福岡市南区井尻4丁目 2階建 2014年築
福岡市南区 2階建 2014年築
西鉄天神大牟田線大橋駅2階建築10年
CB井尻フェリス
MODERNEIGHT高宮lieto
CB高宮リーザ
CB井尻オーブ