3万円以下
15万円
100万円以上
広島市安佐南区八木9丁目 2階建 1978年築
テラス上八木
広島市安佐南区八木9丁目 2階建 1979年築
グリーンヒルズB
山田アパート
西本貸家
ツインアフィットA
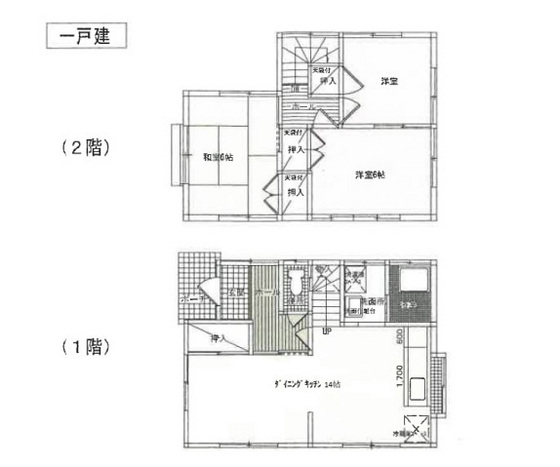
可部南1丁目戸建住宅C
広島市安佐北区可部南1丁目 2階建 2023年築
ブルーフォンセ