3万円以下
15万円
100万円以上
マンション芦屋の里
RA-ASHIYA
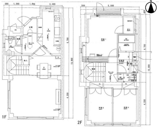
大原町戸建
ロイヤル山芦屋
阪急神戸本線芦屋川駅地上2階建て築48年
阪急神戸線芦屋川駅4階建築3年
阪急神戸本線芦屋川駅地上3階建て築37年
グレイスコート芦屋大原町
芦屋市 2階建 1997年築
神戸市東灘区 2階建 2002年築